Prodej pozemku pro bydlení, Pomezí nad Ohří, 1343 m2 (ID: 2569348)

Pomezí nad Ohří, Hraničná

3 150 000 Kč /za nemovitost HYPOTÉKA od 14 079 Kč /za měsíc
Doporučené firmy v Pomezí nad Ohří

Pojištění a finance

Informace k pozemku

Prodej – stavební pozemek, Pomezí nad Ohří, Dolní Hraničná.

Územním plánem určený bydlení v rodinných domech venkovských.

Příjezd k pozemku ze 2 stran po veřejných komunikacích.

Částečně svažitý terén.

Klidná a dobře dostupná lokalita v nové zastavbě rodinnými domy, cca 6 km (8 minut) od Chebu.

Parkování na pozemku.

Výměra pozemku – 1.343 m2

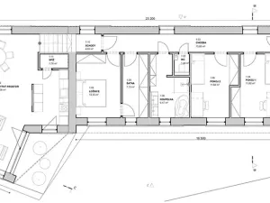
S koupí pozemku je možno převzít nedokončený projekt pro výstavbu rodiného domu, který lze ještě upravit dle vlastních představ.

Sítě: elektrická energie a vodovodní řád a kanalizace splašková i dešťová jsou připravené na hranici pozemku.

Parametry pozemku

Cena
3 150 000 Kč /za nemovitost Spočítat hypotéku
Aktualizováno
10. 3. 2026
Adresa
Pomezí nad Ohří, Hraničná
ID
5690
Lokalita objektu
Klidná část obce
Plocha pozemku
1343 m2
Elektřina
230V, 400V
Odpad
Veřejná kanalizace
Komunikace
Asfaltová
Doprava
Silnice, Autobus
Voda
Vodovod

Kontaktovat makléře

Máte zájem o tento pozemek?

Tímto, v souladu s nařízením Evropského parlamentu a Rady (EU) 2016/679, v platném znění, prohlašuji, že mi je alespoň 16 let a uděluji tak svůj souhlas se zpracováním zadaných údajů (jméno, telefon, e-mail, ip adresa) společnosti B3 Technology, s.r.o., IČ: 07330600, se sídlem Novostavby 126/23, 435 11 Lom (správce dat), za účelem předání dotazu z tohoto formuláře Vámi vybranému inzerentovi a zpětného kontaktování mé osoby. Osobní údaje bude správce zpracovávat manuálně i automaticky přímo prostřednictvím svých zaměstnanců. Informace předané tímto formulářem budou uloženy v databázi správce maximálně po dobu 10 let. Odvolání souhlasu s uložením a zpracováním poskytnutých dat lze e-mailem na info@bydlisnami.cz. V případě podezření na neoprávněné použití Vámi poskytnutých údajů máte právo předat podnět k šetření Úřadu pro ochranu osobních údajů. Více informací
Chystáte se prodat nemovitost?
Pomůžeme Vám!
Theleadway banner

Inzerát si prohlédlo 3 lidí

Prodejce

Karel Marek

Karel Marek

Hlídací pes

Chcete dostávat emailem podobné nabídky prodeje pozemků pro bydlení v Pomezí nad Ohří?

Podobné nemovitosti