Remax Monarcha

Pronájem kanceláře, Olomouc, Palackého, 155 m2

Palackého, Olomouc

49 000 Kč /za měsíc Získejte výhodnou HYPOTÉKU

(bez provize RK, k nájemnému bude účtováno DPH, + 15 000,-Kč/měs - zálohy za komplexní služby a energie, včetně právního servisu)

Doporučené firmy v Olomouci

Informace k nemovitosti

Vážení klienti.

Dovolujeme si Vám nabídnou originálně řešené komerční prostory v blízkosti centra Olomouce, v Palackého ulici, v DOMĚ U PARKU.

Jednotka je vhodná pro umístění vysoce reprezentativního pracoviště administrativy, projekční kanceláře, ateliéru, studia atd.

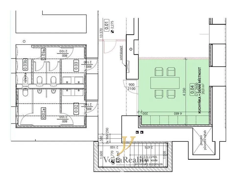
Prostory se nachází ve vnitřním traktu polyfunkční stavby DŮM U PARKU. Prostory jsou přístupné, jak z hlavní ulice hlavním vchodem, taktéž i prostřednictvím prosklených portálů v jednotce.

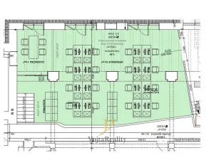
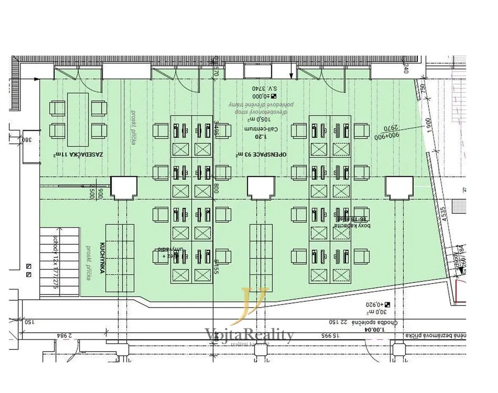
Jednotka je koncipována jako open-space s jednou oddělenou místností, jakožto kanceláří pro management subjektu v I. NP. Hygienické zázemí včetně denní místnosti a skladovací jednotky je umístěno v I.PP.

Prostory jsou vybaveny tlumící podlahovou krytinou, okna a portály osazena troj-skelným systémem.

Služby, jenž jsou součástí pronájmu, jsou mmjn. i zajištění přístupu 24/7 prostřednictvím čipového systému, elektronické napojení na PCO, kamerový systém, možnost využívání společenského sálu, komplexní správa budovy vlastníkem.

V objektu sídlí řada renomovaných společností s širokým záběrem podnikatelských oborů.

DŮM U PARKU sídlí na strategicky výhodném místě, v blízkosti městských parků a centra města. Díky své poloze jsou v bezprostřední blízkosti další doplňující služby, které zvyšují atraktivitu předmětného sídla.

Parkování lze zajistit po dohodě s vlastníkem budovy ve vnitrobloku.

Cenová nabídka platí při uzavření smlouvy o pronájmu v době trvání tří let.
Provize RK NENÍ v tomto případě účtována.
Vratná kauce činí dvě úhrady nájemného vč. DPH.

V případě zájmu o pronájem prosím kontaktujte makléře.

Parametry nemovitosti

Cena
49 000 Kč /za měsíc
Poznámka k ceně
bez provize RK, k nájemnému bude účtováno DPH, + 15 000,-Kč/měs - zálohy za komplexní služby a energie, včetně právního servisu
Aktualizováno
10. 3. 2026
Adresa
Palackého, Olomouc
ID
03177
Stavba
Cihlová
Stav objektu
Novostavba
Patro
1. z 2
Vybaveno
Ne
Typ objektu
Patrový
Druh objektu
Rohový
Lokalita objektu
Centrum obce
Užitná plocha
155 m2
Elektřina
230V, 400V
Plyn
Plynovod
Odpad
Veřejná kanalizace
Topení
Ústřední plynové
Komunikace
Betonová, Dlážděná, Asfaltová
Telekomunikace
Telefon, Internet, Kabelová televize, Kabelové rozvody, Ostatní
Doprava
Vlak, Dálnice, Silnice, MHD, Autobus
Voda
Vodovod
Výtah
Bezbarierový přístup

Kontaktovat makléře

Realitní kancelář

Logo Jaroslav Vojta

Jaroslav Vojta

Legionářská 1319/10, Olomouc

Chystáte se prodat nemovitost?
Pomůžeme Vám!

Máte zájem o tuto nemovistost?

Tímto, v souladu s nařízením Evropského parlamentu a Rady (EU) 2016/679, v platném znění, prohlašuji, že mi je alespoň 16 let a uděluji tak svůj souhlas se zpracováním zadaných údajů (jméno, telefon, e-mail, ip adresa) společnosti B3 Technology, s.r.o., IČ: 07330600, se sídlem Novostavby 126/23, 435 11 Lom (správce dat), za účelem předání dotazu z tohoto formuláře Vámi vybranému inzerentovi a zpětného kontaktování mé osoby. Osobní údaje bude správce zpracovávat manuálně i automaticky přímo prostřednictvím svých zaměstnanců. Informace předané tímto formulářem budou uloženy v databázi správce maximálně po dobu 10 let. Odvolání souhlasu s uložením a zpracováním poskytnutých dat lze e-mailem na info@bydlisnami.cz. V případě podezření na neoprávněné použití Vámi poskytnutých údajů máte právo předat podnět k šetření Úřadu pro ochranu osobních údajů. Více informací
Chystáte se prodat nemovitost?
Pomůžeme Vám!

Inzerát si prohlédlo 3 lidí

Prodejce

Martin Ferianec

Martin Ferianec

Hlídací pes

Chcete dostávat emailem podobné nabídky pronájmu kanceláří v Olomouci?

Podobné nemovitosti