Prodej rodinného domu, Kladno, U zastávky, 176 m2

U zastávky, Kladno

14 990 000 Kč /za nemovitost HYPOTÉKA od 66 996 Kč /za měsíc
Doporučené firmy v Kladně

Informace k domu

Nabízíme k prodeji dvougenerační cihlový rodinný dům ve vyhledávané rezidenční lokalitě Kladno – Rozdělov, v ulici U zastávky. Dům je ve velmi dobrém technickém stavu, je zateplený polystyrenem o tloušťce 10 cm a střecha je osazena krytinou Bramac. Nemovitost je technicky i funkčně rozdělena na dvě samostatné bytové jednotky, každá má vlastní plynoměr, vodoměr i elektroměr, a zároveň jsou k dispozici dva samostatné vstupy, což umožňuje pohodlné bydlení pro dvě generace, případně kombinaci bydlení a pronájmu.

Součástí domu je udržovaná zahrada s řadou praktických doplňkových staveb. K dispozici je dvojgaráž o velikosti 26,5 m2 m² s vraty na dálkové ovládání, dále samostatná letní prádelna o ploše 6 m², sklad o velikosti 8 m², skleník, pergola o výměře 9 m² a přístřešek s krbem o velikosti 9 m², který nabízí příjemné zázemí pro posezení.

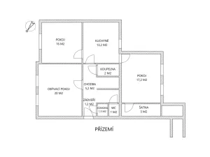
Horní podlaží prošlo kompletní moderní rekonstrukcí a nabízí vysoký standard bydlení. Nachází se zde obývací pokoj s velkým francouzským oknem se vstupem na terasu. Její orientace je jihozápadní a je vybavena zatahovací markýzou. Další obytný prostor je řešen jako otevřený celek propojující obývací část s kuchyňským koutem a jídelnou. K dispozici je ložnice s navazující šatnou, koupelna s WC, praktický kumbál a schodiště do podkroví, kde se nachází další ložnice. Vytápění a ohřev teplé vody zajišťuje plynový kotel Dakon se zásobníkem, v celém podlaží, kromě ložnice je podlahové vytápění řízené termostatem. Toaleta je řešena závěsným systémem Geberit. Interiér doplňují sádrokartonové podhledy a moderní kuchyňská linka se sklokeramickou deskou Schott Ceran, troubou Whirlpool a digestoří.

Spodní podlaží je ve velmi zachovalém původním stavu a nabízí dispozici zahrnující chodbu, obývací pokoj, dvě ložnice, kuchyň, šatnu, samostatné WC, koupelnu a vstup do sklepa. Sklep má rozlohu 22 m2. Vytápění zde zajišťuje nový plynový kotel Immergas, ohřev vody je řešen bojlerem Dražice. Na podlahách jsou plovoucí podlahy a koberce, v koupelně je dlažba a sprchový kout. Kuchyně je vybavena troubou a sklokeramickou deskou Electrolux a v ložnici je k dispozici vestavěná skříň.

Velkou předností je poloha domu, která kombinuje klidné rezidenční prostředí s výbornou dostupností do centra Kladna a kompletní občanskou vybaveností v okolí. V docházkové vzdálenosti je MHD a modernizovaná vlaková stanice, která zajišťuje velmi dobré spojení s Prahou. V blízkosti se nachází také aquapark, nemocnice, sportoviště Sletiště a vyhledávané gastronomické podniky včetně restaurace Na Letné.

V případě zájmu o více informací nebo sjednání prohlídky nás neváhejte kontaktovat.

Parametry domu

Cena
14 990 000 Kč /za nemovitost Spočítat hypotéku
Aktualizováno
10. 3. 2026
Adresa
U zastávky, Kladno
ID
19053
Stavba
Cihlová
Stav objektu
Velmi dobrý
Typ objektu
Patrový
Druh objektu
Samostatný
Užitná plocha
176 m2
Zastavěná plocha
113 m2
Plocha pozemku
622 m2
Třída energetické náročnosti
G - Mimořádně nehospodárná
Elektřina
230V
Plyn
Plynovod
Odpad
Veřejná kanalizace
Komunikace
Asfaltová
Doprava
Vlak, Dálnice, Silnice, MHD, Autobus
Voda
Vodovod
Garáž
Sklep
Převod do OV

Kontaktovat makléře

Realitní kancelář

Logo QARA, s.r.o.

QARA, s.r.o.

Šafaříkova 201/17, Praha

Chystáte se prodat nemovitost?
Pomůžeme Vám!

Máte zájem o tento dům?

Tímto, v souladu s nařízením Evropského parlamentu a Rady (EU) 2016/679, v platném znění, prohlašuji, že mi je alespoň 16 let a uděluji tak svůj souhlas se zpracováním zadaných údajů (jméno, telefon, e-mail, ip adresa) společnosti B3 Technology, s.r.o., IČ: 07330600, se sídlem Novostavby 126/23, 435 11 Lom (správce dat), za účelem předání dotazu z tohoto formuláře Vámi vybranému inzerentovi a zpětného kontaktování mé osoby. Osobní údaje bude správce zpracovávat manuálně i automaticky přímo prostřednictvím svých zaměstnanců. Informace předané tímto formulářem budou uloženy v databázi správce maximálně po dobu 10 let. Odvolání souhlasu s uložením a zpracováním poskytnutých dat lze e-mailem na info@bydlisnami.cz. V případě podezření na neoprávněné použití Vámi poskytnutých údajů máte právo předat podnět k šetření Úřadu pro ochranu osobních údajů. Více informací
Chystáte se prodat nemovitost?
Pomůžeme Vám!

Inzerát si prohlédlo 0 lidí

Prodejce

Ing. Marek Kotík

Ing. Marek Kotík

Hlídací pes

Chcete dostávat emailem podobné nabídky prodeje rodinných domů v Kladně?

Podobné nemovitosti