Prodej rodinného domu, Hostěradice, 127 m2

Hostěradice

5 990 000 Kč /za nemovitost HYPOTÉKA od 26 772 Kč /za měsíc

(Cena je včetně provize RK a právního servisu., včetně provize, včetně právního servisu)

Doporučené firmy v Hostěradicích

Informace k domu

Rodinný dům 3+1 se zahradou a wellness v Hostěradicích.

Nabízíme k prodeji samostatně stojící rodinný dům v klidné části obce Hostěradice. Dům je ve velmi dobrém udržovaném stavu a nabízí velkorysé zázemí pro rodinné bydlení i aktivní odpočinek.

Základní informace o pozemku:
Celková plocha parcely: 1 381 m²
Zastavěná plocha a nádvoří: 484 m²

Zahrada: 897 m²
Typ stavby: Zděný dům (kámen, cihla, tvárnice) se sedlovou střechou (pálená taška)
Podsklepení: Dům je částečně podsklepený

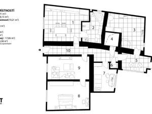
Dispozice a interiér (cca 138 m²)

Dům nabízí praktické rozložení místností s důrazem na prostor a pohodlí:
Kuchyně s jídelnou: 24,91 m²
Ložnice: 22 m²
Obývací pokoj: 17,85 m²
Pokoj: 10,8 m²
Prostorná koupelna: 10,15 m² s vanou i sprchovým koutem
Wellness: Přímo v domě se nachází infrasauna

Zázemí: Technická místnost (19,21 m²), chodby, spíž a samostatné WC


Zahrada je kompletně vybavená pro relaxaci i zahradničení:
Bazén: Nadzemní bazén s dřevěnou opalovací terasou
Posezení: Zastřešená dřevěná pergola pro venkovní stolování
Zahrada: Okrasné jezírko, skleník, vzrostlé ovocné stromy a travnaté plochy
Garáž: Součástí objektu je prostorná garáž s vjezdem z ulice

Technické údaje:
Inženýrské sítě: Elektřina (240/400 V), obecní vodovod, hloubková kanalizace
Vytápění: Ústřední topení s kotlem na tuhá paliva
Plyn: Nemovitost není napojena na plyn
Ohřev vody: Elektrický bojler
Okna: Plastová

Majitel si vyhrazuje právo vybrat nájemce na základě jim zvolených kritérií. Veškeré zveřejněné údaje obsažené v tomto inzerátu mají pouze informativní charakter a nejsou nabídkou ve smyslu § 1731 nebo § 1732 občanského zákoníku, ani se nejedná o veřejný příslib dle § 1733 občanského zákoníku.

Parametry domu

Cena
5 990 000 Kč /za nemovitost Spočítat hypotéku
Poznámka k ceně
Cena je včetně provize RK a právního servisu., včetně provize, včetně právního servisu
Aktualizováno
13. 3. 2026
Adresa
Hostěradice
ID
03865
Stavba
Cihlová
Stav objektu
Dobrý
Vybaveno
Ano
Druh objektu
Řadový
Lokalita objektu
Klidná část obce
Užitná plocha
127 m2
Zastavěná plocha
484 m2
Plocha pozemku
1381 m2
Plocha zahrady
897 m2
Třída energetické náročnosti
G - Mimořádně nehospodárná
Elektřina
230V, 400V
Plyn
Plynovod
Odpad
Veřejná kanalizace
Telekomunikace
Internet
Doprava
Silnice, Autobus
Voda
Vodovod
Topné těleso
Radiátory, Kotel na tuhá paliva
Zdroj topení
Kotel na tuhá paliva
Zdroj teplé vody
Elektrokotel
Garáž
Sklep
Výtah
Bazén

Kontaktovat makléře

Máte zájem o tento dům?

Tímto, v souladu s nařízením Evropského parlamentu a Rady (EU) 2016/679, v platném znění, prohlašuji, že mi je alespoň 16 let a uděluji tak svůj souhlas se zpracováním zadaných údajů (jméno, telefon, e-mail, ip adresa) společnosti B3 Technology, s.r.o., IČ: 07330600, se sídlem Novostavby 126/23, 435 11 Lom (správce dat), za účelem předání dotazu z tohoto formuláře Vámi vybranému inzerentovi a zpětného kontaktování mé osoby. Osobní údaje bude správce zpracovávat manuálně i automaticky přímo prostřednictvím svých zaměstnanců. Informace předané tímto formulářem budou uloženy v databázi správce maximálně po dobu 10 let. Odvolání souhlasu s uložením a zpracováním poskytnutých dat lze e-mailem na info@bydlisnami.cz. V případě podezření na neoprávněné použití Vámi poskytnutých údajů máte právo předat podnět k šetření Úřadu pro ochranu osobních údajů. Více informací
Chystáte se prodat nemovitost?
Pomůžeme Vám!

Inzerát si prohlédlo 4 lidí

Prodejce

Petr Bartoš

Petr Bartoš

Hlídací pes

Chcete dostávat emailem podobné nabídky prodeje rodinných domů v Hostěradicích?

Top nabídky

Podobné nemovitosti