Prodej rodinného domu, Žichlínek, 180 m2

Žichlínek

5 700 000 Kč /za nemovitost HYPOTÉKA od 25 476 Kč /za měsíc

(cena je včetně právního servisu a provize realitní kanceláři)

Doporučené firmy v Žichlínku

Informace k domu

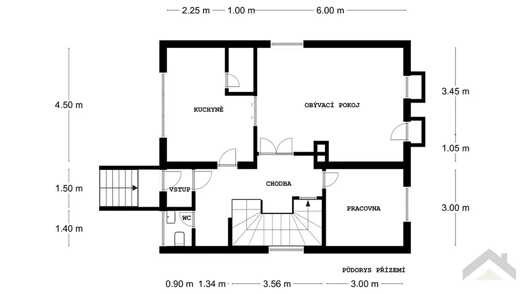
K prodeji je samostatně stojící rodinný dům v obci Žichlínek, dům se nachází v klidné části obce, na konci ulice, přesto nedaleko od centra obce. Dům byl vystavěn v 90. letech 20. století, je pečlivě udržovaný, postupně modernizovaný a ve velmi dobrém stavebně-technickém stavu s možností okamžitého bydlení. Jedná se o celopodsklepenou, jednopodlažní stavbu s obytným podkrovím. Obytnou dispozici přízemí tvoří obývací pokoj, kuchyně se spíží, pracovna, toaleta, zádveří a chodba s úložným prostorem. Z chodby je pak přístupné podkroví, kde se nachází tři ložnice a koupelna s toaletou. Suterén tvoří technické zázemí domu, najdeme zde garáž, kotelnu, sklep, úložný prostor pod schody a nově vybudovanou koupelnu. Oplocená zahrada má výměru 519 m2 a nabízí prostor pro relaxaci i rodinné aktivity. Nachází se zde kryté posezení s grilem a bazén, kam se vejde celá rodina. Součástí prodeje je i pozemek o výměře 414 m2 před domem sloužící k parkování či uskladnění dřeva. Vytápění domu zajišťuje kotel na tuhá paliva, další alternativou je elektrokotel. Dalším zdrojem tepla jsou krbová kamna v obývacím pokoji. Plynová přípojka je na hranici pozemku.

Parametry domu

Cena
5 700 000 Kč /za nemovitost Spočítat hypotéku
Poznámka k ceně
cena je včetně právního servisu a provize realitní kanceláři
Aktualizováno
13. 3. 2026
Adresa
Žichlínek
ID
0619
Stavba
Cihlová
Stav objektu
Velmi dobrý
Druh objektu
Samostatný
Užitná plocha
180 m2
Zastavěná plocha
86 m2
Podlahová plocha
180 m2
Plocha pozemku
1019 m2
Plocha zahrady
933 m2
Plyn
Plynovod
Topení
Lokální tuhá paliva, Ústřední elektrické
Komunikace
Asfaltová, Zpevněná
Doprava
Vlak, Silnice, Autobus
Voda
Vodovod
Zdroj topení
Elektrokotel, Krbová kamna, Kotel na tuhá paliva
Zdroj teplé vody
Kotel na tuhá paliva
Garáž
Sklep
Bezbarierový přístup
Parkování
Bazén

Kontaktovat makléře

Máte zájem o tento dům?

Tímto, v souladu s nařízením Evropského parlamentu a Rady (EU) 2016/679, v platném znění, prohlašuji, že mi je alespoň 16 let a uděluji tak svůj souhlas se zpracováním zadaných údajů (jméno, telefon, e-mail, ip adresa) společnosti B3 Technology, s.r.o., IČ: 07330600, se sídlem Novostavby 126/23, 435 11 Lom (správce dat), za účelem předání dotazu z tohoto formuláře Vámi vybranému inzerentovi a zpětného kontaktování mé osoby. Osobní údaje bude správce zpracovávat manuálně i automaticky přímo prostřednictvím svých zaměstnanců. Informace předané tímto formulářem budou uloženy v databázi správce maximálně po dobu 10 let. Odvolání souhlasu s uložením a zpracováním poskytnutých dat lze e-mailem na info@bydlisnami.cz. V případě podezření na neoprávněné použití Vámi poskytnutých údajů máte právo předat podnět k šetření Úřadu pro ochranu osobních údajů. Více informací
Chystáte se prodat nemovitost?
Pomůžeme Vám!

Inzerát si prohlédlo 0 lidí

Prodejce

Mgr. Monika  Kindlová

Mgr. Monika Kindlová

Hlídací pes

Chcete dostávat emailem podobné nabídky prodeje rodinných domů v Žichlínku?

Podobné nemovitosti