Pronájem bytu 3+kk, Praha - Stodůlky, Bělohlávkova, 74 m2

Bělohlávkova, Praha, Stodůlky

38 000 Kč /za měsíc Získejte výhodnou HYPOTÉKU

(+ poplatky/měsíc: 4266 Kč + převod na nájemce: elektřina + internet)

Doporučené firmy v Praze 5

Stěhovací služby

Výkup a prodej starého nábytku

Informace k bytu

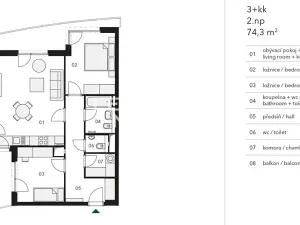
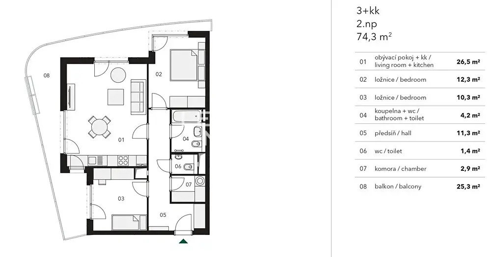
Nabízíme k pronájmu zařízený, zcela nový, dosud neobývaný byt 3+kk o velikosti 74 m2 s balkónem 25 m2, situovaný v 2.NP domu v projektu Arcus city s výtahem. Nemovitost se nachází v krásné lokalitě Prahy 5 - Stodůlky disponující veškerou občanskou vybaveností a výbornou dopravní infrastrukturou.


Byt nabízí k užívání obývací pokoj s kuchyňským koutem, 2 ložnice, koupelnu s vanou a toaletou, druhou samostatnou toaletu, chodbu a komoru. Přímý vstup na balkón je ze všech hlavních místností. K dispozici je i sklep a garážové parkovací stání, další parkovací stání za příplatek 1 500 Kč/ měsíc.


Kuchyňský kout je vybavený indukční varnou deskou, troubou, lednicí, mrazákem a myčkou nádobí. K dispozici je pračka a sušička.


Čtvrť tvoří převážně nové bytové domy a má skvělou dopravní dostupnost. Přímo u vchodu do domu je zastávka autobusů, v docházkové vzdálenosti je stanice metra Stodůlky. Autem dojedete na dálnici za 3 minuty, na mezinárodní letiště Václava Havla za 12 minut, do nákupního a zábavního centra Metropole Zličín za 5 minut. V místě najdete veškerou občanskou vybavenost – mateřské a základní školy, gymnázium, restaurace, supermarkety, lékárny, polikliniku, dětská hřiště, poštu. Pro volnočasové aktivity můžete využít v okolí Toboga Fantasy park, Form Factory fitness, basketbalovou halu, fotbalová a volejbalová hřiště, tenisové kurty, venkovní posilovny a cyklostezky. Na procházku se lze vydat do Panské zahrady, údolím Motolského potoka nebo vyrazit na kole ke Stodůleckému rybníku.



Poptávající klient neplatí provizi.


Pokud si nemovitost nemůžete prohlédnout osobně, nabízíme Vám také videoprohlídku z pohodlí Vašeho domova v reálném čase přes Messenger, WhatsApp a další komunikační platformy.

Parametry bytu

Cena
38 000 Kč /za měsíc
Poznámka k ceně
+ poplatky/měsíc: 4266 Kč + převod na nájemce: elektřina + internet
Aktualizováno
13. 3. 2026
Adresa
Bělohlávkova, Praha, Stodůlky
ID
531791
Stavba
Smíšená
Stav objektu
Novostavba
Patro
2. z 4
Vybaveno
Ano
Vlastnictví
Osobní
Užitná plocha
74 m2
Třída energetické náročnosti
B - Velmi úsporná
Balkon
Garáž
Sklep
Výtah
Převod do OV
Parkování

Kontaktovat makléře

Máte zájem o tento byt?

Tímto, v souladu s nařízením Evropského parlamentu a Rady (EU) 2016/679, v platném znění, prohlašuji, že mi je alespoň 16 let a uděluji tak svůj souhlas se zpracováním zadaných údajů (jméno, telefon, e-mail, ip adresa) společnosti B3 Technology, s.r.o., IČ: 07330600, se sídlem Novostavby 126/23, 435 11 Lom (správce dat), za účelem předání dotazu z tohoto formuláře Vámi vybranému inzerentovi a zpětného kontaktování mé osoby. Osobní údaje bude správce zpracovávat manuálně i automaticky přímo prostřednictvím svých zaměstnanců. Informace předané tímto formulářem budou uloženy v databázi správce maximálně po dobu 10 let. Odvolání souhlasu s uložením a zpracováním poskytnutých dat lze e-mailem na info@bydlisnami.cz. V případě podezření na neoprávněné použití Vámi poskytnutých údajů máte právo předat podnět k šetření Úřadu pro ochranu osobních údajů. Více informací
Chystáte se prodat nemovitost?
Pomůžeme Vám!

Inzerát si prohlédlo 0 lidí

Prodejce

Adéla Bukovská - recepce

Adéla Bukovská - recepce

Hlídací pes

Chcete dostávat emailem podobné nabídky pronájmu bytů 3+kk v Praze 5?

Podobné nemovitosti