Prodej rodinného domu, Prostějov - Čechůvky, 88 m2

Prostějov, Čechůvky

3 300 000 Kč /za nemovitost HYPOTÉKA od 14 749 Kč /za měsíc
Doporučené firmy v Prostějově

Informace k domu

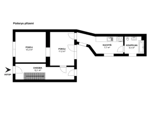
Nabízíme k prodeji rodinný dům v Prostějově, část Čechůvky, jen 5 minut od centra města. Dům disponuje dvěmi nadzemními podlažími o celkové užitné ploše cca 88,6 m² (1. NP 50,7 m², 2. NP 37,9 m²) a zastavěné ploše 87 m². Dům byl kolaudován kolem roku 1945 a je postaven ze smíšeného zdiva – kámen, cihly a tvárnice.

Nemovitost je napojena na obecní vodovod i kanalizaci. Střecha je krytá pálenou taškou a zateplená vatou. O vytápění se starají plynové přímotopy / karma. V domě jsou střešní okna Velux (dřevěná), ostatní okna Vekra (plastová) a plastové vchodové dveře. Elektroinstalace je v původním stavu. K dispozici je také zásuvka na 380 V.

Dispozice domu je zajímavá a má své osobité kouzlo – pokoje mají nepravidelné tvary, což vychází ze šikmého usazení domu na pozemku. Koupelna s kuchyní byla řešena formou přístavby.

Součástí zázemí je také dvorek, na kterém se nachází kůlna, kurník a sklep na brambory, což ocení zejména zájemci hledající praktické hospodářské využití.

Nemovitost je vhodná pro ty, kteří hledají dům s charakterem, možností úprav podle vlastních představ a zázemím pro bydlení i drobné hospodaření.

U této nabídky zajišťujeme kupujícím financování skrze partnera SMS finance za nejvýhodnějších podmínek na trhu.

Parametry domu

Cena
3 300 000 Kč /za nemovitost Spočítat hypotéku
Aktualizováno
17. 3. 2026
Adresa
Prostějov, Čechůvky
ID
1827
Stavba
Smíšená
Stav objektu
Dobrý
Typ objektu
Patrový
Druh objektu
Řadový
Užitná plocha
88 m2
Zastavěná plocha
87 m2
Plocha pozemku
112 m2
Třída energetické náročnosti
G - Mimořádně nehospodárná
Elektřina
230V, 400V
Plyn
Plynovod
Odpad
Veřejná kanalizace, Septik
Komunikace
Asfaltová
Doprava
Silnice
Voda
Vodovod
Převod do OV

Kontaktovat makléře

Máte zájem o tento dům?

Tímto, v souladu s nařízením Evropského parlamentu a Rady (EU) 2016/679, v platném znění, prohlašuji, že mi je alespoň 16 let a uděluji tak svůj souhlas se zpracováním zadaných údajů (jméno, telefon, e-mail, ip adresa) společnosti B3 Technology, s.r.o., IČ: 07330600, se sídlem Novostavby 126/23, 435 11 Lom (správce dat), za účelem předání dotazu z tohoto formuláře Vámi vybranému inzerentovi a zpětného kontaktování mé osoby. Osobní údaje bude správce zpracovávat manuálně i automaticky přímo prostřednictvím svých zaměstnanců. Informace předané tímto formulářem budou uloženy v databázi správce maximálně po dobu 10 let. Odvolání souhlasu s uložením a zpracováním poskytnutých dat lze e-mailem na info@bydlisnami.cz. V případě podezření na neoprávněné použití Vámi poskytnutých údajů máte právo předat podnět k šetření Úřadu pro ochranu osobních údajů. Více informací
Chystáte se prodat nemovitost?
Pomůžeme Vám!

Inzerát si prohlédlo 1 lidí

Prodejce

Adam Martinák

Adam Martinák

Hlídací pes

Chcete dostávat emailem podobné nabídky prodeje rodinných domů v Prostějově?

Podobné nemovitosti