Pronájem bytu 3+1, Světlá nad Sázavou, Na Sídlišti, 67 m2

Na Sídlišti, Světlá nad Sázavou

14 500 Kč /za měsíc Získejte výhodnou HYPOTÉKU

(+popl. 5500, + přepis elektřiny na nájemníka)

Doporučené firmy v Světlé nad Sázavou

Informace k bytu

Hledáte byt k pronájmu po kompletní rekonstrukci, kde už stačí jen převzít klíče a začít bydlet? Máme pro vás byt 3+1 ve Světlé nad Sázavou, který se nachází v ulici Na Sídlišti, jen kousek od centra města.

Byt nabízí užitnou plochu 67 m² a bonusem je balkón o velikosti 4 m², ideální místo pro ranní kávu nebo chvíle odpočinku. Praktickým benefitem je také komora o velikosti 2 m² umístěná mimo bytovou jednotku, která poskytuje další prostor pro uskladnění věcí.

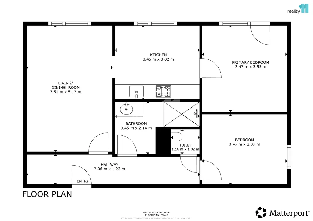
Dispozičně je byt řešen jako 3+1 a nabízí obývací pokoj, ložnici, kuchyni, další pokoj, koupelnu, samostatné WC a prostornou chodbu, která poskytuje dostatek prostoru pro umístění úložných prostor.

V rámci rekonstrukce došlo k celkové výměně elektroinstalace a vodovodních rozvodů. Byt má nové omítky a všude byla položena nová podlahová krytina. Díky tomu nabízí bydlení bez nutnosti dalších investic.

Velkou výhodou je také samotná lokalita. Ulice Na Sídlišti ve Světlé nad Sázavou patří mezi vyhledávané části města – v docházkové vzdálenosti najdete obchody, školy, školky i další občanskou vybavenost a zároveň jste jen pár minut chůze od centra.

Měsíční nájemné činí 14 500 Kč, zálohy na energie jsou stanoveny ve výši 5 500 Kč. Elektřina se přepisuje na nájemníka. Vratná kauce je stanovena ve výši 29 000 Kč. Při podpisu nájemní smlouvy hradí zájemce provizi realitní kanceláři.

K bytu je k dispozici také 3D virtuální prohlídka, kterou vám na vyžádání velmi rádi zašleme.

Pokud vás tato nabídka zaujala, neváhejte mě kontaktovat pro více informací nebo domluvení osobní prohlídky. Budu se na vás těšit při společném setkání. Ev. číslo: 28121.

Parametry bytu

Cena
14 500 Kč /za měsíc
Poznámka k ceně
+popl. 5500, + přepis elektřiny na nájemníka
Aktualizováno
18. 3. 2026
Adresa
Na Sídlišti, Světlá nad Sázavou
ID
28121
Stavba
Panelová
Stav objektu
Velmi dobrý
Patro
2. z 7
Vlastnictví
Osobní
Užitná plocha
67 m2
Podlahová plocha
67 m2
Třída energetické náročnosti
G - Mimořádně nehospodárná
Topení
Ústřední dálkové
Balkon
Sklep

Kontaktovat makléře

Máte zájem o tento byt?

Tímto, v souladu s nařízením Evropského parlamentu a Rady (EU) 2016/679, v platném znění, prohlašuji, že mi je alespoň 16 let a uděluji tak svůj souhlas se zpracováním zadaných údajů (jméno, telefon, e-mail, ip adresa) společnosti B3 Technology, s.r.o., IČ: 07330600, se sídlem Novostavby 126/23, 435 11 Lom (správce dat), za účelem předání dotazu z tohoto formuláře Vámi vybranému inzerentovi a zpětného kontaktování mé osoby. Osobní údaje bude správce zpracovávat manuálně i automaticky přímo prostřednictvím svých zaměstnanců. Informace předané tímto formulářem budou uloženy v databázi správce maximálně po dobu 10 let. Odvolání souhlasu s uložením a zpracováním poskytnutých dat lze e-mailem na info@bydlisnami.cz. V případě podezření na neoprávněné použití Vámi poskytnutých údajů máte právo předat podnět k šetření Úřadu pro ochranu osobních údajů. Více informací
Chystáte se prodat nemovitost?
Pomůžeme Vám!

Inzerát si prohlédlo 1 lidí

Prodejce

Bc. Jaroslav Fišer

Bc. Jaroslav Fišer

Hlídací pes

Chcete dostávat emailem podobné nabídky pronájmu bytů 3+1 v Světlé nad Sázavou?

Podobné nemovitosti