Prodej bytu 2+1, Brno - Černá Pole, náměstí SNP, 58 m2

náměstí SNP, Brno, Černá Pole

Rezervováno
6 490 000 Kč /za nemovitost HYPOTÉKA od 29 006 Kč /za měsíc

(včetně provize a právních služeb)

Doporučené firmy v Brně

Pojištění a finance

Informace k bytu

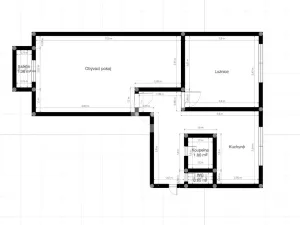
Nabízíme k prodeji slunný byt o dispozici 2+1 s prakticky odděleným prostorem a celkové ploše 55 m², situovaný přímo na náměstí SNP v jedné z nejvyhledávanějších brněnských čtvrtí – Černá Pole.
Byt je v původním, udržovaném stavu, což vám dává dvě jasné možnosti. Můžete ho začít okamžitě využívat – stačí dovybavit nábytkem a získáte plnohodnotné, funkční bydlení ideální jako startovací byt nebo zázemí pro studenty. Zároveň ale nabízí velmi zajímavý potenciál do budoucna – rekonstrukcí si prostor přizpůsobíte přesně podle sebe nebo ho optimalizujete pro maximální výnos z pronájmu.
Dispozice bytu nabízí víc, než se na první pohled zdá. Vedle klasického řešení 2+1 zde najdete také prakticky oddělený prostor, který dnes funguje jako
otevřená zóna, ale snadno poslouží jako pracovna, spací kout nebo šatna. Díky svému uspořádání jej lze navíc jednoduchým řešením (např. příčkou a dveřmi) přeměnit na samostatnou menší místnost. Právě tato variabilita výrazně zvyšuje atraktivitu jak pro vlastní bydlení, tak pro pronájem více osobám.
Balkon orientovaný do zeleně přináší příjemný klid a prostor pro každodenní relax, zatímco sklepní kóje řeší praktickou stránku úložného prostoru.
Velkou výhodou je samotný dům, který prošel kompletní revitalizací – zateplení, fasáda, stupačky, výtahy, elektřina i střecha. Pro nového majitele to znamená minimum starostí a dlouhodobě stabilní hodnotu nemovitosti. Energetická třída C navíc drží provozní náklady v rozumné hladině.
Černá Pole patří dlouhodobě mezi lokality s vysokou poptávkou po bydlení. Výborná dostupnost do centra, kompletní občanská vybavenost v docházkové vzdálenosti a blízkost zeleně dělají z této adresy ideální volbu jak pro vlastní bydlení, tak pro investici.

Parametry bytu

Stav
Rezervováno
Cena
6 490 000 Kč /za nemovitost Spočítat hypotéku
Poznámka k ceně
včetně provize a právních služeb
Aktualizováno
16. 4. 2026
Adresa
náměstí SNP, Brno, Černá Pole
ID
2026-03-18
Stavba
Panelová
Stav objektu
Dobrý
Patro
1. z 7
Typ objektu
Patrový
Lokalita objektu
Klidná část obce
Vlastnictví
Osobní
Užitná plocha
58 m2
Podlahová plocha
55 m2
Třída energetické náročnosti
C - Úsporná
Elektřina
230V
Plyn
Plynovod
Odpad
Veřejná kanalizace
Topení
Ústřední dálkové
Komunikace
Asfaltová
Doprava
Vlak, Dálnice, Silnice, MHD, Autobus
Voda
Vodovod
Topné těleso
Radiátory
Zdroj topení
Ústřední dálkové
Balkon
Sklep
Výtah
Bezbarierový přístup

Kontaktovat makléře

Realitní kancelář

Good move s.r.o.

Dr. Absolona 132, Fryšták

Chystáte se prodat nemovitost?
Pomůžeme Vám!

Máte zájem o tento byt?

Tímto, v souladu s nařízením Evropského parlamentu a Rady (EU) 2016/679, v platném znění, prohlašuji, že mi je alespoň 16 let a uděluji tak svůj souhlas se zpracováním zadaných údajů (jméno, telefon, e-mail, ip adresa) společnosti B3 Technology, s.r.o., IČ: 07330600, se sídlem Novostavby 126/23, 435 11 Lom (správce dat), za účelem předání dotazu z tohoto formuláře Vámi vybranému inzerentovi a zpětného kontaktování mé osoby. Osobní údaje bude správce zpracovávat manuálně i automaticky přímo prostřednictvím svých zaměstnanců. Informace předané tímto formulářem budou uloženy v databázi správce maximálně po dobu 10 let. Odvolání souhlasu s uložením a zpracováním poskytnutých dat lze e-mailem na info@bydlisnami.cz. V případě podezření na neoprávněné použití Vámi poskytnutých údajů máte právo předat podnět k šetření Úřadu pro ochranu osobních údajů. Více informací
Chystáte se prodat nemovitost?
Pomůžeme Vám!
Theleadway banner

Inzerát si prohlédlo 5 lidí

Prodejce

Marek Jaroš

Marek Jaroš

Hlídací pes

Chcete dostávat emailem podobné nabídky prodeje bytů 2+1 v Brně?

Podobné nemovitosti