Pronájem bytu 3+kk, Plzeň - Jižní Předměstí, Máchova, 74 m2

Máchova, Plzeň, Jižní Předměstí

19 000 Kč /za měsíc Získejte výhodnou HYPOTÉKU

(provizi hradí nájemce)

Doporučené firmy v Plzni

Stěhovací služby

Pojištění a finance

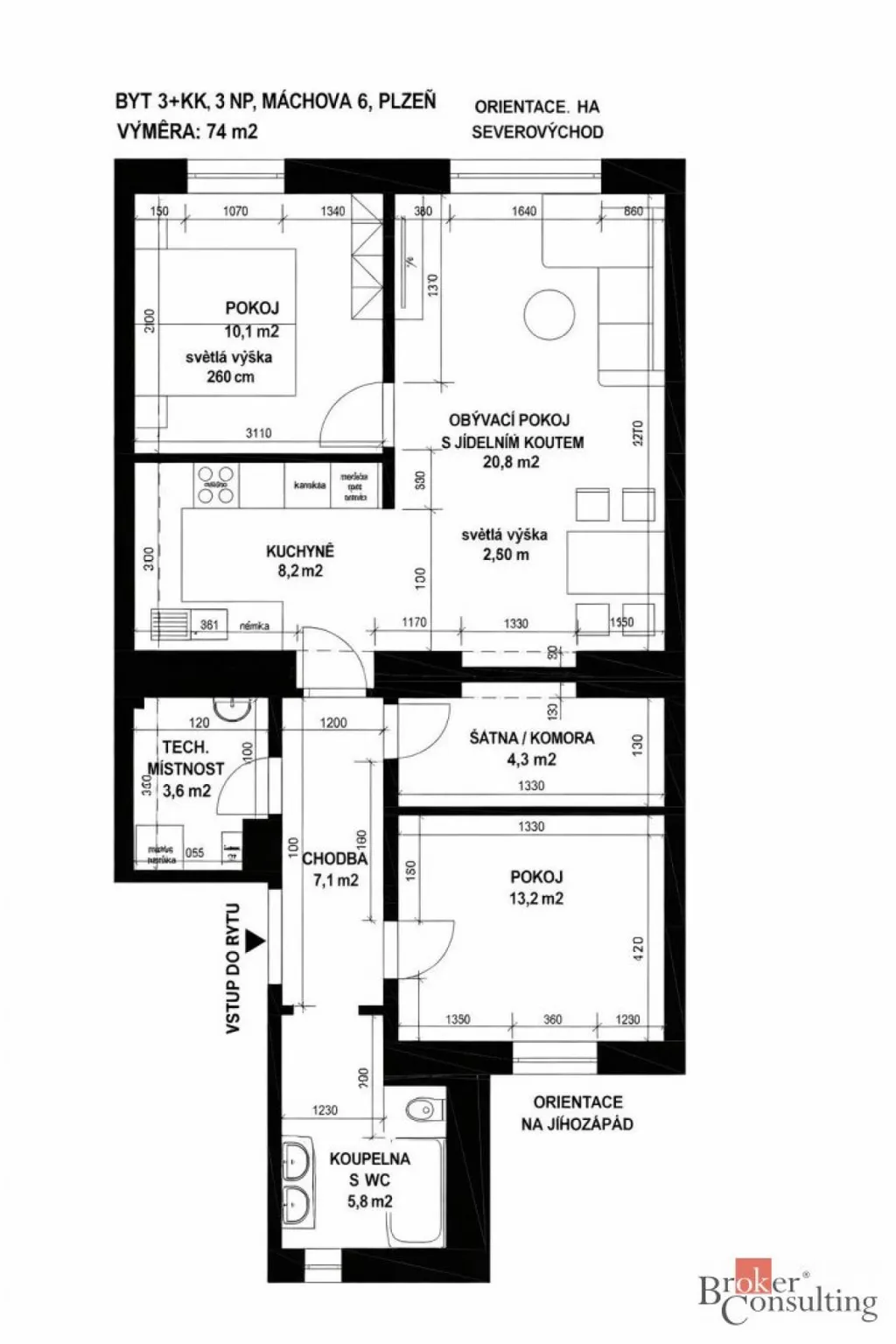
Informace k bytu

Dámy a pánové,

Dovolte nám představit tento krásný, zrekonstruovaný byt 3+kk, který právě teď míří do nabídky pronájmů a pokud hledáte pro sebe a svoji rodinu v dnešní době, cenově dostupné bydlení, jste na správné adrese.

Vítejte v Plzni na Borech v Máchově ulici.

Tento světlý a skvěle dispozičně řešený byt prošel v roce 2018 kompletní rekonstrukcí. Užitná plocha samotného bytu činní 74m2. Bytovou jednotku tvoři prostorná předsíň s chodbou, koupelna s toaletou, dětský pokoj, šatna, technická místnost, kuchyňský kout s jídelnou a obývacím pokojem, ze kterého je přímý vstup do hlavní ložnice.

Byt se nachází ve třetím patře cihlového domu bez výtahu, kdy na každém patře jsou pouze dva byty, což zajišťuje dostatek soukromí.

Jelikož dům leží v širším centru Plzně, veškerá občanská vybavenost pro každodenní žití se nachází v docházkové vzdálenosti.

Nájemné činní 19 000- + 1 000,- služby + Elektřina, kterou si nájemce převádí na sebe.

Provize RK je 20 000,- + DPH.

Pokud vás tato nemovitost zaujala, neváhejte nás kontaktovat.

Rezervujte si své místo již nyní, rádi vás nemovitostí provedeme.

Parametry bytu

Cena
19 000 Kč /za měsíc
Poznámka k ceně
provizi hradí nájemce
Aktualizováno
1. 5. 2026
Adresa
Máchova, Plzeň, Jižní Předměstí
ID
83593
Stavba
Cihlová
Stav objektu
Velmi dobrý
Patro
3. z 4
Vybaveno
Ano
Druh objektu
V bloku
Vlastnictví
Osobní
Užitná plocha
74 m2
Třída energetické náročnosti
G - Mimořádně nehospodárná
Elektřina
400V
Odpad
Veřejná kanalizace
Topení
Lokální elektrické
Komunikace
Dlážděná
Doprava
Vlak, Dálnice, Silnice, MHD, Autobus
Voda
Vodovod
Výtah

Kontaktovat makléře

Realitní kancelář

Logo Broker Consulting, a.s.

Broker Consulting, a.s.

Jiráskovo náměstí 2684/2, Plzeň

Chystáte se prodat nemovitost?
Pomůžeme Vám!

Máte zájem o tento byt?

Tímto, v souladu s nařízením Evropského parlamentu a Rady (EU) 2016/679, v platném znění, prohlašuji, že mi je alespoň 16 let a uděluji tak svůj souhlas se zpracováním zadaných údajů (jméno, telefon, e-mail, ip adresa) společnosti B3 Technology, s.r.o., IČ: 07330600, se sídlem Novostavby 126/23, 435 11 Lom (správce dat), za účelem předání dotazu z tohoto formuláře Vámi vybranému inzerentovi a zpětného kontaktování mé osoby. Osobní údaje bude správce zpracovávat manuálně i automaticky přímo prostřednictvím svých zaměstnanců. Informace předané tímto formulářem budou uloženy v databázi správce maximálně po dobu 10 let. Odvolání souhlasu s uložením a zpracováním poskytnutých dat lze e-mailem na info@bydlisnami.cz. V případě podezření na neoprávněné použití Vámi poskytnutých údajů máte právo předat podnět k šetření Úřadu pro ochranu osobních údajů. Více informací
Chystáte se prodat nemovitost?
Pomůžeme Vám!
Theleadway banner

Inzerát si prohlédlo 13 lidí

Hlídací pes

Chcete dostávat emailem podobné nabídky pronájmu bytů 3+kk v Plzni?

Podobné nemovitosti