Prodej bytu 3+1, Teplice, Krušnohorská, 64 m2

Krušnohorská, Teplice, Trnovany

3 300 000 Kč /za nemovitost HYPOTÉKA od 14 749 Kč /za měsíc

(přepis na družstvu platí kupující, včetně provize, včetně právního servisu)

Doporučené firmy v Teplicích

Okna a dveře

Rekonstrukce

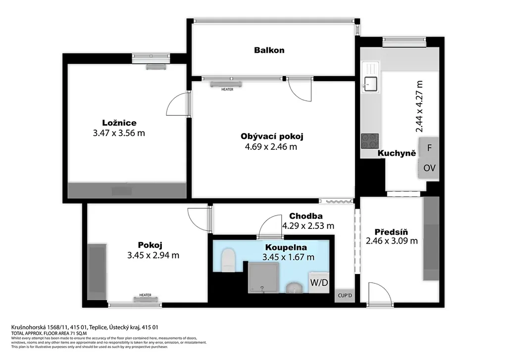
Informace k bytu

S radostí Vám představujeme nádherný, elegantní byt 3+1 v žádané lokalitě Teplic, na ulici Krušnohorská.
Tento prostorný a světlý byt o rozloze 64 m² je skutečným klenotem, který spojuje komfort moderního bydlení s útulnou atmosférou domova.

Byt se nachází v pátém patře zatepleného domu s výtahem, což zaručuje pohodlí a snadný přístup. Nedávno a s velkou péčí prošel kompletní rekonstrukcí, při které byly vyměněny zdi i podlahy, a v kuchyni se nachází nová kuchyňská linka, která disponuje dostatkem úložného prostoru a moderními spotřebiči.
Zděná koupelna s prostorným sprchovým koutem spolehlivě splní všechny Vaše požadavky na komfort a relaxaci.

Byt je řešen chytrým a praktickým způsobem: prostorná vstupní chodba s vestavěnými skříněmi vás uvítá při vstupu domů, odtud se pohodlně dostanete do kuchyně, obývacího pokoje a dětského pokoje.
Ložnice je situována za obývákem, poskytující klid a soukromí.
Obývací pokoj je ideálním místem pro odpočinek i setkání s rodinou či přáteli, ze kterého je vstup na prostorný balkon s úchvatným výhledem do krajiny – místo, kde si můžete vychutnat čerstvý vzduch a krásné západy slunce.

Dům je velmi klidný, udržovaný a sousedé si ho pečlivě hlídají – ideální prostředí pro spokojené bydlení. Parkování je možné přímo před vchodem, což přispívá k pohodlí každodenního života.

Tento byt je jako jemná melodie – harmonické spojení praktického prostoru, moderního komfortu a klidného prostředí. Přijďte si ho osobně prohlédnout a představte si svoje nové, útulné hnízdo na Krušnohorské.
Na vaší osobní prohlídce Vás ráda uvítá makléřka zakázky.

Parametry bytu

Cena
3 300 000 Kč /za nemovitost Spočítat hypotéku
Poznámka k ceně
přepis na družstvu platí kupující, včetně provize, včetně právního servisu
Aktualizováno
21. 3. 2026
Adresa
Krušnohorská, Teplice, Trnovany
ID
00170
Stavba
Panelová
Stav objektu
Velmi dobrý
Patro
5. z 8
Vybaveno
Ano
Lokalita objektu
Klidná část obce
Vlastnictví
Družstevní
Užitná plocha
64 m2
Třída energetické náročnosti
G - Mimořádně nehospodárná
Elektřina
230V
Plyn
Plynovod
Odpad
Veřejná kanalizace
Komunikace
Asfaltová
Telekomunikace
Internet, Kabelové rozvody
Doprava
Vlak, Dálnice, Silnice, MHD, Autobus
Voda
Vodovod
Topné těleso
Radiátory
Zdroj topení
Centrální dálkové
Zdroj teplé vody
Centrální dálkový ohřev
Lodžie
Výtah
Převod do OV

Kontaktovat makléře

Máte zájem o tento byt?

Tímto, v souladu s nařízením Evropského parlamentu a Rady (EU) 2016/679, v platném znění, prohlašuji, že mi je alespoň 16 let a uděluji tak svůj souhlas se zpracováním zadaných údajů (jméno, telefon, e-mail, ip adresa) společnosti B3 Technology, s.r.o., IČ: 07330600, se sídlem Novostavby 126/23, 435 11 Lom (správce dat), za účelem předání dotazu z tohoto formuláře Vámi vybranému inzerentovi a zpětného kontaktování mé osoby. Osobní údaje bude správce zpracovávat manuálně i automaticky přímo prostřednictvím svých zaměstnanců. Informace předané tímto formulářem budou uloženy v databázi správce maximálně po dobu 10 let. Odvolání souhlasu s uložením a zpracováním poskytnutých dat lze e-mailem na info@bydlisnami.cz. V případě podezření na neoprávněné použití Vámi poskytnutých údajů máte právo předat podnět k šetření Úřadu pro ochranu osobních údajů. Více informací
Chystáte se prodat nemovitost?
Pomůžeme Vám!

Inzerát si prohlédlo 0 lidí

Prodejce

Karla Kylíšková

Karla Kylíšková

Hlídací pes

Chcete dostávat emailem podobné nabídky prodeje bytů 3+1 v Teplicích?

Podobné nemovitosti