Pronájem kanceláře, Opava - Město, Dolní náměstí, 94 m2

Dolní náměstí, Opava, Město

10 000 Kč /za měsíc Získejte výhodnou HYPOTÉKU
Doporučené firmy v Opavě

Informace k nemovitosti

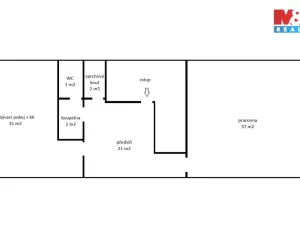
Pronájem kancelářského prostoru 94 m² Opava, Dolní náměstí

Nabízíme k pronájmu prostor o velikosti 94 m² v historickém centru Opavy, přímo na Dolním náměstí. Nachází se ve 4. NP udržované kulturní památky a je vhodný jako kancelář nebo zázemí pro ubytování zaměstnanců či zahraničních pracovníků.

Dvě prostorné místnosti umožňují flexibilní využití – kanceláře, firemní bydlení i kombinaci obojího. V domě převažují kanceláře, proto je zde klidné prostředí ideální pro práci i bydlení.

Veškerá občanská vybavenost v pěší dostupnosti.

Nájem: 10.000 Kč/měsíc
Služby a energie: 7.000 Kč/měsíc
Celkem: 17.000 Kč/měsíc
Kauce: 34.000 Kč
Odměna RK: 10.000 Kč

Prostor ve velmi dobrém stavu, k dispozici ihned.
Ideální řešení pro firmy hledající dostupné a klidné zázemí v centru města.

Parametry nemovitosti

Cena
10 000 Kč /za měsíc
Aktualizováno
23. 3. 2026
Adresa
Dolní náměstí, Opava, Město
ID
937196
Stav objektu
Velmi dobrý
Vybaveno
Ne
Lokalita objektu
Centrum obce
Vlastnictví
Osobní
Užitná plocha
94 m2
Balkon

Kontaktovat makléře

Realitní kancelář

Logo M&M reality

M&M reality

ulice Krakovská 583/9, Praha

Chystáte se prodat nemovitost?
Pomůžeme Vám!

Máte zájem o tuto nemovistost?

Tímto, v souladu s nařízením Evropského parlamentu a Rady (EU) 2016/679, v platném znění, prohlašuji, že mi je alespoň 16 let a uděluji tak svůj souhlas se zpracováním zadaných údajů (jméno, telefon, e-mail, ip adresa) společnosti B3 Technology, s.r.o., IČ: 07330600, se sídlem Novostavby 126/23, 435 11 Lom (správce dat), za účelem předání dotazu z tohoto formuláře Vámi vybranému inzerentovi a zpětného kontaktování mé osoby. Osobní údaje bude správce zpracovávat manuálně i automaticky přímo prostřednictvím svých zaměstnanců. Informace předané tímto formulářem budou uloženy v databázi správce maximálně po dobu 10 let. Odvolání souhlasu s uložením a zpracováním poskytnutých dat lze e-mailem na info@bydlisnami.cz. V případě podezření na neoprávněné použití Vámi poskytnutých údajů máte právo předat podnět k šetření Úřadu pro ochranu osobních údajů. Více informací
Chystáte se prodat nemovitost?
Pomůžeme Vám!

Inzerát si prohlédlo 0 lidí

Prodejce

Bc. Daniel Novák

Bc. Daniel Novák

Hlídací pes

Chcete dostávat emailem podobné nabídky pronájmu kanceláří v Opavě?

Podobné nemovitosti