Pronájem bytu 3+kk, Praha - Dejvice, Vostrovská, 104 m2

Vostrovská, Praha 6 - Dejvice

39 900 Kč /za měsíc Získejte výhodnou HYPOTÉKU
Doporučené firmy v Praze 6

Stěhovací služby

Výkup a prodej starého nábytku

Informace k bytu

Pronájem bytu 3+kk, Vostrovská

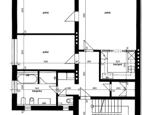
K dlouhodobému pronájmu je k dispozici prostorný byt 3+kk o celkové ploše 104,5 m² s vlastní garáží o velikosti 18 m², sklepní kójí o velikosti 6,5 m² a možností využívání dlážděné terasy k posezení o velikosti 12 m². Byt se nachází v jedné z nejvyhledávanějších pražských rezidenčních lokalit, v klidné vilové čtvrti Hanspaulka, v ulici Vostrovská, Praha 6 – Dejvice.

Byt je situován ve 2. nadzemním podlaží cihlového a zatepleného domu, ve kterém se nachází pouze 4 bytové jednotky, což zajišťuje vysokou míru soukromí a klidného bydlení. V roce 2023 prošel kompletní rekonstrukcí a obytné místnosti jsou klimatizované, takže poskytují maximální komfort i během letních měsíců.

Kuchyně je kompletně vybavená, včetně vestavěných spotřebičů a konvektomatu. Součástí bytu je také dostatek parkovacího i úložného prostoru, který zajišťuje vlastní garáž a sklepní kóje.

Hanspaulka patří dlouhodobě mezi nejprestižnější a nejžádanější adresy v Praze. Lokalita nabízí výjimečné spojení rezidenčního klidu, zeleně a soukromí s rychlou dostupností do centra města. V okolí se nachází kompletní občanská vybavenost, kvalitní školy, restaurace, kavárny i zastávky MHD včetně metra A – Bořislavka.

Dostupný k nastěhování od 15. 6. 2026.

Nájemné: 39.900 Kč/měsíc
Poplatky: 1.500 Kč/měsíc
Zálohy na energie: budou přepsány na nájemce
Vratná kauce: 2 měsíční nájmy
Provize RK: 1,5 měsíčního nájmu

Pro více informací nebo sjednání prohlídky mě neváhejte kontaktovat.

Parametry bytu

Cena
39 900 Kč /za měsíc
Aktualizováno
24. 3. 2026
Adresa
Vostrovská, Praha 6 - Dejvice
ID
J002612
Stavba
Cihlová
Vlastnictví
Osobní
Užitná plocha
104 m2
Třída energetické náročnosti
G - Mimořádně nehospodárná

Kontaktovat makléře

Máte zájem o tento byt?

Tímto, v souladu s nařízením Evropského parlamentu a Rady (EU) 2016/679, v platném znění, prohlašuji, že mi je alespoň 16 let a uděluji tak svůj souhlas se zpracováním zadaných údajů (jméno, telefon, e-mail, ip adresa) společnosti B3 Technology, s.r.o., IČ: 07330600, se sídlem Novostavby 126/23, 435 11 Lom (správce dat), za účelem předání dotazu z tohoto formuláře Vámi vybranému inzerentovi a zpětného kontaktování mé osoby. Osobní údaje bude správce zpracovávat manuálně i automaticky přímo prostřednictvím svých zaměstnanců. Informace předané tímto formulářem budou uloženy v databázi správce maximálně po dobu 10 let. Odvolání souhlasu s uložením a zpracováním poskytnutých dat lze e-mailem na info@bydlisnami.cz. V případě podezření na neoprávněné použití Vámi poskytnutých údajů máte právo předat podnět k šetření Úřadu pro ochranu osobních údajů. Více informací
Chystáte se prodat nemovitost?
Pomůžeme Vám!

Inzerát si prohlédlo 1 lidí

Prodejce

PF real estate s.r.o.

PF real estate s.r.o.

Hlídací pes

Chcete dostávat emailem podobné nabídky pronájmu bytů 3+kk v Praze 6?

Podobné nemovitosti