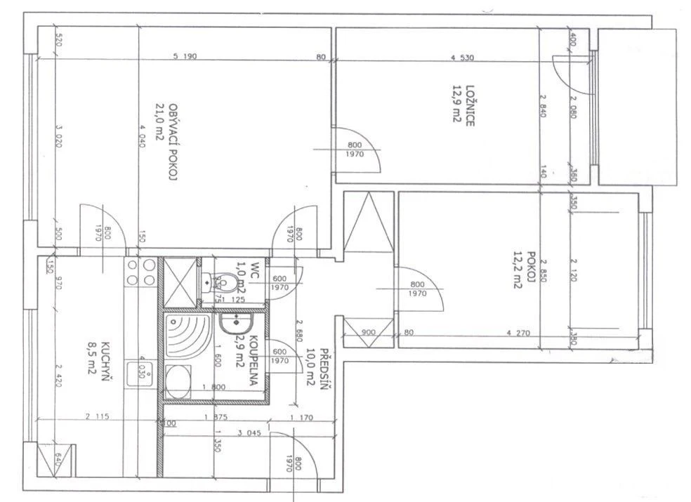
Prodej bytu 3+1, Praha - Hlubočepy, Lohniského, 69 m2

Lohniského, Praha 5

8 950 000 Kč /za nemovitost HYPOTÉKA od 40 001 Kč /za měsíc

(Cena zahrnuje kompletní realitní, právní a finanční služby.)

Doporučené firmy v Praze 5

Stěhovací služby

Výkup a prodej starého nábytku

Informace k bytu

Nabízíme k prodeji vybavený byt 3+1 po rekonstrukci v žádané lokalitě Prahy 5 Hlubočepy, ulice Lohniského. Byt má celkovou plochu téměř 77 m2, z ní je potom po 4 metrech lodžie a sklepní kóje. Byt prošel dvěma kvalitními rekonstrukcemi (dokončeno 2015), při kterých byly použity moderní materiály a technologie (přestavba jádra na zděné, kuchyně, podlahy, rozvody elektřiny/ethernetu, obklady, vestavené skříně). Zasklená lodžie je orientována na východ.
Interiér bytu je navržen s důrazem na funkčnost a estetiku. Disponuje plně vybavenou kuchyní, kde naleznete veškeré potřebné spotřebiče. Obývací pokoj je prostorný a světlý díky velkým oknům, které zajišťují dostatečný přísun denního světla s výhledem na západ. Byt je kvalitními vestavnými skříněmi na míru.
Lokalita bytu je ideální pro rodiny s dětmi, seniory, ale i pro mladé profesionály. V okolí se nachází kompletní občanská vybavenost školy, školky, zdravotnická zařízení, obchody a služby. Dopravní dostupnost je vynikající, v blízkosti domu je zastávka autobusu, a dostupnost do centra města je zajištěna i dalšími prostředky veřejné dopravy.
Možnost financování hypotečním úvěrem, který pro Vás rádi vyřídíme. Tento byt představuje vynikající příležitost pro ty, kteří hledají komfortní bydlení v klidné části Prahy s výbornou dostupností do centra.
Neváhejte nás kontaktovat pro více informací nebo pro sjednání prohlídky tohoto atraktivního bytu. Těšíme se na vaši návštěvu a věříme, že byt u Lohniského ulice bude vaším novým domovem, kde si užijete mnoho šťastných let.

Parametry bytu

Cena
8 950 000 Kč /za nemovitost Spočítat hypotéku
Poznámka k ceně
Cena zahrnuje kompletní realitní, právní a finanční služby.
Aktualizováno
24. 3. 2026
Adresa
Lohniského, Praha 5
ID
976764
Stavba
Panelová
Stav objektu
Po rekonstrukci
Patro
4. z 8
Vybaveno
Ano
Vlastnictví
Osobní
Užitná plocha
69 m2
Podlahová plocha
77 m2
Třída energetické náročnosti
G - Mimořádně nehospodárná
Elektřina
230V
Plyn
Plynovod
Topení
Ústřední dálkové
Telekomunikace
Internet
Voda
Vodovod
Sklep
Lodžie
Výtah

Kontaktovat makléře

Realitní kancelář

Logo EVROPA realitní kancelář

EVROPA realitní kancelář

Václavské náměstí 806/62, Praha

Chystáte se prodat nemovitost?
Pomůžeme Vám!

Máte zájem o tento byt?

Tímto, v souladu s nařízením Evropského parlamentu a Rady (EU) 2016/679, v platném znění, prohlašuji, že mi je alespoň 16 let a uděluji tak svůj souhlas se zpracováním zadaných údajů (jméno, telefon, e-mail, ip adresa) společnosti B3 Technology, s.r.o., IČ: 07330600, se sídlem Novostavby 126/23, 435 11 Lom (správce dat), za účelem předání dotazu z tohoto formuláře Vámi vybranému inzerentovi a zpětného kontaktování mé osoby. Osobní údaje bude správce zpracovávat manuálně i automaticky přímo prostřednictvím svých zaměstnanců. Informace předané tímto formulářem budou uloženy v databázi správce maximálně po dobu 10 let. Odvolání souhlasu s uložením a zpracováním poskytnutých dat lze e-mailem na info@bydlisnami.cz. V případě podezření na neoprávněné použití Vámi poskytnutých údajů máte právo předat podnět k šetření Úřadu pro ochranu osobních údajů. Více informací
Chystáte se prodat nemovitost?
Pomůžeme Vám!

Inzerát si prohlédlo 0 lidí

Prodejce

Tomáš Tvoroch

Tomáš Tvoroch

Hlídací pes

Chcete dostávat emailem podobné nabídky prodeje bytů 3+1 v Praze 5?

Podobné nemovitosti