Prodej bytu 3+1, Praha - Žižkov, Biskupcova, 88 m2

Biskupcova, Praha 3

12 990 000 Kč /za nemovitost HYPOTÉKA od 58 057 Kč /za měsíc
Doporučené firmy v Praze 3

Stěhovací služby

Výkup a prodej starého nábytku

Pojištění a finance

Informace k bytu

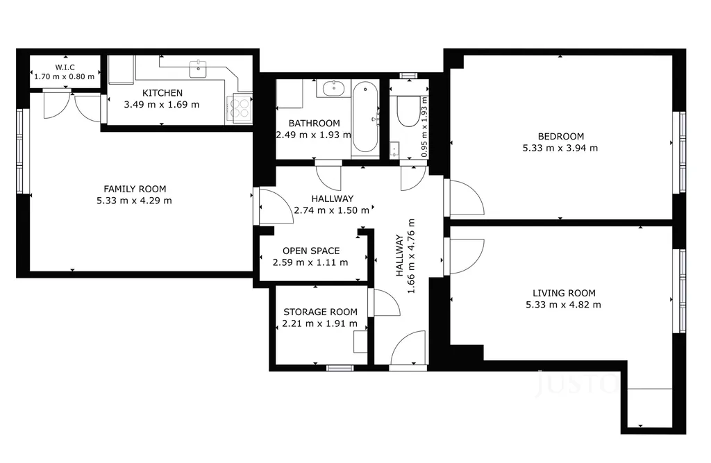
Ve výhradním zastoupení majitele Vám nabízím zprostředkování prodeje velmi příjemného světlého bytu po kompletní rekonstrukci. Byt má dispozici 3+1, plochu 88 m² a nachází se v posledním 5. patře cihlové budovy bez výtahu ve vyhledávané městské části Praha 3 – Žižkov v ulici Biskupcova.

Klíčové informace k nemovitosti:
- plocha bytu 88 m², šatna v bytě
- dispozice 3+1 s velmi praktickou dispozicí
- byt je po celkové rekonstrukci
- jednotka se nachází v posledním 5. patře cihlové budovy bez výtahu
- společný vnitroblok k užívání
- jižní orientace dvou pokojů do rozlehlého vnitrobloku se vzrostlou zelení
- severně orientovaná obývací část s kuchyní směrem do ulice

Klíčové informace k lokalitě:
- skvělá občanská vybavenost a dopravní dostupnost
- mateřská i základní škola,
- sportovní a dětská hřiště, místní kavárny, restaurace, kino Aero a Lidl
- parky Parukářka a Židovské pece, které jsou vhodné k relaxaci či sportování
- tramvajová zastávka Biskupcova a Vozovna Žižkov jsou vzdáleny pouhých 200 m
- návaznost na stanici metra Jana Želivského a Flora a centrum města

Důležité informace k prodeji:
- zájemce nehradí provizi RK!
- majitelka si vyhrazuje právo výběru nejvýhodnější nabídky v případě více zájemců
- možnost zprostředkování atraktivního financování

Průkaz energetické náročnosti není k dispozici, proto je uváděn stupeň "G".

Pokud Vás tato nemovitost zaujala, neváhejte mě kontaktovat, rád Vám tento byt osobně představím.

Parametry bytu

Cena
12 990 000 Kč /za nemovitost Spočítat hypotéku
Aktualizováno
31. 3. 2026
Adresa
Biskupcova, Praha 3
ID
J12500
Stavba
Cihlová
Stav objektu
Po rekonstrukci
Patro
6. z 6
Vybaveno
Částečně
Typ objektu
Patrový
Lokalita objektu
Klidná část obce
Vlastnictví
Osobní
Užitná plocha
88 m2
Podlahová plocha
88 m2
Třída energetické náročnosti
G - Mimořádně nehospodárná
Odpad
Veřejná kanalizace
Topení
Ústřední elektrické
Topné těleso
Radiátory
Zdroj teplé vody
Bojler - elektro
Výtah
Bezbarierový přístup

Kontaktovat makléře

Realitní kancelář

Logo JUSTO Česká republika

JUSTO Česká republika

Korunní 2569/108, Vinohrady, Praha

Chystáte se prodat nemovitost?
Pomůžeme Vám!

Máte zájem o tento byt?

Tímto, v souladu s nařízením Evropského parlamentu a Rady (EU) 2016/679, v platném znění, prohlašuji, že mi je alespoň 16 let a uděluji tak svůj souhlas se zpracováním zadaných údajů (jméno, telefon, e-mail, ip adresa) společnosti B3 Technology, s.r.o., IČ: 07330600, se sídlem Novostavby 126/23, 435 11 Lom (správce dat), za účelem předání dotazu z tohoto formuláře Vámi vybranému inzerentovi a zpětného kontaktování mé osoby. Osobní údaje bude správce zpracovávat manuálně i automaticky přímo prostřednictvím svých zaměstnanců. Informace předané tímto formulářem budou uloženy v databázi správce maximálně po dobu 10 let. Odvolání souhlasu s uložením a zpracováním poskytnutých dat lze e-mailem na info@bydlisnami.cz. V případě podezření na neoprávněné použití Vámi poskytnutých údajů máte právo předat podnět k šetření Úřadu pro ochranu osobních údajů. Více informací
Chystáte se prodat nemovitost?
Pomůžeme Vám!
Theleadway banner

Inzerát si prohlédlo 6 lidí

Prodejce

Ing. Milan Šámal

Ing. Milan Šámal

Hlídací pes

Chcete dostávat emailem podobné nabídky prodeje bytů 3+1 v Praze 3?

Podobné nemovitosti