Prodej rodinného domu, Kolín, Petružálkova, 172 m2 (ID: 2585014)

Petružálkova, Kolín IV

13 590 000 Kč /za nemovitost HYPOTÉKA od 60 739 Kč /za měsíc

(Cena je včetně provize a právního servisu. Cena je ve standardním provedením domu.)

Doporučené firmy v Kolíně

Informace k domu

Nabízíme vám nové moderní a klidné bydlení pro svou rodinu, a přitom bez opuštění výhod městského života. Máme pro vás tuto příležitost.
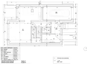
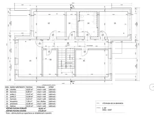
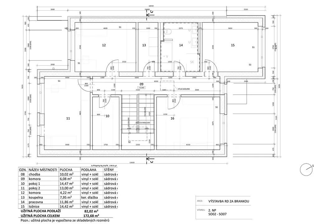
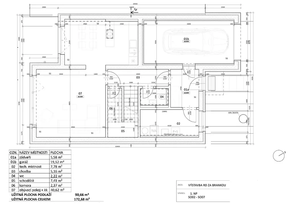
Na prodej nabízíme novostavbu moderního rodinného domu 5+1 o užitné ploše 172 m², který se nachází v atraktivním projektu „Za Brankou“ v klidné části města Kolín. Dům stojí na vlastním pozemku o výměře 258 m².
Dokončení stavby domu je naplánováno do konce roku 2026. Následně bude probíhat dokončení interiéru podle vašich představ. Sami si vyberete styl, materiály i barevné ladění, které vám bude nejvíce vyhovovat. V ceně stavby jsou standardy, které vám na vyžádání zašleme, nebo si můžete zvolit svou náročnost na použité materiály.
Dispozičně je dům řešen velmi prakticky a prostorně. Nabízí komfortní dispozici 5+1, která je ideální pro rodinu s dětmi. V přízemí se nachází zádveří, technická místnost, toaleta, garáž, kuchyň a obývací pokoj s přímým vstupem na zahradu za domem. V patře najdete čtyři samostatné pokoje, dvě komory a koupelnu.
Projekt „Za Brankou“ se pyšní soukromím a bezpečím, které zajišťuje vlastní příjezdová cesta – díky tomu získáte klid, pohodu a minimální provoz v okolí.
Lokalita nabízí perfektní kombinaci klidu a dostupnosti – dům se nachází jen kousek od centra Kolína, kousek od nákupního střediska i od MŠ i ZŠ. Vlakové nádraží je 5 min. chůzí. Máte veškerou občanskou vybavenost doslova na dosah ruky (školy, školky, obchody, sportoviště, MHD, vlakové spojení do Prahy).
Na domě je kladen důraz na praktičnost a šetrnost. Vytápění zajišťuje tepelné čerpadlo vzduch-voda do podlahového vytápění.
Tento dům představuje jedinečnou příležitost pořídit si nové bydlení v soukromí, na klidném místě a přesto ve městě.
V nabídce jsou pouze dva domy.
V případě dotazu mě kdykoliv kontaktujte, rád vám sdělím podrobnosti a možnosti.

Parametry domu

Cena
13 590 000 Kč /za nemovitost Spočítat hypotéku
Poznámka k ceně
Cena je včetně provize a právního servisu. Cena je ve standardním provedením domu.
Aktualizováno
25. 3. 2026
Adresa
Petružálkova, Kolín IV
ID
RD Za Brankou
Stavba
Cihlová
Stav objektu
Novostavba
Druh objektu
Řadový
Lokalita objektu
Klidná část obce
Užitná plocha
172 m2
Zastavěná plocha
100 m2
Plocha pozemku
258 m2
Plocha zahrady
158 m2
Třída energetické náročnosti
B - Velmi úsporná
Elektřina
230V
Odpad
Veřejná kanalizace
Komunikace
Dlážděná
Doprava
Vlak, Silnice, MHD, Autobus
Voda
Vodovod
Topné těleso
Podlahové vytápění
Zdroj topení
Tepelné čerpadlo
Zdroj teplé vody
Tepelné čerpadlo
Garáž

Kontaktovat makléře

Realitní kancelář

ATOM REALITY

Politických vězňů 98, Kolín

Chystáte se prodat nemovitost?
Pomůžeme Vám!

Máte zájem o tento dům?

Tímto, v souladu s nařízením Evropského parlamentu a Rady (EU) 2016/679, v platném znění, prohlašuji, že mi je alespoň 16 let a uděluji tak svůj souhlas se zpracováním zadaných údajů (jméno, telefon, e-mail, ip adresa) společnosti B3 Technology, s.r.o., IČ: 07330600, se sídlem Novostavby 126/23, 435 11 Lom (správce dat), za účelem předání dotazu z tohoto formuláře Vámi vybranému inzerentovi a zpětného kontaktování mé osoby. Osobní údaje bude správce zpracovávat manuálně i automaticky přímo prostřednictvím svých zaměstnanců. Informace předané tímto formulářem budou uloženy v databázi správce maximálně po dobu 10 let. Odvolání souhlasu s uložením a zpracováním poskytnutých dat lze e-mailem na info@bydlisnami.cz. V případě podezření na neoprávněné použití Vámi poskytnutých údajů máte právo předat podnět k šetření Úřadu pro ochranu osobních údajů. Více informací
Chystáte se prodat nemovitost?
Pomůžeme Vám!

Inzerát si prohlédlo 1 lidí

Prodejce

Ing. Tomáš Chrastil

Ing. Tomáš Chrastil

Hlídací pes

Chcete dostávat emailem podobné nabídky prodeje rodinných domů v Kolíně?

Podobné nemovitosti