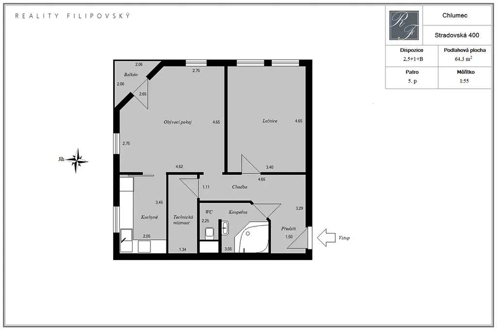
Prodej bytu 2+1, Chlumec, Stradovská, 64 m2

Stradovská, Chlumec

3 990 000 Kč /za nemovitost HYPOTÉKA od 17 833 Kč /za měsíc

(Včetně provize a právních služeb)

Doporučené firmy v Chlumci

Okna a dveře

Rekonstrukce

Informace k bytu

Dovoluji si Vám nabídnout krásný zrekonstruovaný byt 2,5+1+balkón, 64,29 m2, v pátém patře novostavby z roku 2003 v ul. Stradovská v Chlumci u Ústí nad Labem.

Byt se nachází na fantastickém místě prakticky v přírodě, a navíc disponuje doslova dech beroucím panoramatickým výhledem. To mu propůjčuje velmi pozitivní atmosféru a pocit vzdušnosti celého místa, který lze jen těžko něčím nahradit.

Jednotka je aktuálně v družstevním vlastnictví s možným výhledem budoucího převodu do osobního vlastnictví. K této věci Vám podám podrobnější informace telefonicky, nebo při prohlídce.

Velmi se mi líbí logické a nekomplikované uspořádání bytu s prostornou ložnicí, ve které zbylo místo i na pracovní kout, s obývacím pokojem s jídelním koutem a vstupem na balkón volně propojeným s kuchyní, kterou je možné uzavřít posuvnými dveřmi. Skvělá je technická místnost s pračkou, sušičkou a úložnými prostory a ani v koupelně rozhodně nebudete trpět stísněným pocitem. Vstupní chodba je pak vybavena dalšími vestavnými úložnými prostory a zvládne i příchod početnější návštěvy. K bytu náleží velkorysá sklepní kóje s výměrou 5,07m2.

Dům jako takový je v perfektním technickém stavu.
Chlumec je žádanou lokalitou, která je charakteristická svou klidnou atmosférou bez nežádoucích sociálních jevů s výbornou dostupností do Ústí nad Labem, Teplic a také na dálnici D8 s nájezdem Praha a Drážďany vzdáleným 3 minuty jízdy autem. V Praze jste za 45 minut a v Drážďanech za slabých 30 minut. Stanice MHD je vzdálena cca 4 minuty chůze. Obec disponuje veškerou občanskou vybaveností, včetně kvalitní základní školy.

Jedná se o jedinečnou příležitost, jak získat bydlení v bezprostředním kontaktu s přírodou, s výhledem, který se nikdy neomrzí a současně na dosah veškeré občanské vybavenosti.

Parametry bytu

Cena
3 990 000 Kč /za nemovitost Spočítat hypotéku
Poznámka k ceně
Včetně provize a právních služeb
Aktualizováno
27. 3. 2026
Adresa
Stradovská, Chlumec
ID
644
Stavba
Cihlová
Stav objektu
Velmi dobrý
Patro
6.
Vlastnictví
Družstevní
Užitná plocha
64 m2
Třída energetické náročnosti
D - Méně úsporná
Elektřina
230V
Odpad
Veřejná kanalizace
Voda
Vodovod
Zdroj topení
Ústřední dálkové
Zdroj teplé vody
Centrální dálkový ohřev
Balkon
Sklep
Výtah
Bezbarierový přístup
Převod do OV

Kontaktovat makléře

Máte zájem o tento byt?

Tímto, v souladu s nařízením Evropského parlamentu a Rady (EU) 2016/679, v platném znění, prohlašuji, že mi je alespoň 16 let a uděluji tak svůj souhlas se zpracováním zadaných údajů (jméno, telefon, e-mail, ip adresa) společnosti B3 Technology, s.r.o., IČ: 07330600, se sídlem Novostavby 126/23, 435 11 Lom (správce dat), za účelem předání dotazu z tohoto formuláře Vámi vybranému inzerentovi a zpětného kontaktování mé osoby. Osobní údaje bude správce zpracovávat manuálně i automaticky přímo prostřednictvím svých zaměstnanců. Informace předané tímto formulářem budou uloženy v databázi správce maximálně po dobu 10 let. Odvolání souhlasu s uložením a zpracováním poskytnutých dat lze e-mailem na info@bydlisnami.cz. V případě podezření na neoprávněné použití Vámi poskytnutých údajů máte právo předat podnět k šetření Úřadu pro ochranu osobních údajů. Více informací
Chystáte se prodat nemovitost?
Pomůžeme Vám!

Inzerát si prohlédlo 0 lidí

Prodejce

Marek Filipovský - certifikovaný obchodník s nemovitostmi

Marek Filipovský - certifikovaný obchodník s nemovitostmi

Hlídací pes

Chcete dostávat emailem podobné nabídky prodeje bytů 2+1 v Chlumci (okr. Ústí nad Labem)?

Podobné nemovitosti