Prodej pozemku pro bydlení, Trutnov - Dolní Předměstí, Nad Poříčskou, 3982 m2

Nad Poříčskou, Trutnov, Dolní Předměstí

13 538 800 Kč /za nemovitost HYPOTÉKA od 60 510 Kč /za měsíc
Doporučené firmy v Trutnově

Informace k pozemku

MENŠÍ DEVELOPERSKÝ PROJEKT – 3 DOMY TRUTNOV
Hledáte projekt, kde můžete začít stavět bez zdržení a zbytečných investic do přípravy?
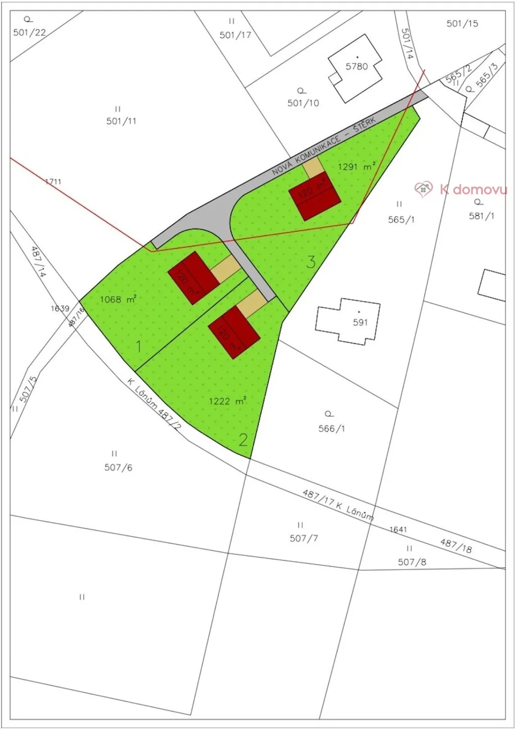
V Trutnově, v ulici Nad Poříčskou, nabízíme soubor 4 stavebních pozemků parc.č.563/1, 563/2, 563/3, 563/4, které jsou připraveny pro realizaci výstavby 3 rodinných domů.
HLAVNÍ BENEFIT
možnost okamžité výstavby až 3 rodinných domů
CO JE JIŽ PŘIPRAVENO
vybudovaná příjezdová komunikace
zajištěný přístup k jednotlivým parcelám
elektřina a voda u hranice pozemků
připravená a zhutněná plocha pro základové desky
projekt vám šetří čas i náklady na přípravu
PARAMETRY
celková výměra: cca 3 982 m²
koeficient zastavěnosti: až 40 %
možnost realizace až 3 samostatných rodinných domů
kanalizace: nutnost řešit vlastní ČOV
LOKALITA
výhled na Krkonoše
okolní nová rodinná výstavba
nádherná příroda
klidná část Trutnova
lyžování v Peci pod Sněžkou do 30 minut
PRO KOHO JE PROJEKT IDEÁLNÍ
menší developer
stavební firma realizující vlastní projekty
investor hledající rychlý obrat
neřešíte přípravu
začínáte stavět
Podobně připravené projekty v této lokalitě jsou výjimečné. Ráda vám sdělím více informací a představím možnosti realizace.
Uvedené výměry jsou orientační. V případě více zájemců bude nemovitost prodána nejlepší nabídce a majitel si vyhrazuje právo vybrat kupujícího na základě jim zvolených kritérií. Veškeré zveřejněné údaje obsažené v tomto inzerátu mají pouze informativní charakter a nejsou nabídkou ve smyslu § 1731 nebo § 1732 občanského zákoníku, ani se nejedná o veřejný příslib dle § 1733 občanského zákoníku.

Parametry pozemku

Cena
13 538 800 Kč /za nemovitost Spočítat hypotéku
Aktualizováno
27. 3. 2026
Adresa
Nad Poříčskou, Trutnov, Dolní Předměstí
ID
2026-159
Stav objektu
Velmi dobrý
Lokalita objektu
Klidná část obce
Plocha pozemku
3982 m2
Komunikace
Zpevněná
Doprava
Silnice
Bezbarierový přístup

Kontaktovat makléře

Realitní kancelář

K domovu

Varšavská 715/36, Praha

Chystáte se prodat nemovitost?
Pomůžeme Vám!

Máte zájem o tento pozemek?

Tímto, v souladu s nařízením Evropského parlamentu a Rady (EU) 2016/679, v platném znění, prohlašuji, že mi je alespoň 16 let a uděluji tak svůj souhlas se zpracováním zadaných údajů (jméno, telefon, e-mail, ip adresa) společnosti B3 Technology, s.r.o., IČ: 07330600, se sídlem Novostavby 126/23, 435 11 Lom (správce dat), za účelem předání dotazu z tohoto formuláře Vámi vybranému inzerentovi a zpětného kontaktování mé osoby. Osobní údaje bude správce zpracovávat manuálně i automaticky přímo prostřednictvím svých zaměstnanců. Informace předané tímto formulářem budou uloženy v databázi správce maximálně po dobu 10 let. Odvolání souhlasu s uložením a zpracováním poskytnutých dat lze e-mailem na info@bydlisnami.cz. V případě podezření na neoprávněné použití Vámi poskytnutých údajů máte právo předat podnět k šetření Úřadu pro ochranu osobních údajů. Více informací
Chystáte se prodat nemovitost?
Pomůžeme Vám!

Inzerát si prohlédlo 0 lidí

Prodejce

Jana Musilová

Jana Musilová

Hlídací pes

Chcete dostávat emailem podobné nabídky prodeje pozemků pro bydlení v Trutnově?

Podobné nemovitosti