Soccer reality

Pronájem bytu 2+1, Praha - Hloubětín, Zelenečská, 52 m2

Zelenečská, Praha, Hloubětín

18 500 Kč /za měsíc Získejte výhodnou HYPOTÉKU

(3.670 Kč zálohy na služby (včetně zálohy na plyn a elektřinu))

Doporučené firmy v Praze 9

Stěhovací služby

Výkup a prodej starého nábytku

Informace k bytu

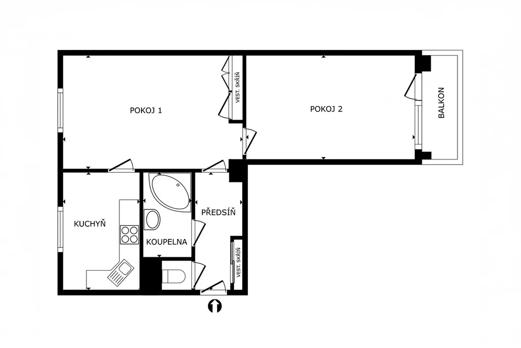
Světlý a prakticky řešený byt k dlouhodobému pronájmu o dispozici 2+1 s vlastním balkonem, v klidné a vyhledávané lokalitě Praha 9 - Hloubětín.

Byt se nachází ve 2. nadzemním podlaží udržovaného domu. Dispozice zahrnuje obývací pokoj, ložnici, kuchyň, koupelnu, samostatné WC a předsíň. K využítí je připraven také sklepní prostor v suterénu domu.

Nabídka pronájmu bytu je určena k obvyklému účelu bydlení, ideální pro jednu osobu, maximálně dvě dospělé osoby - pár, pouze dlouhodobý pronájem, nekuřák v bytě i celém domě. Pronajímatel si vyhrazuje právo výběru vhodného nájemce. Preferujeme nekuřáky a zájemce bez domácích mazlíčků (s ohledem na parketové podlahy).

Kuchyň je vybavena kuchyňskou linkou se spotřebiči elektrická trouba, plynová varná deska, digestoř, myčka nádobí a lednice s mrazákem. Koupelna disponuje prostornou rohovou vanou, která poskytuje dostatek komfortu pro relaxaci. Obývací pokoj a ložnice mají zachovalé parketové podlahy, ostatní části bytu jsou řešeny praktickou dlažbou.

Lokalita nabízí výbornou dopravní dostupnost v blízkosti se nachází metro B Hloubětín, tramvajové i autobusové spoje. V okolí je veškerá občanská vybavenost včetně obchodů, restaurací a zeleně pro volnočasové aktivity.

Nájem 18.500 Kč + 3.670 Kč zálohy na služby (včetně zálohy na plyn a elektřinu). Celkem měsíční náklady při jedné osobě 22.170 Kč + 700 Kč další osoba.

Byt je připraven k okamžitému nastěhování.

Parametry bytu

Cena
18 500 Kč /za měsíc
Poznámka k ceně
3.670 Kč zálohy na služby (včetně zálohy na plyn a elektřinu)
Aktualizováno
30. 3. 2026
Adresa
Zelenečská, Praha, Hloubětín
ID
0626P
Stavba
Cihlová
Stav objektu
Velmi dobrý
Patro
2. z 4
Vybaveno
Částečně
Vlastnictví
Osobní
Užitná plocha
52 m2
Podlahová plocha
52 m2
Třída energetické náročnosti
C - Úsporná
Topení
Ústřední dálkové
Doprava
MHD, Autobus
Topné těleso
Radiátory
Balkon
Sklep
Bezbarierový přístup

Kontaktovat makléře

Realitní kancelář

Bohemia reality

Anny Letenské 34/7, Praha 2

Chystáte se prodat nemovitost?
Pomůžeme Vám!

Máte zájem o tento byt?

Tímto, v souladu s nařízením Evropského parlamentu a Rady (EU) 2016/679, v platném znění, prohlašuji, že mi je alespoň 16 let a uděluji tak svůj souhlas se zpracováním zadaných údajů (jméno, telefon, e-mail, ip adresa) společnosti B3 Technology, s.r.o., IČ: 07330600, se sídlem Novostavby 126/23, 435 11 Lom (správce dat), za účelem předání dotazu z tohoto formuláře Vámi vybranému inzerentovi a zpětného kontaktování mé osoby. Osobní údaje bude správce zpracovávat manuálně i automaticky přímo prostřednictvím svých zaměstnanců. Informace předané tímto formulářem budou uloženy v databázi správce maximálně po dobu 10 let. Odvolání souhlasu s uložením a zpracováním poskytnutých dat lze e-mailem na info@bydlisnami.cz. V případě podezření na neoprávněné použití Vámi poskytnutých údajů máte právo předat podnět k šetření Úřadu pro ochranu osobních údajů. Více informací
Chystáte se prodat nemovitost?
Pomůžeme Vám!

Inzerát si prohlédlo 0 lidí

Prodejce

Smetana Petr

Smetana Petr

Hlídací pes

Chcete dostávat emailem podobné nabídky pronájmu bytů 2+1 v Praze 9?

Podobné nemovitosti