Prodej obchodního prostoru, Praha - Libeň, Sokolovská, 144 m2 (ID: 2591224)

Sokolovská, Praha 8

Cena na vyžádání /za nemovitost Získejte výhodnou HYPOTÉKU

(info o ceně a prohlídkách u RK)

Doporučené firmy v Praze 8

Stěhovací služby

Výkup a prodej starého nábytku

Informace k nemovitosti

Prodej obchod a služby, Praha, ul. Sokolovská

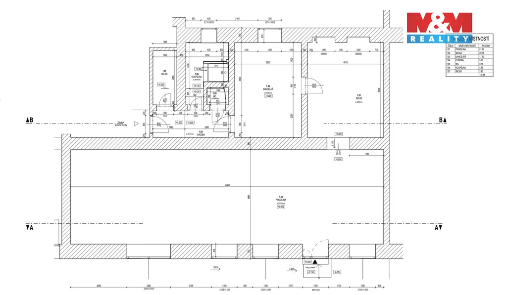
Nabízíme k prodeji soubor nebytových a obchodních prostor o celkové užitné ploše 144 m², situovaných v přízemí cihlové budovy. Prostory se nachází na frekventované křižovatce kousek od metra Palmovka a zastávek tramvají a autobusů, což zajišťuje výbornou dopravní dostupnost pro klienty.
K prostorům náleží dvě parkovací stání ve vnitrobloku, což představuje v této části Prahy výraznou konkurenční výhodu pro personál i klienty.
Tyto prostory jsou také ideální pro zřízení lékařské ordinace nebo soukromé kliniky, současně je vydáno stavební povolení pro zřízení neurologické či jiné ordinace bez zákroků.
Prostor disponuje dvěma vchody: jeden je z ulice a druhý je ze zadní části s možností vybudování bezbariérového přístupu, což je klíčové zejména pro zdravotnická zařízení.
Nemovitost je po rekonstrukci a díky své dispozici umožňuje úpravy dle potřeb nového majitele.
Nezmeškejte tuto příležitost – domluvte si prohlídku ještě dnes.

Parametry nemovitosti

Cena
Cena na vyžádání Spočítat hypotéku
Poznámka k ceně
info o ceně a prohlídkách u RK
Aktualizováno
31. 3. 2026
Adresa
Sokolovská, Praha 8
ID
928681
Stavba
Cihlová
Stav objektu
Dobrý
Vybaveno
Ne
Lokalita objektu
Rušná část obce
Vlastnictví
Osobní
Užitná plocha
144 m2

Kontaktovat makléře

Máte zájem o tuto nemovistost?

Tímto, v souladu s nařízením Evropského parlamentu a Rady (EU) 2016/679, v platném znění, prohlašuji, že mi je alespoň 16 let a uděluji tak svůj souhlas se zpracováním zadaných údajů (jméno, telefon, e-mail, ip adresa) společnosti B3 Technology, s.r.o., IČ: 07330600, se sídlem Novostavby 126/23, 435 11 Lom (správce dat), za účelem předání dotazu z tohoto formuláře Vámi vybranému inzerentovi a zpětného kontaktování mé osoby. Osobní údaje bude správce zpracovávat manuálně i automaticky přímo prostřednictvím svých zaměstnanců. Informace předané tímto formulářem budou uloženy v databázi správce maximálně po dobu 10 let. Odvolání souhlasu s uložením a zpracováním poskytnutých dat lze e-mailem na info@bydlisnami.cz. V případě podezření na neoprávněné použití Vámi poskytnutých údajů máte právo předat podnět k šetření Úřadu pro ochranu osobních údajů. Více informací
Chystáte se prodat nemovitost?
Pomůžeme Vám!

Inzerát si prohlédlo 1 lidí

Prodejce

Ing. Katariina Kofanova

Ing. Katariina Kofanova

Hlídací pes

Chcete dostávat emailem podobné nabídky prodeje obchodních prostor v Praze 8?

Podobné nemovitosti