Pronájem bytu 2+1, Liberec - Liberec X-Františkov, Františkovská, 59 m2

Františkovská, Liberec (nečleněné město)

16 000 Kč /za měsíc Získejte výhodnou HYPOTÉKU

(+ poplatky viz text inzerce)

Doporučené firmy v Liberci

Rekonstrukce

Úklidové služby

Informace k bytu

Pronajmu zrekonstruovaný byt 2+1 s neprůchozími pokoji, o výměře 59m2 + lodžie 3,6m2 + sklep cca 2m2, ve zrekonstruovaném panelovém domě (energetický štítek C), kde lidem záleží na dobrém sousedském soužití. Byt se nalézá ve 12. předposledním patře s nádherným výhledem na centrum města a Jizerské hory.

Byt je po rekonstrukci se zděným jádrem a praktickou prostornou šatnou/komorou přístupnou z předsíně. Byt je vybaven kuchyňskou linkou s plynovou varnou deskou a troubou, digestoř je odvětrávaná do šachty. Lednici je možné schovat do linky či zvolit volně stojící (ledničkou není byt vybaven). Prostorná koupelna s vanou a místem pro pračku, wc oddělené. Vytápění a ohřev vody centrální z vlastní plynové kotelny. Plastová okna. Zasklená lodžie. Na podlahách je dlažba a v obytných místnostech jednotná vinylová podlaha.

Byt není zařízen nábytkem, pronajímá se tak, jak ho vidíte na fotografiích.

Okna jsou orientovaná na jihovýchod, sluníčko se v místnostech točí skoro celý den. Nerušený výhled z oken je zachycen ve fotogalerii.

Společné prostory domu jsou částečně zrekonstruované, 2 výtahy. Sklepní kóje se nachází v přízemí domu. Chodby a schodiště díky oknům působí vzdušně. Jedná se o slušnou a klidnou adresu s výbornou dopravní dostupností, 10 minut chůze od všeho, co k životu potřebujete: od obchodů, kaváren, restaurací, pivnice, úřadů, autobusového a vlakového nádraží, MHD, dětských hřišť a venkovních posiloven, parků, cyklostezky a centra Babylon.

V okolí domu jsou modré rezidenční parkovací zóny s nutností obstarat si parkovací kartu (3000Kč/rok pro osoby s trvalým bydlištěm v místě), případně lze zaparkovat na zelených zónách, které jsou zdarma přes noc 18h-8h a část víkendu: so od 13h až do pondělí do 8h).

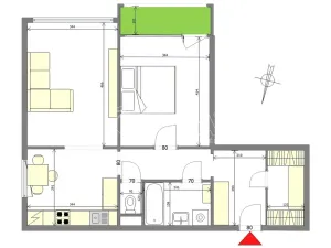
Rozmístění místností naleznete v přiloženém půdorysu.

Volný ihned, ideálně dlouhodobě.

Cenové podmínky:
Nájem: 16.000,- Kč/měs.
Poplatky: celkem cca 6.639Kč (poplatky dle evidenčního listu 5.239Kč + elektřina cca 1000Kč + plyn cca 400Kč) + případně internet. Elektřinu a plyn přehlásíme přímo na Vás, abyste měli kontrolu nad vlastní spotřebou.
Kauce: 20 000Kč, která Vám bude vrácena na konci nájemního vztahu
Provize RK: 10 000Kč.

Pro tento byt hledám ideálně dlouhodobého nájemce. Nekuřáky, co jim záleží na dobrých sousedských vztazích. Chceme, abyste zde strávili spokojeně klidně i několik let, i když to není absolutní podmínkou. Byt není vhodný pro krátkodobý pronájem. Vychovaný domácí mazlíček není problém.

Pokud by vás zajímaly další informace nebo byste se se mnou chtěli do bytu podívat, kontaktujte mě prosím na uvedených kontaktních údajích.

Parametry bytu

Cena
16 000 Kč /za měsíc
Poznámka k ceně
+ poplatky viz text inzerce
Aktualizováno
7. 4. 2026
Adresa
Františkovská, Liberec (nečleněné město)
ID
19383
Stavba
Panelová
Stav objektu
Velmi dobrý
Patro
13. z 14
Vybaveno
Ne
Lokalita objektu
Centrum obce
Vlastnictví
Osobní
Užitná plocha
59 m2
Zastavěná plocha
59 m2
Podlahová plocha
64 m2
Třída energetické náročnosti
C - Úsporná
Ukazatel energetické náročnosti
104 kWh/m2 za rok
Elektřina
230V
Plyn
Plynovod
Odpad
Veřejná kanalizace
Komunikace
Asfaltová
Telekomunikace
Internet
Doprava
Vlak, Dálnice, Silnice, MHD
Voda
Vodovod
Sklep
Lodžie
Výtah

Kontaktovat makléře

Máte zájem o tento byt?

Tímto, v souladu s nařízením Evropského parlamentu a Rady (EU) 2016/679, v platném znění, prohlašuji, že mi je alespoň 16 let a uděluji tak svůj souhlas se zpracováním zadaných údajů (jméno, telefon, e-mail, ip adresa) společnosti B3 Technology, s.r.o., IČ: 07330600, se sídlem Novostavby 126/23, 435 11 Lom (správce dat), za účelem předání dotazu z tohoto formuláře Vámi vybranému inzerentovi a zpětného kontaktování mé osoby. Osobní údaje bude správce zpracovávat manuálně i automaticky přímo prostřednictvím svých zaměstnanců. Informace předané tímto formulářem budou uloženy v databázi správce maximálně po dobu 10 let. Odvolání souhlasu s uložením a zpracováním poskytnutých dat lze e-mailem na info@bydlisnami.cz. V případě podezření na neoprávněné použití Vámi poskytnutých údajů máte právo předat podnět k šetření Úřadu pro ochranu osobních údajů. Více informací
Chystáte se prodat nemovitost?
Pomůžeme Vám!

Inzerát si prohlédlo 1 lidí

Prodejce

Ing. Kateřina Pavlů

Ing. Kateřina Pavlů

Hlídací pes

Chcete dostávat emailem podobné nabídky pronájmu bytů 2+1 v Liberci?

Podobné nemovitosti