Pronájem bytu 2+1, Brno, Řádky, 50 m2 (ID: 2596763)

Řádky, Brno, Obřany

16 000 Kč /za měsíc Získejte výhodnou HYPOTÉKU
Doporučené firmy v Brně

Informace k bytu

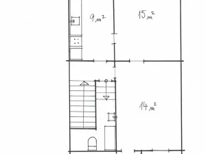
Nabízíme k pronájmu pěkný byt 2,5+1 o výměře 50 m², který se nachází ve 2. nadzemním podlaží domu v klidné lokalitě Brno–Obřany, ulice Řádky.

Velkou výhodou lokality je blízkost přírody – řeka Svitava, lesy v okolí Bílovic nad Svitavou a Soběšic …… výlety na kolech i pěšky.

Dispozice bytu:
• obývací pokoj (cca 15 m²),
• ložnice (cca 14 m2 + 6,6 m2),
• kuchyně (cca 9 m²),
• nová koupelna s WC,
• předsíň.

Obytné místnosti jsou samostatně přístupné a okna bytu jsou orientována na jižní stranu do klidné zahrady a do ulice Řádky.

Byt je vybaven kuchyňskou linkou, plynovým sporákem s digestoří, myčkou, ledničkou a mikrovlnnou troubou. Vytápění je ústřední plynovým kotlem a ohřev vody zajišťuje elektrický bojler. V bytě je zaveden internet. Po dohodě s pronajímatelem lze stávající nábytek vyklidit.

Byt je ihned k nastěhování a je vhodný pro max. 4 pracující osoby nebo studenty, nekuřáky.

Finanční podmínky:
• nájemné: 16 000 Kč / měsíc
• zálohy na služby a energie (2 osoby): 5 500 Kč / měsíc
• vratná jistota (kauce): 20 000 Kč
• provize RK: 16 000 Kč

PENB: třída G.

Parametry bytu

Cena
16 000 Kč /za měsíc
Náklady na bydlení
5500
Aktualizováno
8. 4. 2026
Adresa
Řádky, Brno, Obřany
Stavba
Cihlová
Stav objektu
Dobrý
Patro
2.
Vybaveno
Částečně
Lokalita objektu
Klidná část obce
Vlastnictví
Osobní
Užitná plocha
50 m2
Podlahová plocha
50 m2
Třída energetické náročnosti
G - Mimořádně nehospodárná
Elektřina
230V
Plyn
Plynovod
Odpad
Veřejná kanalizace
Komunikace
Asfaltová
Telekomunikace
Internet
Doprava
MHD
Voda
Vodovod
Topné těleso
Radiátory
Zdroj topení
Plynový kotel
Zdroj teplé vody
Bojler - elektro
Bezbarierový přístup

Kontaktovat makléře

Máte zájem o tento byt?

Tímto, v souladu s nařízením Evropského parlamentu a Rady (EU) 2016/679, v platném znění, prohlašuji, že mi je alespoň 16 let a uděluji tak svůj souhlas se zpracováním zadaných údajů (jméno, telefon, e-mail, ip adresa) společnosti B3 Technology, s.r.o., IČ: 07330600, se sídlem Novostavby 126/23, 435 11 Lom (správce dat), za účelem předání dotazu z tohoto formuláře Vámi vybranému inzerentovi a zpětného kontaktování mé osoby. Osobní údaje bude správce zpracovávat manuálně i automaticky přímo prostřednictvím svých zaměstnanců. Informace předané tímto formulářem budou uloženy v databázi správce maximálně po dobu 10 let. Odvolání souhlasu s uložením a zpracováním poskytnutých dat lze e-mailem na info@bydlisnami.cz. V případě podezření na neoprávněné použití Vámi poskytnutých údajů máte právo předat podnět k šetření Úřadu pro ochranu osobních údajů. Více informací
Chystáte se prodat nemovitost?
Pomůžeme Vám!

Inzerát si prohlédlo 1 lidí

Prodejce

Ing.Miloš Kocian

Ing.Miloš Kocian

Hlídací pes

Chcete dostávat emailem podobné nabídky pronájmu bytů 2+1 v Brně?

Podobné nemovitosti