Prodej rodinného domu, Prušánky, Hodonínská, 25 m2

Hodonínská, Prušánky

4 990 000 Kč /za nemovitost HYPOTÉKA od 22 302 Kč /za měsíc
Doporučené firmy v Prušánkách

Informace k domu

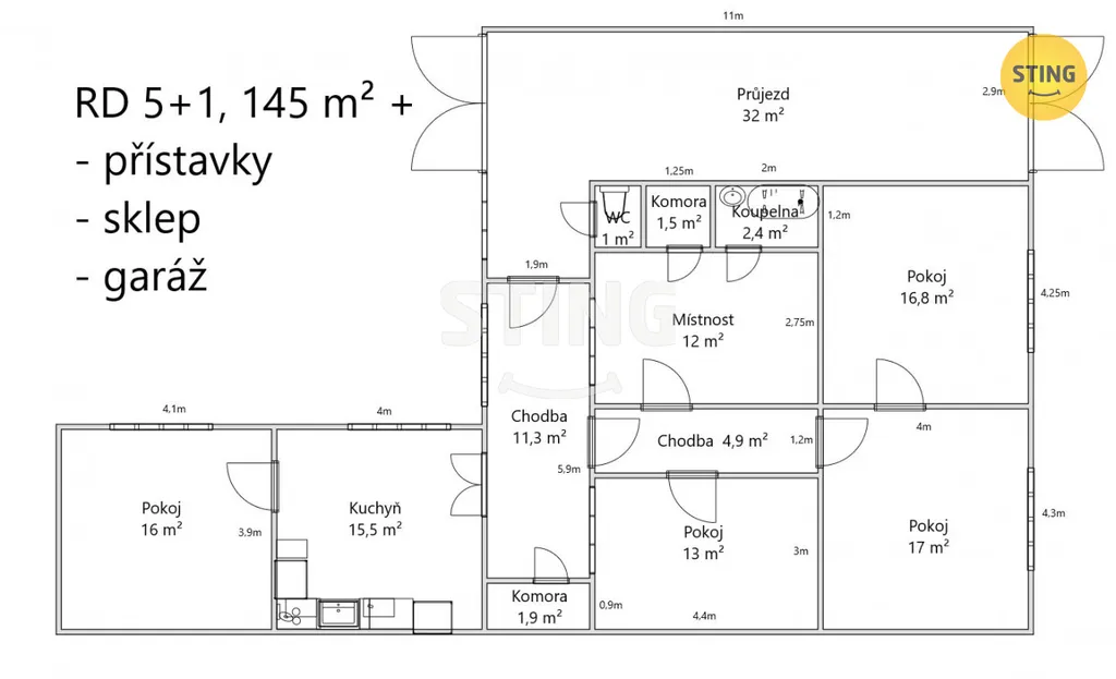
Nabízíme k prodeji rodinný dům o dispozici 5+1 v obci Prušánky, který se nachází v klidné a příjemné lokalitě ideální pro rodinné bydlení.
Jedná se o řadový dům napojený na veškeré inženýrské sítě. Dispozice nabízí celkem 5 pokojů, což poskytuje dostatek prostoru i pro větší rodinu. Velkým benefitem je prostorný průjezd, který umožňuje pohodlné parkování až pro dvě auta.
Ve dvoře se dále nachází garáž, hospodářské stavení a menší zahrádka, která nabízí prostor pro relaxaci, pěstování nebo posezení s rodinou.
Dům je určený k rekonstrukci, což dává novému majiteli skvělou příležitost upravit si bydlení přesně podle vlastních představ. Zároveň je možné jej po menších úpravách využívat i k okamžitému bydlení.
Obec Prušánky disponuje kompletní občanskou vybaveností – nachází se zde škola, školka, obchody i další služby, což zajišťuje pohodlný každodenní život bez nutnosti dojíždění.
Pro více informací nebo domluvení prohlídky nás neváhejte kontaktovat. Do konce dubna 2026 nabízíme prostřednictvím našeho partnera úrokové sazby od 4,69 % p.a. Více informací Vám sdělí náš specialista na prohlídce.

Parametry domu

Cena
4 990 000 Kč /za nemovitost Spočítat hypotéku
Aktualizováno
8. 4. 2026
Adresa
Hodonínská, Prušánky
ID
134744
Stavba
Smíšená
Stav objektu
Před rekonstrukcí
Typ objektu
Přízemní
Druh objektu
Řadový
Lokalita objektu
Centrum obce
Užitná plocha
25 m2
Zastavěná plocha
252 m2
Podlahová plocha
227 m2
Plocha pozemku
594 m2
Třída energetické náročnosti
G - Mimořádně nehospodárná
Elektřina
230V
Plyn
Plynovod
Odpad
Veřejná kanalizace
Topení
Ústřední plynové
Doprava
Silnice, Autobus
Garáž

Kontaktovat makléře

Máte zájem o tento dům?

Tímto, v souladu s nařízením Evropského parlamentu a Rady (EU) 2016/679, v platném znění, prohlašuji, že mi je alespoň 16 let a uděluji tak svůj souhlas se zpracováním zadaných údajů (jméno, telefon, e-mail, ip adresa) společnosti B3 Technology, s.r.o., IČ: 07330600, se sídlem Novostavby 126/23, 435 11 Lom (správce dat), za účelem předání dotazu z tohoto formuláře Vámi vybranému inzerentovi a zpětného kontaktování mé osoby. Osobní údaje bude správce zpracovávat manuálně i automaticky přímo prostřednictvím svých zaměstnanců. Informace předané tímto formulářem budou uloženy v databázi správce maximálně po dobu 10 let. Odvolání souhlasu s uložením a zpracováním poskytnutých dat lze e-mailem na info@bydlisnami.cz. V případě podezření na neoprávněné použití Vámi poskytnutých údajů máte právo předat podnět k šetření Úřadu pro ochranu osobních údajů. Více informací
Chystáte se prodat nemovitost?
Pomůžeme Vám!

Inzerát si prohlédlo 1 lidí

Prodejce

Ing. Jiřina Havránková

Ing. Jiřina Havránková

Hlídací pes

Chcete dostávat emailem podobné nabídky prodeje rodinných domů v Prušánkách?

Podobné nemovitosti