Molík reality

Prodej pozemku pro bydlení, Litvínov - Horní Ves, 1259 m2

Litvínov, Horní Ves

3 150 000 Kč /za nemovitost HYPOTÉKA od 14 079 Kč /za měsíc
Doporučené firmy v Litvínově

Okna a dveře

Pojištění a finance

Informace k pozemku

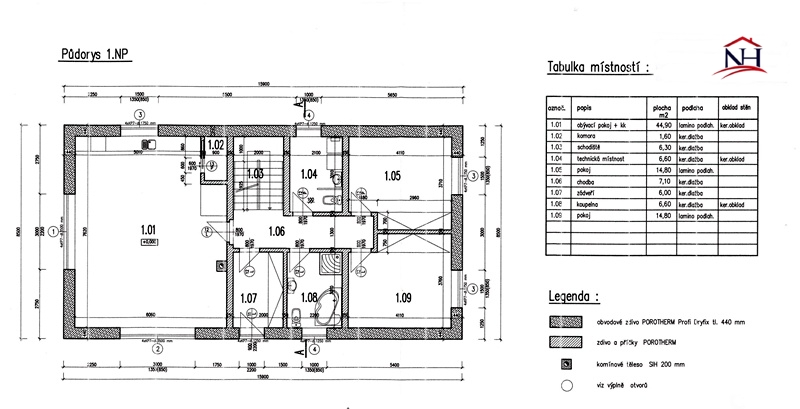
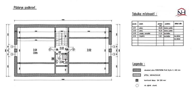
Nabízíme k prodeji stavební pozemek v malebné obci Litvínov, část Horní Ves, který je ideální pro rodiny s dětmi. Tento pozemek o celkové ploše 1259 m² je připraven k okamžité výstavbě, což vám umožní rychle zahájit realizaci vašeho vysněného domova. Na pozemku je platné a prodloužené stavební povolení a vypracovaný projekt na prostorný dům 5+kk, který poskytne dostatek místa pro celou rodinu.

Bezpečnost a pohoda dětí jsou pro nás prioritou. Pozemek se nachází v klidné části obce, kde si můžete být jisti, že vaše děti budou mít prostor pro hru a bezpečné prostředí. V okolí se nachází sportovní areál a blízkost přírody, což nabízí množství aktivit, jak pro malé, tak pro větší děti. Vzdálenost ke skiareálu Klíny je pouhých 10 minut, ideální pro zimní radovánky.

Pro vaše pohodlí je na pozemku zajištěna elektřina od Čezu s platným zakázkovým listem a vlastní vrt na vodu. Také je součástí projektu čistička odpadních vod (ČOV), což zajišťuje komfortní a ekologické bydlení.

Okolí pozemku nabízí také skvělou dostupnost do zaměstnání a dalších služeb – centrum Litvínova je dostupné do 5 minut jízdy. V okolí se nachází školy, školky a dětská hřiště, což představuje ideální podmínky pro rodinný život.

Dům navržený v projektu disponuje prostornými dětskými pokoji, hernou, dvěma koupelnami, komorou a velkou zahradou, která je perfektní pro rodinné grilování, hry na čerstvém vzduchu a relaxaci. Užívejte si rodinného života v příjemném a bezpečném prostředí, které vám tento pozemek nabízí.

V případě zájmu o prohlídku nás neváhejte kontaktovat.
Financování zajistíme naším finančním specialistou.

Parametry pozemku

Cena
3 150 000 Kč /za nemovitost Spočítat hypotéku
Aktualizováno
10. 5. 2026
Adresa
Litvínov, Horní Ves
ID
0060
Lokalita objektu
Polosamota
Plocha pozemku
1259 m2
Elektřina
230V, 400V
Odpad
ČOV pro celý objekt
Komunikace
Asfaltová
Doprava
Silnice, Autobus
Voda
Studna
Převod do OV

Kontaktovat makléře

Máte zájem o tento pozemek?

Tímto, v souladu s nařízením Evropského parlamentu a Rady (EU) 2016/679, v platném znění, prohlašuji, že mi je alespoň 16 let a uděluji tak svůj souhlas se zpracováním zadaných údajů (jméno, telefon, e-mail, ip adresa) společnosti B3 Technology, s.r.o., IČ: 07330600, se sídlem Novostavby 126/23, 435 11 Lom (správce dat), za účelem předání dotazu z tohoto formuláře Vámi vybranému inzerentovi a zpětného kontaktování mé osoby. Osobní údaje bude správce zpracovávat manuálně i automaticky přímo prostřednictvím svých zaměstnanců. Informace předané tímto formulářem budou uloženy v databázi správce maximálně po dobu 10 let. Odvolání souhlasu s uložením a zpracováním poskytnutých dat lze e-mailem na info@bydlisnami.cz. V případě podezření na neoprávněné použití Vámi poskytnutých údajů máte právo předat podnět k šetření Úřadu pro ochranu osobních údajů. Více informací
Chystáte se prodat nemovitost?
Pomůžeme Vám!
Theleadway banner

Inzerát si prohlédlo 1 lidí

Prodejce

Nataša Herzigová Halířová

Nataša Herzigová Halířová

Hlídací pes

Chcete dostávat emailem podobné nabídky prodeje pozemků pro bydlení v Litvínově?

Podobné nemovitosti