Pronájem kanceláře, Písek, Gregorova, 52 m2 (ID: 2601591)

Gregorova, Písek, Budějovické Předměstí

14 000 Kč /za měsíc Získejte výhodnou HYPOTÉKU
Doporučené firmy v Písku

Výkup a prodej starého nábytku

Informace k nemovitosti

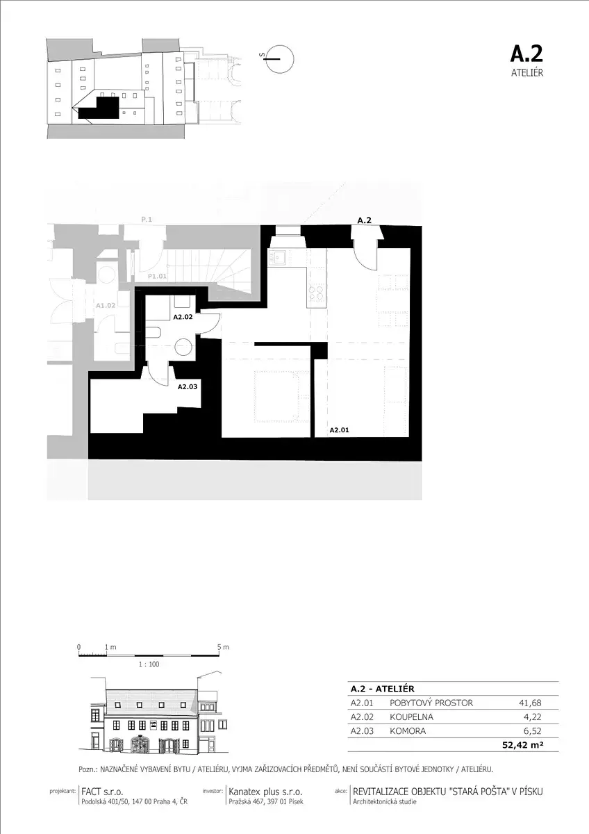
K pronájmu nabízíme zcela nový ateliér / nebytový prostor v přízemí kompletně rekonstruovaného domu Stará pošta v samotném centru města Písek, ulice Gregorova 8. Prostor je situován ve vnitrobloku, má samostatný vstup přímo z ulice.

Ateliér o celkové výměře 52,42 m² tvoří prostorný pobytový prostor, koupelna se sprchovým koutem a WC a praktická komora. Prostor vzniká v rámci právě probíhající kompletní rekonstrukce celého objektu a bude k užívání od 1. 7. Součástí vybavení je nová kuchyňská linka, moderní koupelna a technické zázemí, díky čemuž bude prostor připraven k okamžitému využití bez nutnosti dalších investic.

Vzhledem k tomu, že rekonstrukce je stále v průběhu, zatím nejsou k dispozici fotografie hotového prostoru. Osobní prohlídky jsou však možné po domluvě, což umožňuje se s dispozicí a umístěním ateliéru seznámit ještě před dokončením.

Díky své dispozici a umístění je ateliér vhodný jak k bydlení, tak k podnikání, případně ke kombinaci obojího – například jako studio, kancelář, pracovna, kreativní ateliér nebo klidné městské bydlení.

Velkou předností je lokalita v centru Písku, kde je veškerá občanská vybavenost v docházkové vzdálenosti – obchody, kavárny, služby, úřady i zastávky MHD. Přesto samotný prostor poskytuje klidné zázemí mimo hlavní ruch města. K prostoru je navíc možné si pronajmout jedno parkovací místo, což je v této části města výraznou výhodou.

Parametry nemovitosti

Cena
14 000 Kč /za měsíc
Aktualizováno
10. 4. 2026
Adresa
Gregorova, Písek, Budějovické Předměstí
Stavba
Cihlová
Stav objektu
Velmi dobrý
Vybaveno
Částečně
Lokalita objektu
Centrum obce
Užitná plocha
52 m2
Odpad
Veřejná kanalizace
Zdroj topení
Ústřední dálkové
Zdroj teplé vody
Bojler - elektro
Parkování

Kontaktovat makléře

Máte zájem o tuto nemovistost?

Tímto, v souladu s nařízením Evropského parlamentu a Rady (EU) 2016/679, v platném znění, prohlašuji, že mi je alespoň 16 let a uděluji tak svůj souhlas se zpracováním zadaných údajů (jméno, telefon, e-mail, ip adresa) společnosti B3 Technology, s.r.o., IČ: 07330600, se sídlem Novostavby 126/23, 435 11 Lom (správce dat), za účelem předání dotazu z tohoto formuláře Vámi vybranému inzerentovi a zpětného kontaktování mé osoby. Osobní údaje bude správce zpracovávat manuálně i automaticky přímo prostřednictvím svých zaměstnanců. Informace předané tímto formulářem budou uloženy v databázi správce maximálně po dobu 10 let. Odvolání souhlasu s uložením a zpracováním poskytnutých dat lze e-mailem na info@bydlisnami.cz. V případě podezření na neoprávněné použití Vámi poskytnutých údajů máte právo předat podnět k šetření Úřadu pro ochranu osobních údajů. Více informací
Chystáte se prodat nemovitost?
Pomůžeme Vám!

Inzerát si prohlédlo 2 lidí

Prodejce

Šárka Durdisová

Šárka Durdisová

Hlídací pes

Chcete dostávat emailem podobné nabídky pronájmu kanceláří v Písku?

Podobné nemovitosti