Pronájem bytu 2+1, Žamberk, 17. listopadu, 65 m2

17. listopadu, Žamberk

9 400 Kč /za měsíc Získejte výhodnou HYPOTÉKU

(v textu, nutno připočítat zálohu na energie a služby)

Doporučené firmy v Žamberku

Informace k bytu

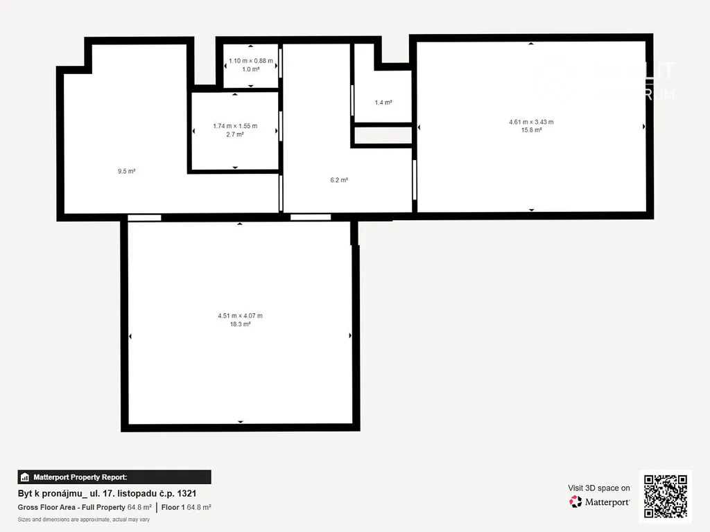
Dlouhodobý pronájem bytu 2+1 s lodžií v Žamberku

Dlouhodobý pronájem bytu 2+1 s lodžií v žádané lokalitě Žamberk – Hledáme slušné a spolehlivé nájemníky.
Hledáte klidné a kvalitní bydlení s veškerými výhodami města?
Nabízíme k dlouhodobému pronájmu světlý, prostorný byt 2+1 s orientační výměrou 55 m², který je ideální pro ty, kteří si chtějí vytvořit skutečný domov.
Klíčové vlastnosti bytu a domu:
• Lokalita: Vyhledávaná část města Žamberk s kompletní občanskou vybaveností (obchody, školy, školky, zdravotnická zařízení, sportoviště) v pěší dostupnosti.
• Dispozice: Byt 2+1.
• Stav: Původní, ale velmi dobrý stav, částečně vybavený.
• Relaxace: Prosklená lodžie (balkon) s příjemným výhledem na město a parkoviště.
• Úložné prostory: K bytu náleží sklepní kóje pro uskladnění sezónních věcí.
• Dům: PENB, energetická třída D, revitalizovaný panelový dům s výtahem, 3. patro.
Finanční podmínky:
• Měsíční nájemné: 9 400 Kč
• Zálohy na energie a služby: 4 500 Kč (závislé na počtu osob)
• Vratná kauce: 20 000 Kč (Požadavek na složení kauce je z důvodu zajištění
řádného užívání bytu. )
• Provize realitní kanceláři
• K nastěhování od: 01.07. 2026, po domluvě i dřívě
Náš požadavek na nájemníky:
Hledáme solidní a spolehlivé nájemníky, kteří budou byt obývat s respektem, kteří hledají pohodlí, dostatek místa a chtějí si vytvořit vlastní domov.
Neváhejte, volejte, těším se na prohlídky se všemi zájemci.

Parametry bytu

Cena
9 400 Kč /za měsíc
Poznámka k ceně
v textu, nutno připočítat zálohu na energie a služby
Aktualizováno
10. 4. 2026
Adresa
17. listopadu, Žamberk
ID
N00002
Stavba
Panelová
Stav objektu
Dobrý
Vlastnictví
Osobní
Užitná plocha
65 m2
Třída energetické náročnosti
G - Mimořádně nehospodárná

Kontaktovat makléře

Máte zájem o tento byt?

Tímto, v souladu s nařízením Evropského parlamentu a Rady (EU) 2016/679, v platném znění, prohlašuji, že mi je alespoň 16 let a uděluji tak svůj souhlas se zpracováním zadaných údajů (jméno, telefon, e-mail, ip adresa) společnosti B3 Technology, s.r.o., IČ: 07330600, se sídlem Novostavby 126/23, 435 11 Lom (správce dat), za účelem předání dotazu z tohoto formuláře Vámi vybranému inzerentovi a zpětného kontaktování mé osoby. Osobní údaje bude správce zpracovávat manuálně i automaticky přímo prostřednictvím svých zaměstnanců. Informace předané tímto formulářem budou uloženy v databázi správce maximálně po dobu 10 let. Odvolání souhlasu s uložením a zpracováním poskytnutých dat lze e-mailem na info@bydlisnami.cz. V případě podezření na neoprávněné použití Vámi poskytnutých údajů máte právo předat podnět k šetření Úřadu pro ochranu osobních údajů. Více informací
Chystáte se prodat nemovitost?
Pomůžeme Vám!

Inzerát si prohlédlo 0 lidí

Prodejce

Roman Kroulík

Roman Kroulík

Hlídací pes

Chcete dostávat emailem podobné nabídky pronájmu bytů 2+1 v Žamberku?

Podobné nemovitosti