Pronájem komerční, Hradec Králové - Slezské Předměstí, Víta Nejedlého, 300 m2

Víta Nejedlého, Hradec Králové, Slezské Předměstí

70 000 Kč /za měsíc Získejte výhodnou HYPOTÉKU
Doporučené firmy v Hradci Králové

Informace k nemovitosti

REPREZENTATIVNÍ PROSTORY - 300 m² nebo 100 m² - výlohy, parkování, HK - Víta Nejedlého

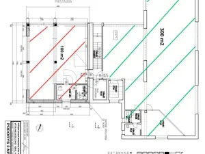
Nabízíme k pronájmu jedinečné komerční prostory (300 m² a 100 m²) v 1. patře frekventované budovy na ulici Víta Nejedlého. Prostory lze pronajmout každý zvlášť, nebo je propojit v jeden velkorysý celek (400 m²).
Toto zázemí je ideální volbou pro firmy, které vyžadují maximální viditelnost, absolutní nezávislost a komfortní přístup pro klienty i zásobování.

VARIANTA A: 300 m² – K dispozici IHNED
- Světlý open-space s prosklenými výlohami.
- Vhodné pro obchod, služby nebo kombinaci showroomu se skladem/výrobou.
- Kompletní zázemí: vlastní kuchyňka, 2x WC, oddělená kancelář/jednací místnost.
- Cena: 70 000 Kč / měsíc + služby a energie.

VARIANTA B: 100 m² – K dispozici od ČERVENCE
- Zcela nový, samostatný prostor ve stejném standardu.
- Vlastní sociální zázemí (kuchyňka, WC) a prosklené plochy.
- Ideální pro menší showroom, ateliér či kanceláře.
- Cena: 50 000 Kč / měsíc + služby a energie.

Klíčové konkurenční výhody:
- SAMOSTATNÝ VSTUP
- VLASTNÍ PARKOVÁNÍ
- NÁKLADNÍ VÝTAH
- NEPŘEHLÉDNUTELNÉ VÝLOHY V 1. PATŘE

Nenechte si ujít tuto výjimečnou příležitost pro váš byznys. Prostory s touto kombinací plochy, viditelnosti a technického zázemí (nákladní výtah) se v Hradci Králové objevují zřídka.
Pro více informací a sjednání osobní prohlídky mě kontaktujte.

Parametry nemovitosti

Cena
70 000 Kč /za měsíc
Aktualizováno
12. 4. 2026
Adresa
Víta Nejedlého, Hradec Králové, Slezské Předměstí
ID
N717
Stavba
Smíšená
Stav objektu
Po rekonstrukci
Užitná plocha
300 m2
Třída energetické náročnosti
G - Mimořádně nehospodárná

Kontaktovat makléře

Realitní kancelář

Trigramreality s.r.o.

Milady Horákové 1738/7, Hradec Králové

Chystáte se prodat nemovitost?
Pomůžeme Vám!

Máte zájem o tuto nemovistost?

Tímto, v souladu s nařízením Evropského parlamentu a Rady (EU) 2016/679, v platném znění, prohlašuji, že mi je alespoň 16 let a uděluji tak svůj souhlas se zpracováním zadaných údajů (jméno, telefon, e-mail, ip adresa) společnosti B3 Technology, s.r.o., IČ: 07330600, se sídlem Novostavby 126/23, 435 11 Lom (správce dat), za účelem předání dotazu z tohoto formuláře Vámi vybranému inzerentovi a zpětného kontaktování mé osoby. Osobní údaje bude správce zpracovávat manuálně i automaticky přímo prostřednictvím svých zaměstnanců. Informace předané tímto formulářem budou uloženy v databázi správce maximálně po dobu 10 let. Odvolání souhlasu s uložením a zpracováním poskytnutých dat lze e-mailem na info@bydlisnami.cz. V případě podezření na neoprávněné použití Vámi poskytnutých údajů máte právo předat podnět k šetření Úřadu pro ochranu osobních údajů. Více informací
Chystáte se prodat nemovitost?
Pomůžeme Vám!

Inzerát si prohlédlo 0 lidí

Prodejce

Ivana Hrubá

Ivana Hrubá

Hlídací pes

Chcete dostávat emailem podobné nabídky pronájmu komerčních v Hradci Králové?

Podobné nemovitosti