Prodej rodinného domu, Hlučín, Pekařská, 140 m2 (ID: 2604915)

Pekařská, Hlučín

7 600 000 Kč /za nemovitost HYPOTÉKA od 33 967 Kč /za měsíc
Doporučené firmy v Hlučíně

Informace k domu

Každý kout zde má svůj příběh, a už při vstupu je jasné, že tohle není žádná tuctová stavba. Zvenku působí dům nenápadně – o to větší překvapení čeká uvnitř. Za fasádou se skrývá překvapivě velkorysý prostor, který nabízí víc, než byste čekali.

Tento rodinný dům v samotném centru Hlučína je ideální volbou pro velkou rodinu, vícegenerační bydlení i pro ty, kteří chtějí propojit bydlení s podnikáním nebo investicí. Dispozice domu umožňuje rozdělení na dvě samostatné bytové jednotky, aniž by ztratil svůj charakter a atmosféru skutečného domova. Navíc se na zahradě nachází dřevostavba, sloužící jako kadeřnictví a bistro klub.

Dům se nachází přímo v centru Hlučína, kde máte vše, co potřebujete pro pohodlný každodenní život. Obchody, školy, školky, lékaři i veškeré služby jsou v docházkové vzdálenosti, takže se obejdete bez zdlouhavého dojíždění. Lokalita je ideální jak pro rodinné bydlení, tak pro podnikání – centrum města zajišťuje výbornou dostupnost, viditelnost a dlouhodobou hodnotu nemovitosti.

Rodinný dům
- kombinace původní části s přístavbou
- cca 140 m² obytné plochy
- plastová okna (pouze dvě původní okna dodávají domu autentický šarm)
- voda v plastu, přístavba zateplená
- velmi dobrý stav – dům je obyvatelný ihned
- možnost rozdělení na dvě bytové jednotky
- zahrada s novým přístřeškem na auto, zahradní chata na nářadí, 3 dlážděná parkovací stání
- parkování možné také na ulici před domem

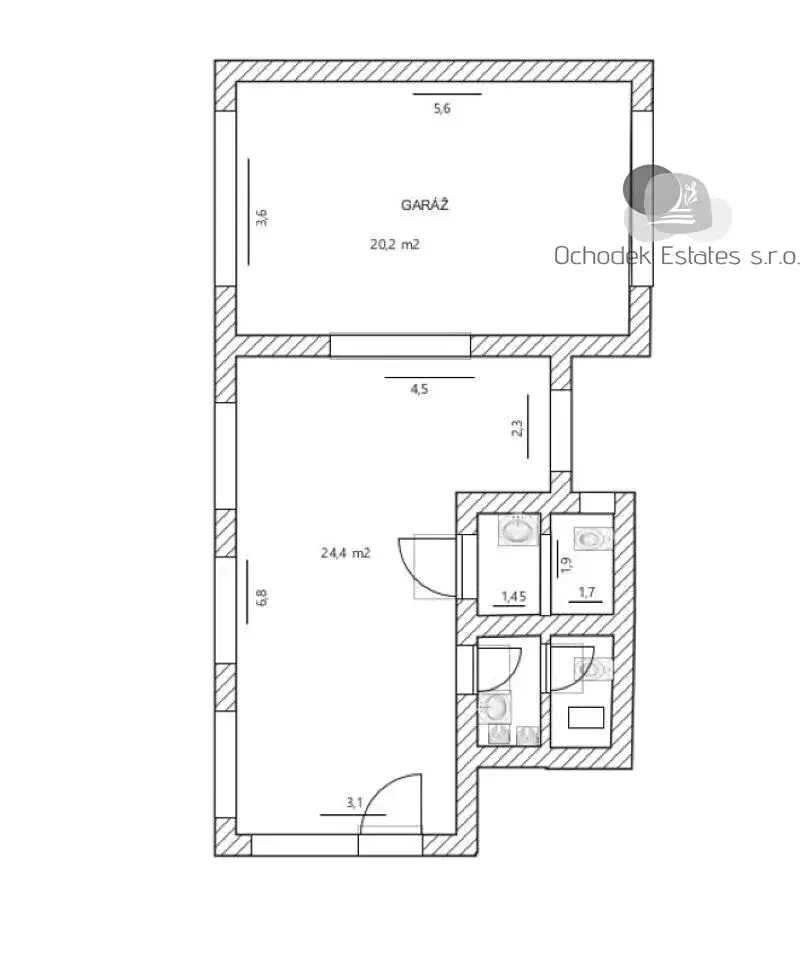
Dispozice RD
V přízemí kuchyň s jídelnou, ložnice, obývák, dětský pokoj, koupelna s vanou i sprchovým koutem, samostatné WC, praktický úložný prostor pod schodištěm
V prvním patře velký otevřený obývací prostor se vstupem do ložnice a druhého pokoje, kde je příprava sítí pro vybudování kuchyně, koupelna s WC, a hlavně vstup na velkou terasu, která výrazně rozšiřuje obytný prostor

Komerční prostor
Podnikatelský bonus, který dává smysl a kde se otevírá obrovský potenciál celé nemovitosti. Od prvního dne zde můžete provozovat kadeřnictví, bistro nebo klidně obojí společně.
- dva samostatné záchody, z toho jeden bezbariérový
- velký otevřený prostor, dříve využívaný k posezení a výčep.


Proč právě tato nemovitost?

_ centrum města
_ bydlení + podnikání nebo pronájem na jednom místě
_ možnost dvou bytových jednotek
_ zachovalý stav, pouze drobné úpravy dle vkusu
_ investice s reálným výnosem

Možná výměna za byt v Hlučíně.
Pozn.: Financování pomůžeme zařídit. Energetický štítek se v současné době zpracovává, prozatím uvádíme zákonné "G". Uvedená kupní cena nezahrnuje zprostředkovatelský poplatek ve výši 3%+DPH z ujednané ceny.

Parametry domu

Cena
7 600 000 Kč /za nemovitost Spočítat hypotéku
Aktualizováno
13. 4. 2026
Adresa
Pekařská, Hlučín
ID
26-07-103
Stavba
Cihlová
Stav objektu
Velmi dobrý
Druh objektu
Rohový
Lokalita objektu
Centrum obce
Užitná plocha
140 m2
Zastavěná plocha
109 m2
Podlahová plocha
502 m2
Plocha pozemku
502 m2
Třída energetické náročnosti
G - Mimořádně nehospodárná
Elektřina
230V, 400V
Plyn
Plynovod
Odpad
Veřejná kanalizace
Topení
Ústřední plynové
Voda
Vodovod
Výtah
Bezbarierový přístup
Parkování

Kontaktovat makléře

Realitní kancelář

Ochodek Estates

Brodek u Konice 126, Brodek u Konice

Chystáte se prodat nemovitost?
Pomůžeme Vám!

Máte zájem o tento dům?

Tímto, v souladu s nařízením Evropského parlamentu a Rady (EU) 2016/679, v platném znění, prohlašuji, že mi je alespoň 16 let a uděluji tak svůj souhlas se zpracováním zadaných údajů (jméno, telefon, e-mail, ip adresa) společnosti B3 Technology, s.r.o., IČ: 07330600, se sídlem Novostavby 126/23, 435 11 Lom (správce dat), za účelem předání dotazu z tohoto formuláře Vámi vybranému inzerentovi a zpětného kontaktování mé osoby. Osobní údaje bude správce zpracovávat manuálně i automaticky přímo prostřednictvím svých zaměstnanců. Informace předané tímto formulářem budou uloženy v databázi správce maximálně po dobu 10 let. Odvolání souhlasu s uložením a zpracováním poskytnutých dat lze e-mailem na info@bydlisnami.cz. V případě podezření na neoprávněné použití Vámi poskytnutých údajů máte právo předat podnět k šetření Úřadu pro ochranu osobních údajů. Více informací
Chystáte se prodat nemovitost?
Pomůžeme Vám!

Inzerát si prohlédlo 0 lidí

Prodejce

BSc. Kristýna Khan

BSc. Kristýna Khan

Hlídací pes

Chcete dostávat emailem podobné nabídky prodeje rodinných domů v Hlučíně?

Podobné nemovitosti