Prodej rodinného domu, Kotvrdovice, 110 m2 (ID: 2607115)

Kotvrdovice

2 550 000 Kč /za nemovitost HYPOTÉKA od 11 397 Kč /za měsíc
Doporučené firmy v Kotvrdovicích

Informace k domu

Ve výhradním zastoupení majitele Vám nabízíme k prodeji nemovitost vhodnou jak pro bydlení, tak pro rodinnou rekreaci. Dům se nachází v obci Kotvrdovice u Jedovnic na okraji okresu Blansko, s výbornou dostupností také do okresů Vyškov a Prostějov. Dům stojí v klidné boční ulici mimo hlavní silnici, přitom jen pár kroků od autobusové zastávky, potravin a obecního úřadu.
Díky výborné dopravní dostupnosti a poloze v atraktivní rekreační oblasti Moravského krasu je dům ideální jak k trvalému bydlení, tak i k víkendovému odpočinku.

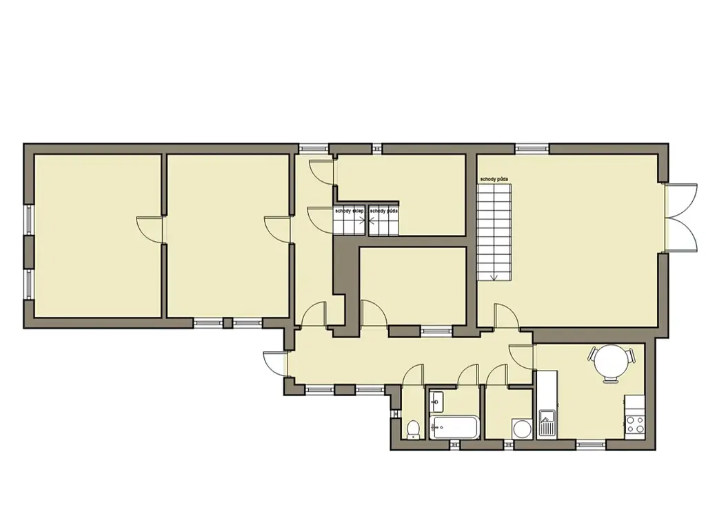
Cihlový, samostatně stojící, přízemní rodinný dům je dispozičně řešený jako 2+1 (3+1).
Je vhodný k rekonstrukci dle vlastních představ.
V přízemí domu se nachází:
• Kuchyně
• Koupelna
• WC a technická místnost (místo pro pračku, bojler)
• Velký prostor s dvoukřídlími dveřmi -dílna, sklad, garáž, nebo budoucí velkorysá obytná místnost s přímým vstupem do podkrovního prostoru půdy
• pokoj/šatna s lůžkem
• přístup do menšího sklepa vhodného ke skladování zeleniny a brambor
• přístup do velké komory využívané pro mrazák a jiné skladování potravin se schody do „horní komory“ vestavěné do půdního prostoru
• pokoj s krbovými kamny a vstupem do dalšího pokoje s výhledem do zahrady
V podkroví domu je prostorná půda, kde je možné vybudovat další obytné místnosti.
Okna jsou převážně dřevěná, vhodná k výměně, střešní krytina je pálená taška, na podlaze je dlažba. Topení zajišťují krbová kamna a plynová topná tělesa WAW, teplou vodu pro kuchyni a koupelnu zajišťuje bojler. Voda je přivedena z obecního vodovodního řádu v plastu, do kuchyně je vedená v plastu, do koupelny v původním rozvodu vody, odpad je sveden do jímky, v obci je kanalizace. Do domu byla přivedena plynová přípojka. Elektřina v domě je rozvedená v mědi.
Celková plocha pozemku je 248 m², zastavěná plocha a nádvoří je 158 m², zastavěná plocha domu, dle katastru, je 151 m², užitná plocha domu je cca 110 m², celková plocha včetně půdy je cca 190 m².
Lokalita je velmi atraktivní pro svoje turistické cíle, možnosti trávení volného času na kole, u rybníka, společenský a sportovní život v obci a okolí. V obci je k dispozici orlovna, sportovní letiště, fotbalové hřiště, osvětlené multifunkční hřiště s umělým povrchem, základní škola od 1.-5. třídy, mateřská škola, lesní hřiště s lanovými průlezkami a volejbalovým hřištěm u Brány, podací pošta, knihovna, potraviny, několik míst s občerstvením.

Parametry domu

Cena
2 550 000 Kč /za nemovitost Spočítat hypotéku
Aktualizováno
14. 4. 2026
Adresa
Kotvrdovice
Stavba
Cihlová
Stav objektu
Před rekonstrukcí
Užitná plocha
110 m2
Zastavěná plocha
158 m2
Podlahová plocha
190 m2
Plocha pozemku
248 m2
Plocha zahrady
90 m2
Třída energetické náročnosti
G - Mimořádně nehospodárná
Elektřina
230V
Plyn
Plynovod
Odpad
Jímka
Komunikace
Asfaltová
Voda
Vodovod
Zdroj topení
WAW, Krbová kamna
Zdroj teplé vody
Bojler - elektro
Garáž
Sklep

Kontaktovat makléře

Máte zájem o tento dům?

Tímto, v souladu s nařízením Evropského parlamentu a Rady (EU) 2016/679, v platném znění, prohlašuji, že mi je alespoň 16 let a uděluji tak svůj souhlas se zpracováním zadaných údajů (jméno, telefon, e-mail, ip adresa) společnosti B3 Technology, s.r.o., IČ: 07330600, se sídlem Novostavby 126/23, 435 11 Lom (správce dat), za účelem předání dotazu z tohoto formuláře Vámi vybranému inzerentovi a zpětného kontaktování mé osoby. Osobní údaje bude správce zpracovávat manuálně i automaticky přímo prostřednictvím svých zaměstnanců. Informace předané tímto formulářem budou uloženy v databázi správce maximálně po dobu 10 let. Odvolání souhlasu s uložením a zpracováním poskytnutých dat lze e-mailem na info@bydlisnami.cz. V případě podezření na neoprávněné použití Vámi poskytnutých údajů máte právo předat podnět k šetření Úřadu pro ochranu osobních údajů. Více informací
Chystáte se prodat nemovitost?
Pomůžeme Vám!

Inzerát si prohlédlo 2 lidí

Prodejce

MVDr. Olga Bebarová

MVDr. Olga Bebarová

Hlídací pes

Chcete dostávat emailem podobné nabídky prodeje rodinných domů v Kotvrdovicích?

Top nabídky

Podobné nemovitosti