Prodej rodinného domu, Horní Kalná, 126 m2 (ID: 2613537)

Horní Kalná

5 900 000 Kč /za nemovitost HYPOTÉKA od 26 369 Kč /za měsíc
Doporučené firmy v Horní Kalné

Informace k domu

Stylová roubená chalupa po kompletní rekonstrukci vedená jako rodinný dům, nacházející se v obci Horní Kalná (okres Trutnov). Nemovitost stojí na pozemku o velikosti 505 m² a je ve výborně udržovaném stavu.

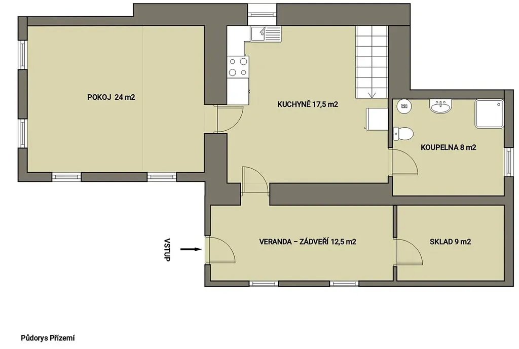
Dispozice domu je 3+1:

• v přízemí se nachází kuchyně, obývací pokoj, koupelna, veranda a dřevník s kůlnou,
• v podkroví jsou dva útulné pokoje.
Technické zázemí a vybavení:
• elektřina (včetně levného tarifu),
• teplá a studená voda ze studny, na pozemku je zároveň přivedena vodovodní přípojka,
• vytápění kamny na dřevo a kachlovými kamny – v obývacím pokoji je praktický záklop ve stropě pro vytápění horních pokojů,
• odpad je sveden do jímky.

Chalupa se nachází 150 m od hlavní komunikace, což zajišťuje soukromí a klid.

Svah nad chalupou je zpevněný svahovými tvárnicemi.

Nemovitost je vhodná i pro celoroční bydlení.

Výborná dostupnost – Vrchlabí 12 min, do Prahy se pohodlně dostanete přibližně za 1 hodinu a 30 minut.

V okolí lze využít široké možnosti vyžití:

• pěší turistiku a cyklostezky přímo v podhůří Krkonoš,
• lyžařské areály (Vrchlabí, Herlíkovice, Benecko, Černý Důl, Špindlerův Mlýn) i běžkařské trasy,
• kulturní vyžití ve Vrchlabí či Trutnově

Parametry domu

Cena
5 900 000 Kč /za nemovitost Spočítat hypotéku
Aktualizováno
21. 4. 2026
Adresa
Horní Kalná
Stavba
Dřevěná
Stav objektu
Velmi dobrý
Užitná plocha
126 m2
Plocha pozemku
505 m2
Třída energetické náročnosti
D - Méně úsporná
Ukazatel energetické náročnosti
109 kWh/m2 za rok

Kontaktovat makléře

Máte zájem o tento dům?

Tímto, v souladu s nařízením Evropského parlamentu a Rady (EU) 2016/679, v platném znění, prohlašuji, že mi je alespoň 16 let a uděluji tak svůj souhlas se zpracováním zadaných údajů (jméno, telefon, e-mail, ip adresa) společnosti B3 Technology, s.r.o., IČ: 07330600, se sídlem Novostavby 126/23, 435 11 Lom (správce dat), za účelem předání dotazu z tohoto formuláře Vámi vybranému inzerentovi a zpětného kontaktování mé osoby. Osobní údaje bude správce zpracovávat manuálně i automaticky přímo prostřednictvím svých zaměstnanců. Informace předané tímto formulářem budou uloženy v databázi správce maximálně po dobu 10 let. Odvolání souhlasu s uložením a zpracováním poskytnutých dat lze e-mailem na info@bydlisnami.cz. V případě podezření na neoprávněné použití Vámi poskytnutých údajů máte právo předat podnět k šetření Úřadu pro ochranu osobních údajů. Více informací
Chystáte se prodat nemovitost?
Pomůžeme Vám!

Inzerát si prohlédlo 6 lidí

Prodejce

Ing. Stanislava Tremlová

Ing. Stanislava Tremlová

Hlídací pes

Chcete dostávat emailem podobné nabídky prodeje rodinných domů v Horní Kalné?

Podobné nemovitosti