Pronájem kanceláře, Praha - Staré Město, Na Perštýně, 197 m2 (ID: 2613943)

Na Perštýně, Praha 1, Staré Město

96 000 Kč /za měsíc Získejte výhodnou HYPOTÉKU

(+ poplatky 1.250 Kč/os/měs, energie se přehlašují na nájemce, provize 1 nájem)

Doporučené firmy v Praze 1

Stěhovací služby

Výkup a prodej starého nábytku

Informace k nemovitosti

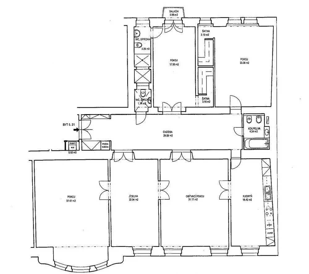
Dovoluji si Vám nabídnout k pronájmu prostorný reprezentativní byt 5+1 s malým balkonem s možností využití jako kanceláře v centru Prahy v ul. Na Perštýně. Byt se nachází v těsné blízkosti zastávky Národní třída a Můstek, přímo u obchodního domu Máj a Quadrio.
Byt je situován ve 3.patře renovovaného secesního domu s výtahem. Celková plocha činí 197 m2 a sestává ze vstupní haly, 5t- místností, kuchyně, 2x koupelnou, 3x WC. Kuchyně je vybavena kuch. linkou se zabudovanými spotřebiči, Vytápění je samostatným plynovým kotlem. V bytě jsou masivní parkety, zdobené štukové stropy, dvoukřídlé dveře.
Byt lze využít k bydlení i k podnikání. Pronájem za účelem krátkodobých podnájmů není možný.
Měsíční paušál na domovní služby činí 900 Kč/os, záloha na vodu je 350 Kč/os/měs., elektřina a plyn v bytě se přehlašuje na nájemníka. Majitelé požadují kauci ve výši 2 nájmů, provize je 1 nájem.
K dispozici od července 2026, prohlídky jsou možné po dohodě předem.

Parametry nemovitosti

Cena
96 000 Kč /za měsíc
Poznámka k ceně
+ poplatky 1.250 Kč/os/měs, energie se přehlašují na nájemce, provize 1 nájem
Aktualizováno
21. 4. 2026
Adresa
Na Perštýně, Praha 1, Staré Město
ID
59
Stavba
Cihlová
Stav objektu
Velmi dobrý
Typ objektu
Patrový
Užitná plocha
197 m2
Bezbarierový přístup

Kontaktovat makléře

Máte zájem o tuto nemovistost?

Tímto, v souladu s nařízením Evropského parlamentu a Rady (EU) 2016/679, v platném znění, prohlašuji, že mi je alespoň 16 let a uděluji tak svůj souhlas se zpracováním zadaných údajů (jméno, telefon, e-mail, ip adresa) společnosti B3 Technology, s.r.o., IČ: 07330600, se sídlem Novostavby 126/23, 435 11 Lom (správce dat), za účelem předání dotazu z tohoto formuláře Vámi vybranému inzerentovi a zpětného kontaktování mé osoby. Osobní údaje bude správce zpracovávat manuálně i automaticky přímo prostřednictvím svých zaměstnanců. Informace předané tímto formulářem budou uloženy v databázi správce maximálně po dobu 10 let. Odvolání souhlasu s uložením a zpracováním poskytnutých dat lze e-mailem na info@bydlisnami.cz. V případě podezření na neoprávněné použití Vámi poskytnutých údajů máte právo předat podnět k šetření Úřadu pro ochranu osobních údajů. Více informací
Chystáte se prodat nemovitost?
Pomůžeme Vám!

Inzerát si prohlédlo 0 lidí

Prodejce

Vanda Vlašánková

Vanda Vlašánková

Hlídací pes

Chcete dostávat emailem podobné nabídky pronájmu kanceláří v Praze 1?

Podobné nemovitosti