Soccer reality

Prodej rodinného domu, Stříbrná Skalice, osada Na Hradcích, 158 m2 (ID: 2614520)

osada Na Hradcích, Stříbrná Skalice

13 470 000 Kč /za nemovitost HYPOTÉKA od 60 203 Kč /za měsíc

(cena včetně provize RK a kompletního právního servisu)

Doporučené firmy v Stříbrné Skalici

Informace k domu

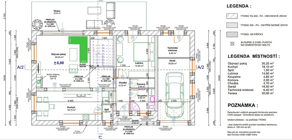
Nabízím k prodeji zkolaudovanou novostavbu RD s garáží a pěkným velkým pozemkem na kopci nad údolím řeky Sázavy ve Stříbrné Skalici, 40 km od Prahy.

Dům má dispozici 5+1 se zděnou garáží, 2 terasami, 2 koupelnami, technickou místností a komorou. V přízemí domu je prostorný obývací pokoj s krbovými kamny a francouzskými dveřmi na první terasu (30 m2)orientovanou na zahradu a na západ. Na něj navazuje částečně oddělená kuchyně se špajzkou. Dále je zde ložnice, koupelna se sprchovým koutem a WC, komora, vstupní chodba a schodiště do patra. V patře jsou 3 prostorné ložnice (21, 21 a 22 m2), šatna, druhá koupelna s vanou, sprchovým koutem a WC a další velká terasa (31,5 m2) s krásným výhledem do okolní přírody. Součástí domu je také zděná garáž (18 m2) s oddělenou technickou místností, kde je umístěn elektrokotel zn. Protherm, bojler zn. Dražice a akumulační nádrž o objemu 280 l.

Dům je zděný z tvárnic Porfix premium s další vnější izolací 15 cm a střešní krytina je z betonových tašek. Okna jsou plastová 5ti komorová s trojskly a mají vnitřní barvu bílou a vnější s fólií v barvě dřeva. Vstupní dveře i sekční garážová vrata jsou také z plastu v barvě dřeva. V celém domě je elektrické podlahové vytápění a také radiátory napojené jak na elektrokotel tak na krbovou vložku s výměníkem umístěnou v obývacím pokoji. Ve výměníku se ohřívá nejen vodu v radiátorech, ale také v bojleru. Stropy jsou ze sádrokartonu a ložnice v podkroví mají dřevěnými palubkami obložené šikmé plochy. Podlahy jsou plovoucí s dekorem dřeva, v koupelnách je kvalitní a stylová dlažba a sanita. Vnitřní dveře jsou obložkové s dekorem světlého dřeva. Dům má hotovou finální fasádu ze tří stran. Na terasách je položená dlažba a vnitřní i vnější zábradlí je z nerezu.

Dům má vlastní ca 100 m hluboký vrt vody s dobrou pitnou vodou, jímku o objemu 12 m3 na odpad z domu a dále ještě dvě nádrže na dešťovou vodu. Pozemek má celkovou výměru 1219 m2, má obdélníkový tvar o stranách 23x52 m a je mírně svažitý. Příjezd k domu je od hlavní silnice po nové asfaltové komunikaci a je mimo obecní pozemky zajištěn věcným břemenem chůze a jízdy.

Základní občanská vybavenost je přímo v obci (obchody, lékař, MŠ, ZŠ, pošta, restaurace). Stříbrná Skalice má přímé autobusové spojení s Prahou (Háje) a autem jste po dálnici D1 na okraji Prahy za 35 min. Obec je i turisty vyhledávanou oblastí s množstvím tras nejen pro ně, ale i cyklisty, vodáky nebo rybáře díky řece Sázavě, která je vzdušnou čarou pár desítek metrů od domu. Jedná se o ideální dům pro velkou rodinu nebo soužití 2 generační rodiny. Doporučuji prohlídku!

Parametry domu

Cena
13 470 000 Kč /za nemovitost Spočítat hypotéku
Poznámka k ceně
cena včetně provize RK a kompletního právního servisu
Aktualizováno
22. 4. 2026
Adresa
osada Na Hradcích, Stříbrná Skalice
Stavba
Cihlová
Stav objektu
Novostavba
Vybaveno
Ne
Druh objektu
Samostatný
Lokalita objektu
Klidná část obce
Užitná plocha
158 m2
Zastavěná plocha
182 m2
Podlahová plocha
243 m2
Plocha pozemku
1219 m2
Třída energetické náročnosti
B - Velmi úsporná
Elektřina
230V
Odpad
Jímka
Komunikace
Asfaltová
Telekomunikace
Internet
Doprava
Vlak, Dálnice, Silnice, Autobus
Voda
Studna
Topné těleso
Podlahové vytápění, Radiátory, Krb
Zdroj topení
Elektrokotel, Krb
Zdroj teplé vody
Elektrokotel
Garáž
Výtah
Bezbarierový přístup

Kontaktovat makléře

Realitní kancelář

Pavlína Bolfová

Benediktská 688/6, Praha, Staré Město

Chystáte se prodat nemovitost?
Pomůžeme Vám!

Máte zájem o tento dům?

Tímto, v souladu s nařízením Evropského parlamentu a Rady (EU) 2016/679, v platném znění, prohlašuji, že mi je alespoň 16 let a uděluji tak svůj souhlas se zpracováním zadaných údajů (jméno, telefon, e-mail, ip adresa) společnosti B3 Technology, s.r.o., IČ: 07330600, se sídlem Novostavby 126/23, 435 11 Lom (správce dat), za účelem předání dotazu z tohoto formuláře Vámi vybranému inzerentovi a zpětného kontaktování mé osoby. Osobní údaje bude správce zpracovávat manuálně i automaticky přímo prostřednictvím svých zaměstnanců. Informace předané tímto formulářem budou uloženy v databázi správce maximálně po dobu 10 let. Odvolání souhlasu s uložením a zpracováním poskytnutých dat lze e-mailem na info@bydlisnami.cz. V případě podezření na neoprávněné použití Vámi poskytnutých údajů máte právo předat podnět k šetření Úřadu pro ochranu osobních údajů. Více informací
Chystáte se prodat nemovitost?
Pomůžeme Vám!

Inzerát si prohlédlo 1 lidí

Prodejce

Pavlína Bolfová

Pavlína Bolfová

Hlídací pes

Chcete dostávat emailem podobné nabídky prodeje rodinných domů v Stříbrné Skalici?

Podobné nemovitosti