Prodej rodinného domu, Brno, Slatinská, 314 m2

Slatinská, Brno, Židenice

21 550 000 Kč /za nemovitost HYPOTÉKA od 96 315 Kč /za měsíc

(včetně odměny RK a právních služeb)

Doporučené firmy v Brně

Informace k domu

Nabízíme výjimečný rodinný dům, který není jen nemovitostí, ale promyšleným projektem budoucího bydlení. Koncový řadový dům z roku 1968 stojí na úpatí Bílé hory v klidné části Židenic. Původní cihlová stavba s kamennými prvky, krbem a netradičními výškovými úrovněmi má výrazný charakter.

Současní majitelé pro něj nechali zpracovat kompletní architektonickou studii rekonstrukce, která je součástí prodeje. Kupující tak získává dům s historií i jasnou vizí moderní přestavby.

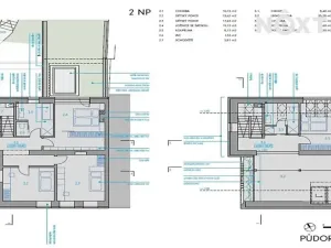
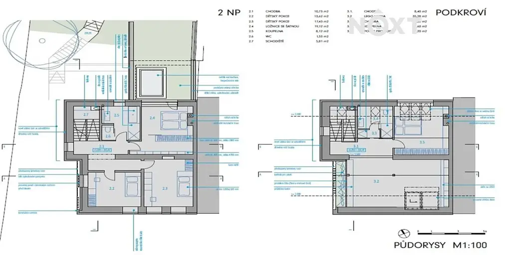
Dům má 3 nadzemní podlaží, plnohodnotný suterén, zahradu orientovanou na jih a celkovou užitnou plochu 314,2 m². Dispozice 6+2 a více nabízí široké možnosti pro rodinné i vícegenerační bydlení.

Technické parametry:
- 1.PP: 86,75 m²
- 1.NP: 86,29 m²
- 2.NP: 70,35 m²
- podkroví: 70,81 m²
- zastavěná plocha: 135,72 m²
- objem stavby: 1 430 m³
- parcely: 4570/1 a 4570/2, k.ú. Židenice
- stav: před rekonstrukcí

Suterén je navržen pro dvě garážová stání a praktické zázemí.
První patro tvoří hlavní obytná část s kuchyní, jídelnou, obývacím prostorem, krbem, kuchyňským ostrůvkem, venkovní kuchyní a přímým vstupem na dvorek.
Součástí je i samostatný salon, který lze využít jako pracovnu nebo další bytovou jednotku.
Druhé patro nabízí ložnici rodičů, dětské pokoje a koupelnu.
Podkroví přidává pokoj pro hosty a atraktivní výhled na panorama Brna.

Velkým benefitem je členitá zahrada s terasami, altánem, ohništěm, bazénkem a dostatkem soukromí.
Jižní orientace zajišťuje světlo i krásné výhledy.

Lokalita nabízí školy, školky, obchody, služby, sportoviště i rychlé spojení do centra Brna.
Blízkost Bílé hory přidává kontakt s přírodou a dlouhodobý investiční potenciál.

Proč právě tento dům?
- součástí prodeje je detailně zpracovaná architektonická studie rekonstrukce včetně stavebního povolení
- výjimečných 314 m² užitné plochy v širším centru Brna
- dvě garážová stání – v této lokalitě velmi vzácný benefit
- možnost vícegeneračního bydlení nebo kombinace bydlení a práce
- autentické prvky původní stavby v kombinaci s moderní architekturou
- zahrada s altánem, venkovní kuchyní, ohništěm a bazénkem
- výhled na Brno a bezprostřední blízkost zeleně

Pokud hledáte rodinný dům s charakterem, velkorysým prostorem a potenciálem vytvořit skutečně výjimečné bydlení,

Nemovitost je vhodná také jako dlouhodobá investice v lokalitě, kde poptávka po kvalitním rodinném bydlení stabilně roste. Pro komunikaci uvádějte evidenční číslo zakázky N117588.

Parametry domu

Cena
21 550 000 Kč /za nemovitost Spočítat hypotéku
Poznámka k ceně
včetně odměny RK a právních služeb
Aktualizováno
27. 4. 2026
Adresa
Slatinská, Brno, Židenice
ID
N117588
Stavba
Cihlová
Stav objektu
Před rekonstrukcí
Vybaveno
Ne
Druh objektu
Rohový
Lokalita objektu
Klidná část obce
Užitná plocha
314 m2
Plocha pozemku
482 m2
Třída energetické náročnosti
G - Mimořádně nehospodárná
Plyn
Plynovod
Odpad
Veřejná kanalizace
Komunikace
Asfaltová
Voda
Vodovod
Garáž
Sklep
Bezbarierový přístup
Parkování

Kontaktovat makléře

Realitní kancelář

NEXT REALITY VYŠKOV

Smetanovo nábřeží 785/61, Vyškov

Chystáte se prodat nemovitost?
Pomůžeme Vám!

Máte zájem o tento dům?

Tímto, v souladu s nařízením Evropského parlamentu a Rady (EU) 2016/679, v platném znění, prohlašuji, že mi je alespoň 16 let a uděluji tak svůj souhlas se zpracováním zadaných údajů (jméno, telefon, e-mail, ip adresa) společnosti B3 Technology, s.r.o., IČ: 07330600, se sídlem Novostavby 126/23, 435 11 Lom (správce dat), za účelem předání dotazu z tohoto formuláře Vámi vybranému inzerentovi a zpětného kontaktování mé osoby. Osobní údaje bude správce zpracovávat manuálně i automaticky přímo prostřednictvím svých zaměstnanců. Informace předané tímto formulářem budou uloženy v databázi správce maximálně po dobu 10 let. Odvolání souhlasu s uložením a zpracováním poskytnutých dat lze e-mailem na info@bydlisnami.cz. V případě podezření na neoprávněné použití Vámi poskytnutých údajů máte právo předat podnět k šetření Úřadu pro ochranu osobních údajů. Více informací
Chystáte se prodat nemovitost?
Pomůžeme Vám!

Inzerát si prohlédlo 0 lidí

Prodejce

Lukáš Rychnovský

Lukáš Rychnovský

Hlídací pes

Chcete dostávat emailem podobné nabídky prodeje rodinných domů v Brně?

Podobné nemovitosti