Soccer reality

Prodej pozemku pro bydlení, Brázdim, 503 m2

Starý Brázdim

6 800 560 Kč /za nemovitost HYPOTÉKA od 30 394 Kč /za měsíc

(Včetně všech služeb RK)

Doporučené firmy v Brázdimi

Informace k pozemku

Nabízím vám jedinečnou příležitost ke koupi stavebního pozemku o velikosti 503 m2 v klidné obci Brázdim, jen pár minut od Prahy. Pozemek se prodává včetně projektu a platného stavebního povolení na moderní rodinný dům, takže můžete začít stavět okamžitě.

K dispozici jsou navíc ještě dva sousední pozemky o výměrách 541 m2 a 520 m2 — ideální například pro rodinu nebo investici.

Pozemek B (prostřední pozemek) má výměru 503 m2 a stejně jako ostatní dva je kompletně zasíťovaný - veřejný vodovod, kanalizace a elektřina.
Velkým benefitem je také vlastní studna, která zvyšuje komfort i soběstačnost bydlení.

Součástí prodeje je kompletní projekt domu, který můžete realizovat podle plánu, nebo si stavbu nechat dokončit současným majitelem. Samozřejmě je zde i prostor pro úpravy dle vašich představ.

Hlavní přednosti:
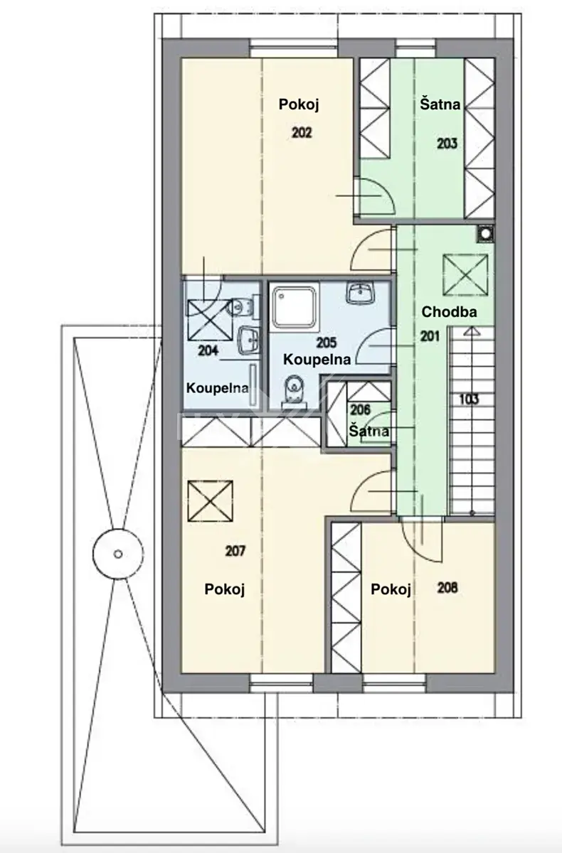
Schválený projekt rodinného domu:
- Dvoupodlažní dům se sedlovou střechou
- Dispozice: prakticky řešené 5+kk, 3 koupelny pro maximální komfort rodiny
- Užitná plocha domu: 153,08 m2
- Zastavěná plocha: 118,62 m2
Garáž: 21 m2 + jedno venkovní parkovací místo

Moderní technologie zahrnují:
- Tepelné čerpadlo vzduch–voda
- Podlahové topení
- Izolační trojskla

Ovocné stromy na pozemku: 2x hruška Williams, jabloň Ontario

Lokalita nabízí ideální kombinaci klidného bydlení a skvělé dostupnosti. V bezprostřední blízkosti je obecní úřad, potraviny i dětské hřiště, nedaleko pak fotbalové hřiště. Mateřská a základní škola se nachází ve Velké Brázdimi (cca 1 km), kam se pohodlně dostanete i příjemnou cestou mezi poli.

Výborné dopravní spojení do Prahy zajišťují pravidelné autobusové linky — do Čakovic se dostanete za 15 minut, na metro v Letňanech přibližně za 25 minut.

Nemovitost je v osobním vlastnictví a lze ji tedy financovat hypotečním úvěrem, který Vám zdarma pomůžeme vyřídit za nejvýhodnějších podmínek na trhu

Zní to jako příležitost přesně pro vás? Kontaktujte mě pro více informací a prohlídku!

Parametry pozemku

Cena
6 800 560 Kč /za nemovitost Spočítat hypotéku
Poznámka k ceně
Včetně všech služeb RK
Aktualizováno
29. 4. 2026
Adresa
Starý Brázdim
ID
2206
Lokalita objektu
Klidná část obce
Plocha pozemku
503 m2
Odpad
Veřejná kanalizace
Komunikace
Asfaltová
Doprava
Silnice, MHD, Autobus
Voda
Vodovod, Studna

Kontaktovat makléře

Máte zájem o tento pozemek?

Tímto, v souladu s nařízením Evropského parlamentu a Rady (EU) 2016/679, v platném znění, prohlašuji, že mi je alespoň 16 let a uděluji tak svůj souhlas se zpracováním zadaných údajů (jméno, telefon, e-mail, ip adresa) společnosti B3 Technology, s.r.o., IČ: 07330600, se sídlem Novostavby 126/23, 435 11 Lom (správce dat), za účelem předání dotazu z tohoto formuláře Vámi vybranému inzerentovi a zpětného kontaktování mé osoby. Osobní údaje bude správce zpracovávat manuálně i automaticky přímo prostřednictvím svých zaměstnanců. Informace předané tímto formulářem budou uloženy v databázi správce maximálně po dobu 10 let. Odvolání souhlasu s uložením a zpracováním poskytnutých dat lze e-mailem na info@bydlisnami.cz. V případě podezření na neoprávněné použití Vámi poskytnutých údajů máte právo předat podnět k šetření Úřadu pro ochranu osobních údajů. Více informací
Chystáte se prodat nemovitost?
Pomůžeme Vám!

Inzerát si prohlédlo 0 lidí

Prodejce

Ing. Denisa Valentová

Ing. Denisa Valentová

Hlídací pes

Chcete dostávat emailem podobné nabídky prodeje pozemků pro bydlení v Brázdimi?

Podobné nemovitosti