Prodej rodinného domu, Moravská Nová Ves, Lipová, 97 m2 (ID: 2623996)

Lipová, Moravská Nová Ves

4 290 000 Kč /za nemovitost HYPOTÉKA od 19 174 Kč /za měsíc
Doporučené firmy v Moravské Nové Vsi

Informace k domu

Ve výhradním zastoupení majitele Vám nabízím k prodeji přízemní rodinný dům o dispozici 3+kk v obci Moravská Nová Ves, v ulici Lipová, jihomoravský kraj, cca 12 km od Břeclavi a cca 15 km od Hodonína.
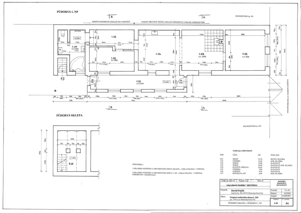
Ceková plocha pozemku je 326 m², z toho zastavěná plocha je 123 m².
Celková užitná plocha je 186,1 m², z toho využívané přízemí má užitnou plochu 96,6 m², včetně sklepa o výměře 12,3 m², který je pod zadní částí domu. Jinak dům není podsklepený.
Prostorný půdní prostor je ideální pro umístění dalšího bytu nebo aspoň pár místností.
Po vstupu do nemovitosti Vás uvítá dvorek, kde můžete často sedávat ve stínu domu, vlastní dům a vzadu za domem je malá zahrádka.
V zadní části domu je malá zděná šopa, - zemědělská stavba která sice je ve vlastnictví České republiky, ale pozemek pod stavbou je ve vlastnictví majitele nemovitosti.
Z přední ulice Lipová je do nemovitosti nová brána s brankou.
Za zadní části zahrady je druhý východ z nemovitosti novou brankou, plot je nový, betonový.
Dům prošel celkovou rekonstrukcí v roce 2021 a 2022, po devastujícím tornádu, včetně rekonstrukce rozvodů elektřiny, vodoinstalace i kanalizace.
Na rekonstrukci po tornádu byla majiteli státem poskytnutá dotace, formou SFPI, kupující musí souhlasit s tím, že do roku 2031 neprodá tuto nemovitost.
Dům má novou střechu se střešní krytinou KM-Beta.
Vodovod i kanalizace jsou veřejné.
Zdroj tepla pro dům jsou krbová kamna a infrapanely na stropech všech místností.
Dům se prodává vybavený nábytkem, který je vyrobený na míru, včetně kuchyňské linky s lednicí a s vestavěnými elektrospotřebiči sklokeramická deska, trouba, myčka, mikrovlnná trouba a digestoř zn. Midea.
V koupelně je rohová vana se zástěnou, umyvadlo, WC, automatická pračka a pro ohřev teplé vody je zde cca 100 litrový elektrický bojler Ariston.
Parkovat je možno před domem, na ulici, na dvorku domu může parkovat jedno osobní vozidlo.
Než bude vytvořen PENB, budeme zatím vykazovat třídu "G".
Pomůžeme Vám získat financování této nemovitosti.
Majitel si vyhrazuje právo prodat svou nemovitost nejvýhodnější nabídce.
Velkou výhodou obce Moravská nová Ves je dobrá dopravní dostupnost – pravidelné autobusové i vlakové spojení v rámci Jihomoravského kraje, snadná dostupnost Břeclavi i Hodonína, stejně jako rychlé napojení směrem na Slovensko (Hraniční přechod Hodonín–Holíč).
Obec je oblíbená jak pro klidné rodinné bydlení, tak pro vinařskou turistiku a volnočasové aktivity – okolí nabízí cyklostezky, vinařské stezky i kulturní akce během celého roku.

Parametry domu

Cena
4 290 000 Kč /za nemovitost Spočítat hypotéku
Aktualizováno
30. 4. 2026
Adresa
Lipová, Moravská Nová Ves
ID
J12579
Stavba
Cihlová
Stav objektu
Dobrý
Vybaveno
Ano
Druh objektu
Rohový
Lokalita objektu
Klidná část obce
Užitná plocha
97 m2
Zastavěná plocha
123 m2
Podlahová plocha
186 m2
Plocha pozemku
326 m2
Třída energetické náročnosti
G - Mimořádně nehospodárná
Elektřina
400V
Odpad
Veřejná kanalizace
Topení
Lokální tuhá paliva, Jiné
Komunikace
Asfaltová
Doprava
Silnice, Autobus
Voda
Vodovod
Topné těleso
Infrapanel, Krbová kamna
Zdroj topení
Infrapanel, Krbová kamna
Zdroj teplé vody
Bojler - elektro
Sklep
Výtah
Bezbarierový přístup
Parkování

Kontaktovat makléře

Realitní kancelář

PETR FOJTÍK reality, partner Justo

Masarykovo náměstí 34, Uherské Hradiště

Chystáte se prodat nemovitost?
Pomůžeme Vám!

Máte zájem o tento dům?

Tímto, v souladu s nařízením Evropského parlamentu a Rady (EU) 2016/679, v platném znění, prohlašuji, že mi je alespoň 16 let a uděluji tak svůj souhlas se zpracováním zadaných údajů (jméno, telefon, e-mail, ip adresa) společnosti B3 Technology, s.r.o., IČ: 07330600, se sídlem Novostavby 126/23, 435 11 Lom (správce dat), za účelem předání dotazu z tohoto formuláře Vámi vybranému inzerentovi a zpětného kontaktování mé osoby. Osobní údaje bude správce zpracovávat manuálně i automaticky přímo prostřednictvím svých zaměstnanců. Informace předané tímto formulářem budou uloženy v databázi správce maximálně po dobu 10 let. Odvolání souhlasu s uložením a zpracováním poskytnutých dat lze e-mailem na info@bydlisnami.cz. V případě podezření na neoprávněné použití Vámi poskytnutých údajů máte právo předat podnět k šetření Úřadu pro ochranu osobních údajů. Více informací
Chystáte se prodat nemovitost?
Pomůžeme Vám!

Inzerát si prohlédlo 0 lidí

Prodejce

Ing. Petr Fojtík

Ing. Petr Fojtík

Hlídací pes

Chcete dostávat emailem podobné nabídky prodeje rodinných domů v Moravské Nové Vsi?

Podobné nemovitosti