Pronájem obchodního prostoru, Velká Bíteš, 88 m2 (ID: 2148912)

Velká Bíteš

30 300 Kč /za měsíc Získejte výhodnou HYPOTÉKU

(Včetně energii)

Doporučené firmy v Velké Bíteši

Informace k nemovitosti

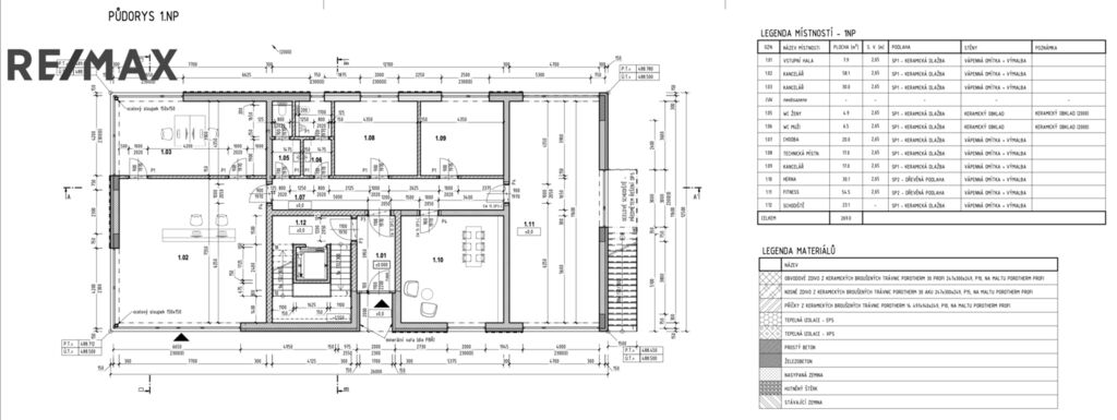
Pokud hledáte ideální prostor pro vaše podnikání nebo jiné profesionální aktivity, máme pro vás skvělou nabídku! V uzavřeném areálu ve Velké Bíteši je k dispozici prostor o velikosti 88 m² k teto jednotce je navíc k dispozici kuchyňka a 2 x toaleta. Cena za pronájem činí 30.300 Kč měsíčně, a zahrnuje nájem, topení, elektřinu a vodu. Na půdorysném plánku budovy se jedná o prostor 1.02 a 1.03 v současné době je prostor bez příčky.

Prostor je součástí moderní budovy, ve které najdete i společné toalety a kuchyňku. Areál je uzavřený, s dostatkem parkovacích míst, zeleně a relaxačních zón, což zajišťuje klidné a pohodlné prostředí pro vás i vaše klienty.

Tento prostor je ideální pro různorodé využití, ať už potřebujete kanceláře, showroom nebo jiné profesionální zázemí. Areál je strategicky umístěn v těsné blízkosti dálnice D1 (exit Devět Křížů), což umožňuje snadný přístup jak pro vás, tak pro vaše klienty. Klidné okolí plné zeleně vytváří příjemnou atmosféru a zázemí.

Celý areál zaujímá plochu 6 189 m² a zahrnuje dvě moderní dvoupatrové budovy s podlahovou plochou 550 m² každá, celkem tedy 1 100 m². Tyto prostory lze flexibilně upravit podle vašich potřeb – od kanceláří a showroomů po bytové jednotky. Nabízí se také možnost pronajmout celou budovu nebo pouze jednotlivé jednotky.

Areál je vhodný pro širokou škálu podnikatelských záměrů, jako jsou vzorkové prodejny, kanceláře nebo showroomy. S flexibilními možnostmi pronájmu a přizpůsobení prostor podle vašich představ se tento areál může stát ideálním místem pro vaši činnost.

Pro bližší informace a domluvení prohlídky nás neváhejte kontaktovat. Pronajímající si vyhrazuje právo vybrat nájemce na základě jím zvolených kritérií.

Parametry nemovitosti

Cena
30 300 Kč /za měsíc
Poznámka k ceně
Včetně energii
Aktualizováno
11. 4. 2026
Adresa
Velká Bíteš
ID
144-NP02890
Stavba
Cihlová
Stav objektu
Novostavba
Typ objektu
Patrový
Lokalita objektu
Klidná část obce
Užitná plocha
88 m2
Podlahová plocha
101 m2
Třída energetické náročnosti
B - Velmi úsporná
Elektřina
230V, 400V
Odpad
Veřejná kanalizace
Komunikace
Asfaltová
Telekomunikace
Internet, Kabelové rozvody
Doprava
Vlak, Dálnice, Silnice, Autobus
Voda
Vodovod
Převod do OV
Parkování

Kontaktovat makléře

Realitní kancelář

Logo RE/MAX Stars

RE/MAX Stars

Karlovo nám. 15/9, Třebíč

Chystáte se prodat nemovitost?
Pomůžeme Vám!

Máte zájem o tuto nemovistost?

Tímto, v souladu s nařízením Evropského parlamentu a Rady (EU) 2016/679, v platném znění, prohlašuji, že mi je alespoň 16 let a uděluji tak svůj souhlas se zpracováním zadaných údajů (jméno, telefon, e-mail, ip adresa) společnosti B3 Technology, s.r.o., IČ: 07330600, se sídlem Novostavby 126/23, 435 11 Lom (správce dat), za účelem předání dotazu z tohoto formuláře Vámi vybranému inzerentovi a zpětného kontaktování mé osoby. Osobní údaje bude správce zpracovávat manuálně i automaticky přímo prostřednictvím svých zaměstnanců. Informace předané tímto formulářem budou uloženy v databázi správce maximálně po dobu 10 let. Odvolání souhlasu s uložením a zpracováním poskytnutých dat lze e-mailem na info@bydlisnami.cz. V případě podezření na neoprávněné použití Vámi poskytnutých údajů máte právo předat podnět k šetření Úřadu pro ochranu osobních údajů. Více informací
Chystáte se prodat nemovitost?
Pomůžeme Vám!

Inzerát si prohlédlo 12 lidí

Prodejce

Miroslav Prokeš

Miroslav Prokeš

Hlídací pes

Chcete dostávat emailem podobné nabídky pronájmu obchodních prostor v Velké Bíteši?

Podobné nemovitosti