Prodej rodinného domu, Hýskov, K Jakubině, 142 m2 (ID: 2198960)

K Jakubině, Hýskov, okres beroun

12 990 000 Kč /za nemovitost HYPOTÉKA od 58 057 Kč /za měsíc

(Cena je uvedena včetně provize a právního servisu včetně advokátní úschovy kupní ceny)

Doporučené firmy v Hýskově

Informace k domu

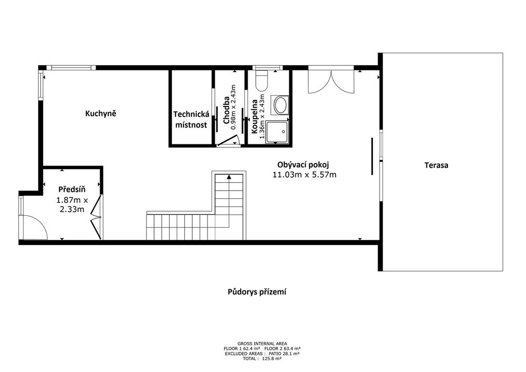
Společnost REALITY Brodan & Kutzendörfer Vám exkluzivně nabízí moderní novostavbu rodinného domu v obci Hýskov u Berouna, která je součástí architektonicky zdařilého projektu Viladomy Jakubinka. Tento prostorný dům s dispozicí 4+1 a obytnou plochou 142 m² poskytuje komfortní bydlení ve dvou podlažích.

Výhody této nemovitosti:
Klidná lokalita na okraji obce, pod lesem
Pozemek 358 m² – oplocená zahrada, slunečná terasa a parkování pro 2 vozy na vlastním pozemku
Moderní dispozice – obývací pokoj s dvojicí francouzských oken, kuchyň s výhledem do zeleně, 2 koupelny, technická místnost, 3 ložnice
Nízké provozní náklady – podlahové teplovodní vytápění elektrokotlem s možností regulace v každé místnosti, rekuperace vzduchu
Komín a příprava na krbová kamna
Prvotřídní materiály – dřevěné obložení domu, žulová dlažba kolem domu
Příprava na předokenní žaluzie či rolety
Domácí úpravna vody, nádrž na dešťovou vodu a zahradní domek
Dokončené terénní úpravy – dům je připraven k okamžitému nastěhování

Lokalita ideální pro rodinu
Hýskov je skvělým místem pro klidné rodinné bydlení v dosahu přírody a zároveň výborně dostupným do města:
Beroun – 7 minut jízdy (napojení na dálnici D5)
Praha – do 30 minut autem
Veškerá občanská vybavenost v místě – obchod, lékař, škola, školka, restaurace, sportoviště (hřiště, tenisové kurty)
Malebná řeka Berounka přímo v obci – ideální pro plavce, rybáře i cyklisty (cyklostezka podél řeky)
Obklopeno Křivoklátskými lesy – oblíbená rekreační oblast

Nabízíme možnost financování prostřednictvím nejvýhodnějších hypotečních úvěrů, případně financování bez prokazování příjmů.
Dovoluji si vás pozvat na prohlídku tohoto krásného domu a těším se na osobní setkání s vámi. Rád vás nejenom provedu, ale samozřejmě poskytnu veškeré další informace a zodpovím dotazy. Neváhejte mne kontaktovat.
Disclaimer: Uvedené výměry jsou orientační. V případě více zájemců bude nemovitost prodána nejlepší nabídce a majitel si vyhrazuje právo vybrat kupujícího na základě jím zvolených kritérií. Veškeré zveřejněné údaje obsažené v tomto inzerátu mají pouze informativní charakter a nejsou nabídkou ve smyslu § 1731 nebo § 1732 občanského zákoníku, ani se nejedná o veřejný příslib dle § 1733 občanského zákoníku.

Parametry domu

Cena
12 990 000 Kč /za nemovitost Spočítat hypotéku
Poznámka k ceně
Cena je uvedena včetně provize a právního servisu včetně advokátní úschovy kupní ceny
Aktualizováno
25. 10. 2025
Adresa
K Jakubině, Hýskov, okres beroun
ID
939356
Stavba
Cihlová
Stav objektu
Novostavba
Vybaveno
Ne
Typ objektu
Patrový
Druh objektu
Řadový
Vlastnictví
Osobní
Užitná plocha
122 m2
Zastavěná plocha
84 m2
Podlahová plocha
142 m2
Plocha pozemku
369 m2
Třída energetické náročnosti
B - Velmi úsporná
Ukazatel energetické náročnosti
165 kWh/m2 za rok
Elektřina
230V
Odpad
Veřejná kanalizace
Topení
Ústřední elektrické
Doprava
Vlak, Silnice, MHD, Autobus
Voda
Vodovod
Terasa
Parkování

Kontaktovat makléře

Máte zájem o tento dům?

Tímto, v souladu s nařízením Evropského parlamentu a Rady (EU) 2016/679, v platném znění, prohlašuji, že mi je alespoň 16 let a uděluji tak svůj souhlas se zpracováním zadaných údajů (jméno, telefon, e-mail, ip adresa) společnosti B3 Technology, s.r.o., IČ: 07330600, se sídlem Novostavby 126/23, 435 11 Lom (správce dat), za účelem předání dotazu z tohoto formuláře Vámi vybranému inzerentovi a zpětného kontaktování mé osoby. Osobní údaje bude správce zpracovávat manuálně i automaticky přímo prostřednictvím svých zaměstnanců. Informace předané tímto formulářem budou uloženy v databázi správce maximálně po dobu 10 let. Odvolání souhlasu s uložením a zpracováním poskytnutých dat lze e-mailem na info@bydlisnami.cz. V případě podezření na neoprávněné použití Vámi poskytnutých údajů máte právo předat podnět k šetření Úřadu pro ochranu osobních údajů. Více informací
Chystáte se prodat nemovitost?
Pomůžeme Vám!

Inzerát si prohlédlo 11 lidí

Prodejce

Michal Kutzendörfer

Michal Kutzendörfer

Hlídací pes

Chcete dostávat emailem podobné nabídky prodeje rodinných domů v Hýskově?

Top nabídky

Podobné nemovitosti