Soccer reality

Prodej bytu 3+1, Brandýs nad Labem-Stará Boleslav - Brandýs nad Labem, Komenského nám., 113 m2

Komenského nám., Brandýs nad Labem-Stará Boleslav

7 190 000 Kč /za nemovitost HYPOTÉKA od 32 135 Kč /za měsíc
Doporučené firmy v Brandýse nad Labem

Informace k bytu

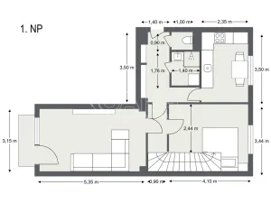
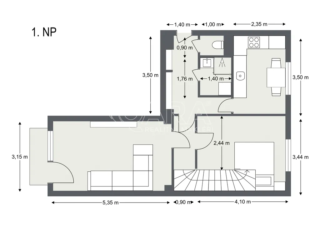
Nabízíme k prodeji mezonetový byt 3 + 1 ve 4. a 5. nadzemním podlaží budovy č.p. 1414, nacházející se v atraktivní lokalitě Brandýsa nad Labem, na ulici Komenského nám. Tento prostorný byt o celkové ploše 113 m² (užitná plocha 99 m²) je ideální volbou pro rodiny s dětmi, které hledají prostorné a příjemné prostředí pro život.
Byt disponuje částečným vybavením a prošel nedávnou renovací, v rámci které byla instalována plastová okna, nová koupelna a WC. Koupelna je vybavena sprchovým koutem, umyvadlovou skříňkou a pračkou. Okna jsou orientována na jiho-západ, což zajišťuje dostatek přirozeného světla a příjemnou atmosféru v celém bytě. V horním podlaží lze zrekonstruovat z prostorné chodby další místnost ( kancelář, pokoj atd).

V blízkosti nemovitosti se nachází vše, co rodiny potřebují. V dosahu jsou školky, základní školy, střední škola a Gymnázium, což usnadňuje každodenní rutinu rodičům s dětmi. Navíc uspokojíte potřeby vašich ratolestí díky blízkosti několika parků a dětských hřišť, kde si mohou hrát a trávit volný čas v bezpečném prostředí.
Součástí domu je i zahrádka, která slouží nejen jako místo pro odpočinek, ale i prostor pro dětské hry. K bytu náleží 2 prostorné sklepy o ploše 6 m2 a 6 m2.
V bytě najdete dostatek prostoru pro vytvoření dětských pokojů, nebo kanceláře, což ocení jak děti, tak i rodiče.
Parkovat lze na dvoře za domem.

Veškeré služby a občanská vybavenost jsou snadno dostupné, díky dobré dopravní infrastruktuře v oblasti. Skvělá dostupnost vlakového a autobusového spojení zaručuje pohodlné cestování do okolních měst či do Prahy.
Dům je ve velmi dobrém stavu a nabízí příjemné bydlení v klidné lokalitě, což je ideální pro rodinný život. Vytápění je zajištěno plynovým kotlem a komfortní ohřev vody rovněž.

V případě zájmu o prohlídku nás neváhejte kontaktovat.

Parametry bytu

Cena
7 190 000 Kč /za nemovitost Spočítat hypotéku
Aktualizováno
1. 3. 2026
Adresa
Komenského nám., Brandýs nad Labem-Stará Boleslav
ID
15101
Stavba
Smíšená
Stav objektu
Velmi dobrý
Patro
4. z 5
Vybaveno
Částečně
Lokalita objektu
Centrum obce
Vlastnictví
Osobní
Užitná plocha
99 m2
Zastavěná plocha
201 m2
Podlahová plocha
113 m2
Třída energetické náročnosti
F - Velmi nehospodárná
Plyn
Plynovod
Odpad
Veřejná kanalizace
Komunikace
Asfaltová
Telekomunikace
Internet
Doprava
Vlak, Silnice, Autobus
Balkon
Sklep

Kontaktovat makléře

Máte zájem o tento byt?

Tímto, v souladu s nařízením Evropského parlamentu a Rady (EU) 2016/679, v platném znění, prohlašuji, že mi je alespoň 16 let a uděluji tak svůj souhlas se zpracováním zadaných údajů (jméno, telefon, e-mail, ip adresa) společnosti B3 Technology, s.r.o., IČ: 07330600, se sídlem Novostavby 126/23, 435 11 Lom (správce dat), za účelem předání dotazu z tohoto formuláře Vámi vybranému inzerentovi a zpětného kontaktování mé osoby. Osobní údaje bude správce zpracovávat manuálně i automaticky přímo prostřednictvím svých zaměstnanců. Informace předané tímto formulářem budou uloženy v databázi správce maximálně po dobu 10 let. Odvolání souhlasu s uložením a zpracováním poskytnutých dat lze e-mailem na info@bydlisnami.cz. V případě podezření na neoprávněné použití Vámi poskytnutých údajů máte právo předat podnět k šetření Úřadu pro ochranu osobních údajů. Více informací
Chystáte se prodat nemovitost?
Pomůžeme Vám!

Inzerát si prohlédlo 30 lidí

Prodejce

Adéla Dvořáková

Adéla Dvořáková

Hlídací pes

Chcete dostávat emailem podobné nabídky prodeje bytů 3+1 v Brandýse nad Labem?

Podobné nemovitosti