Pronájem skladu, Hradec Králové - Pražské Předměstí, U Koruny, 153 m2

U Koruny, Hradec Králové, Pražské Předměstí

24 850 Kč /za měsíc Získejte výhodnou HYPOTÉKU

(+ DPH)

Doporučené firmy v Hradci Králové

Informace k nemovitosti

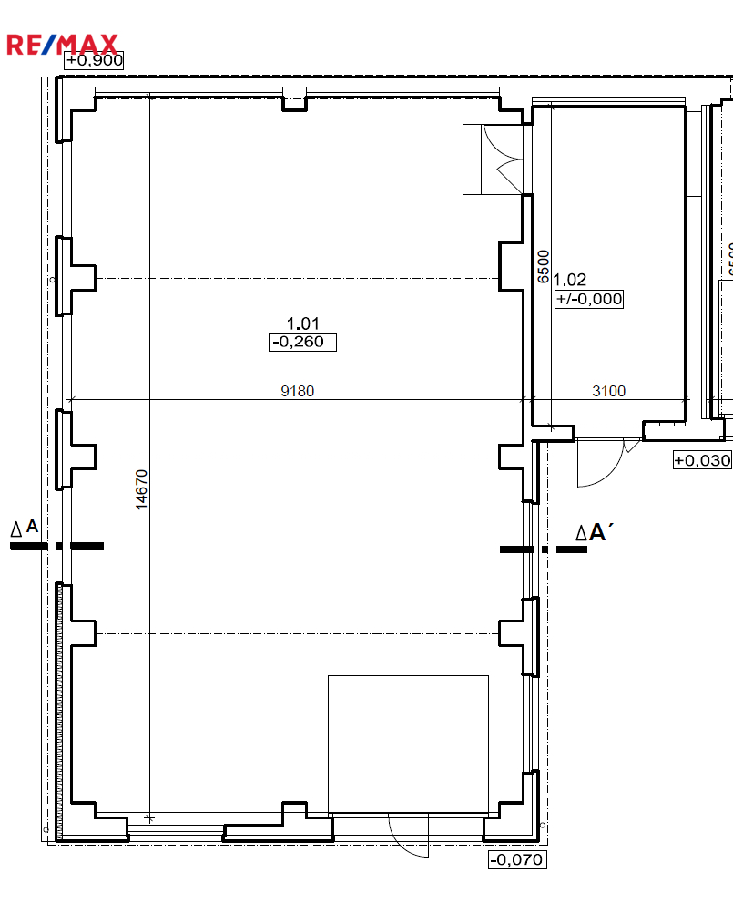
Rádi bychom Vám tímto nabídli možnost pronájmu nebytových prostor o celkové výměře 153 m², které mohou sloužit jako sklad nebo garáž. Vnitřní rozměry prostor jsou 14,67 m x 9,18 m (větší sklad) a 6,5 m x 3,1 m (menší sklad se samostatným vstupem). Vjezdová vrata 2,85 m výška x 3 m šířka.

Elektřina zavedena - samostatné měření spotřeby. Elektřina slouží i jako zdroj vytápění. Prostory jsou napojeny na bezpečnostní agenturu skrze bezpečnostní čidla uvnitř prostor a zároveň jsou pod dohledem kamerového systému.

Prostory se nachází v dobře dostupném areálu s dostatkem manipulační plochy - ulice U Koruny, Hradec Králové. Lokalita je skvěle dopravně obslužná - terminál HD, zastávky MHD, vlakové nádraží hned za rohem.

Měsíční nájemné za nebytové prostory činí 24 850,- Kč + DPH. Vratná kauce ve výši dvou nájmů. Provize RK jeden nájem + DPH. Volné dle domluvy - domluvte si termín prohlídky ještě dnes.

Parametry nemovitosti

Cena
24 850 Kč /za měsíc
Poznámka k ceně
+ DPH
Aktualizováno
26. 10. 2025
Adresa
U Koruny, Hradec Králové, Pražské Předměstí
ID
211-NP04313
Stavba
Cihlová
Stav objektu
Velmi dobrý
Typ objektu
Přízemní
Lokalita objektu
Centrum obce
Užitná plocha
153 m2
Zastavěná plocha
153 m2
Třída energetické náročnosti
G - Mimořádně nehospodárná
Elektřina
230V
Převod do OV

Kontaktovat makléře

Realitní kancelář

Logo RE/MAX Future

RE/MAX Future

U Koruny 1742/16, Hradec Králové

Chystáte se prodat nemovitost?
Pomůžeme Vám!

Máte zájem o tuto nemovistost?

Tímto, v souladu s nařízením Evropského parlamentu a Rady (EU) 2016/679, v platném znění, prohlašuji, že mi je alespoň 16 let a uděluji tak svůj souhlas se zpracováním zadaných údajů (jméno, telefon, e-mail, ip adresa) společnosti B3 Technology, s.r.o., IČ: 07330600, se sídlem Novostavby 126/23, 435 11 Lom (správce dat), za účelem předání dotazu z tohoto formuláře Vámi vybranému inzerentovi a zpětného kontaktování mé osoby. Osobní údaje bude správce zpracovávat manuálně i automaticky přímo prostřednictvím svých zaměstnanců. Informace předané tímto formulářem budou uloženy v databázi správce maximálně po dobu 10 let. Odvolání souhlasu s uložením a zpracováním poskytnutých dat lze e-mailem na info@bydlisnami.cz. V případě podezření na neoprávněné použití Vámi poskytnutých údajů máte právo předat podnět k šetření Úřadu pro ochranu osobních údajů. Více informací
Chystáte se prodat nemovitost?
Pomůžeme Vám!

Inzerát si prohlédlo 20 lidí

Prodejce

Jiří Samek

Jiří Samek

Hlídací pes

Chcete dostávat emailem podobné nabídky pronájmu skladů v Hradci Králové?

Podobné nemovitosti