Prodej ubytování, Loužnice, 561 m2 (ID: 2355147)

Loužnice

2 800 000 Kč /za nemovitost HYPOTÉKA od 12 514 Kč /za měsíc
Doporučené firmy v Loužnici

Rekonstrukce

Úklidové služby

Informace k nemovitosti

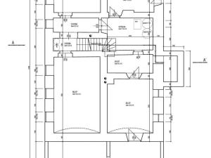
Nabízíme exkluzivně k prodeji rodinný dům se 3 byty a ateliérem. V 1. NP se nachází ateliér s koupelnou a WC o podlahové ploše 66 m2 a byt o dispozici 2+1+šatna se dvěma koupelnama a WC o podlahové ploše 74 m2. Ve 2. NP se nachází dva byty po částečné rekonstrukci-byt 2+1+šatna o podlahové ploše 69 m2 a byt 2+1+komora+šatna a dvě koupelny s WC o podlahové ploše 101 m2. Sklep, kde je technické zázemí má podlahovou plochu 183 m2. Objekt lze využívat k bydlení, pronajímání nebo jako sídlo firmy.

Podsklepenýodinný dům s garáží se zahradou o výměře 854 m2 se nachází v sevření mezi Českým Rájem, Jizerskými horami a Krkonošemi. Nachází se v údolí, jejímž středem protéká Kopaninský potok, na 105. kilometru silnice z Prahy do Harachova. Kompletní občanská vybavenost se nachází v Železném Brodě ve vzdálenosti 4 km.

Objekt je založen na kamenných základech s izolací proti vlhkosti, obvodové zdivo je smíšené kamenné a cihelné. Okna jsou v celém objektu vyměněná za plastová. Odpadní vody jsou svedeny do nově vybudované vlastní čističky odpadních vod. Voda přivedená z nově vybudovaného vrtu. Vytápění teplovodní s radiátory a kotlem na peletky-provedena kompletní rekonstrukce s novým automatickým kotlem ve sklepě-rozvody po destrukci mrazem byly demontovány.
Jelikož nemáme od majitele PENB, zákonná povinnost nám ukládá uvést zařazení do kat. G. Více o PENB u makléře. Velmi dobrá investice. Po vloupání pachatelé ukradli technologii na úpravu pitné vody, vytrhali nově vybudované el. rozvaděče a částečně poškodili technologii vytápení.

Parametry nemovitosti

Cena
2 800 000 Kč /za nemovitost Spočítat hypotéku
Aktualizováno
21. 11. 2025
Adresa
Loužnice
ID
CR24820
Stavba
Smíšená
Stav objektu
Dobrý
Vybaveno
Ne
Typ objektu
Patrový
Užitná plocha
561 m2
Plocha pozemku
1121 m2
Třída energetické náročnosti
G - Mimořádně nehospodárná
Elektřina
230V, 400V
Odpad
ČOV pro celý objekt
Topení
Ústřední tuhá paliva
Komunikace
Asfaltová
Doprava
Silnice, Autobus
Voda
Místní zdroj vody, Studna
Balkon
Garáž
Sklep
Bezbarierový přístup

Kontaktovat makléře

Máte zájem o tuto nemovistost?

Tímto, v souladu s nařízením Evropského parlamentu a Rady (EU) 2016/679, v platném znění, prohlašuji, že mi je alespoň 16 let a uděluji tak svůj souhlas se zpracováním zadaných údajů (jméno, telefon, e-mail, ip adresa) společnosti B3 Technology, s.r.o., IČ: 07330600, se sídlem Novostavby 126/23, 435 11 Lom (správce dat), za účelem předání dotazu z tohoto formuláře Vámi vybranému inzerentovi a zpětného kontaktování mé osoby. Osobní údaje bude správce zpracovávat manuálně i automaticky přímo prostřednictvím svých zaměstnanců. Informace předané tímto formulářem budou uloženy v databázi správce maximálně po dobu 10 let. Odvolání souhlasu s uložením a zpracováním poskytnutých dat lze e-mailem na info@bydlisnami.cz. V případě podezření na neoprávněné použití Vámi poskytnutých údajů máte právo předat podnět k šetření Úřadu pro ochranu osobních údajů. Více informací
Chystáte se prodat nemovitost?
Pomůžeme Vám!

Inzerát si prohlédlo 11 lidí

Prodejce

Marek Bijok

Marek Bijok

Hlídací pes

Chcete dostávat emailem podobné nabídky prodeje ubytování v Loužnici?

Podobné nemovitosti