Pronájem bytu 2+kk, Praha - Karlín, Sokolova, 58 m2 (ID: 2383877)

Sokolova, Praha, Karlín

Rezervováno
29 500 Kč /za měsíc Získejte výhodnou HYPOTÉKU

(Poplatky (vč. elektřiny): 1 os. 5 500 Kč/měs. | 2 os. 6 900 Kč/měs. (internet + O2 TV + 598 Kč))

Doporučené firmy v Praze 8

Stěhovací služby

Výkup a prodej starého nábytku

Informace k bytu

BYT je REZERVOVÁN.

Nabízíme k pronájmu nový, luxusní, nadstandardně vybavený a částečně zařízený byt s terasou v 6. patře nového rezidenčního projektu Rohan City – Diamanty Karlín, navrženého světoznámou architektkou Evou Jiřičnou. Projekt se nachází v atraktivní lokalitě na Rohanském ostrově v Karlíně, pár minut chůze od stanice metra Invalidovna, v blízkosti nábřeží Vltavy. Oblíbená lokalita s plnou občanskou vybaveností, rychlým spojením do centra, cyklistickou a běžeckou stezkou, fitness/relaxačním centrem a golfovým hřištěm.

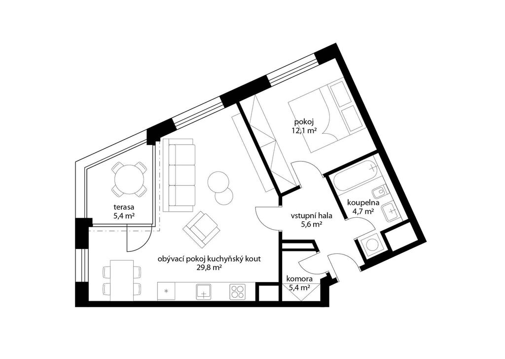
Dispozice bytu:
Obývací pokoj s plně vybavenou kuchyní, obývací stěnou a vstupem na terasu s pěkným výhledem, ložnice s manželskou postelí a vestavěnými skříněmi, koupelna s vanou a toaletou, komora a vstupní chodba.

Vybavení a standardy:
Klimatizace, dřevěné podlahy, velkoformátová dlažba, elektricky ovládané venkovní žaluzie, centrální vytápění, pračka, sušička, myčka, indukční varná deska, mikrovlnná trouba. V domě kolárna a umývárna kol, výtah.

Parkování:
Parkování: v ceně nájmu 1 garážové stání. Sklep. Byt volný k nastěhování ihned.

Parametry bytu

Stav
Rezervováno
Cena
29 500 Kč /za měsíc
Poznámka k ceně
Poplatky (vč. elektřiny): 1 os. 5 500 Kč/měs. | 2 os. 6 900 Kč/měs. (internet + O2 TV + 598 Kč)
Aktualizováno
24. 8. 2025
Adresa
Sokolova, Praha, Karlín
ID
00852
Stavba
Skeletová
Stav objektu
Novostavba
Patro
6. z 10
Vybaveno
Částečně
Vlastnictví
Osobní
Užitná plocha
58 m2
Třída energetické náročnosti
B - Velmi úsporná
Ukazatel energetické náročnosti
50 kWh/m2 za rok
Elektřina
230V
Odpad
Veřejná kanalizace
Topení
Ústřední dálkové
Komunikace
Betonová, Asfaltová
Telekomunikace
Telefon, Internet, Kabelové rozvody
Doprava
Silnice, MHD
Garáž
Sklep
Terasa
Výtah
Bezbarierový přístup
Parkování

Kontaktovat makléře

Máte zájem o tento byt?

Tímto, v souladu s nařízením Evropského parlamentu a Rady (EU) 2016/679, v platném znění, prohlašuji, že mi je alespoň 16 let a uděluji tak svůj souhlas se zpracováním zadaných údajů (jméno, telefon, e-mail, ip adresa) společnosti B3 Technology, s.r.o., IČ: 07330600, se sídlem Novostavby 126/23, 435 11 Lom (správce dat), za účelem předání dotazu z tohoto formuláře Vámi vybranému inzerentovi a zpětného kontaktování mé osoby. Osobní údaje bude správce zpracovávat manuálně i automaticky přímo prostřednictvím svých zaměstnanců. Informace předané tímto formulářem budou uloženy v databázi správce maximálně po dobu 10 let. Odvolání souhlasu s uložením a zpracováním poskytnutých dat lze e-mailem na info@bydlisnami.cz. V případě podezření na neoprávněné použití Vámi poskytnutých údajů máte právo předat podnět k šetření Úřadu pro ochranu osobních údajů. Více informací
Chystáte se prodat nemovitost?
Pomůžeme Vám!

Inzerát si prohlédlo 13 lidí

Prodejce

Petr Dvořák

Petr Dvořák

Hlídací pes

Chcete dostávat emailem podobné nabídky pronájmu bytů 2+kk v Praze 8?

Podobné nemovitosti