Pronájem bytu 1+1, Brno - Židenice, Šámalova, 28 m2

Šámalova, Brno-Židenice

12 000 Kč /za měsíc Získejte výhodnou HYPOTÉKU
Doporučené firmy v Brně

Informace k bytu

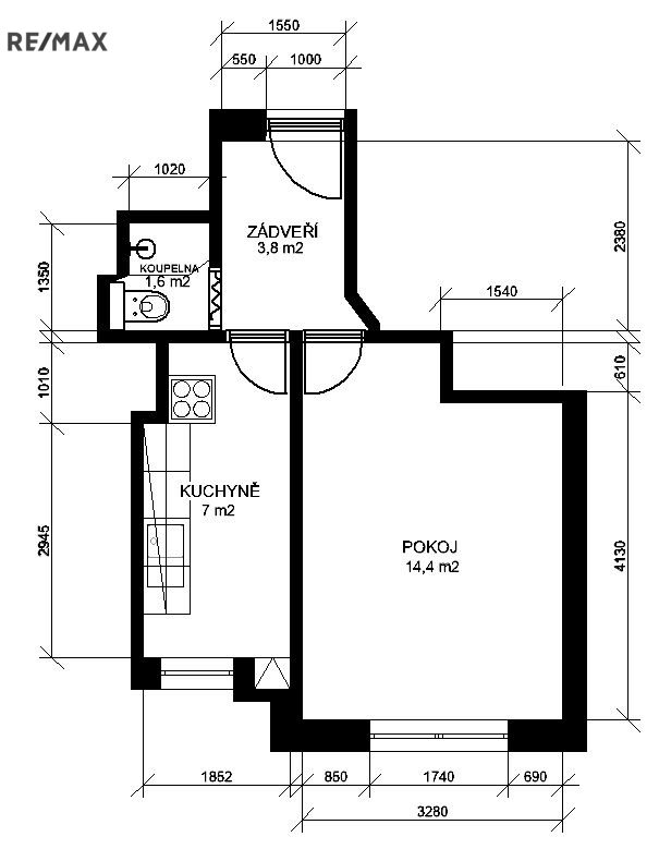
Nabízíme k dlouhodobému pronájmu byt o dispozici 1+1 s užitnou plochou 28 m² v oblíbené lokalitě Brno - Židenice na ulici Šámalova 25. Byt se nachází ve čtvrtém patře bytového domu a je po částečné rekonstrukci.

Byt zahrnuje:
- Obytnou místnost
- Kuchyň
- Koupelnu (bez umyvadla)
- Zádveří
- Sklepní kóji o ploše 4 m²

Vybavení bytu:
Plynové topení s nízkou tepelnou ztrátou díky poloze bytu v domě
Ohřev vody zajištěn elektrickým bojlerem
Nájemné: 12 000 Kč měsíčně

Další poplatky:
Záloha na vodu: dle spotřeby
Poplatek za úklid společných prostor: 250 Kč měsíčně
Nájemník má vlastní smlouvu s dodavatelem plynu a elektřiny

Podmínky pronájmu:
Vratná kauce: 20 000 Kč
Provize realitní kanceláři: 20 000 Kč

Byt je ideální pro jednotlivce nebo studenty, kteří hledají začínající bydlení. Nachází se ve výborné lokalitě s dobrou občanskou vybaveností a dopravní dostupností.
Pronajímatel preferuje dlouhodobou spolupráci.

V případě zájmu o prohlídku nebo další informace nás prosím kontaktujte.

Parametry bytu

Cena
12 000 Kč /za měsíc
Aktualizováno
5. 10. 2025
Adresa
Šámalova, Brno-Židenice
ID
197-NP05037
Stavba
Cihlová
Stav objektu
Dobrý
Patro
2.
Lokalita objektu
Centrum obce
Vlastnictví
Osobní
Užitná plocha
28 m2
Třída energetické náročnosti
G - Mimořádně nehospodárná
Elektřina
230V
Plyn
Plynovod
Odpad
Veřejná kanalizace
Topení
Lokální plynové
Komunikace
Asfaltová
Telekomunikace
Internet, Kabelová televize
Doprava
Vlak, Dálnice, Silnice, MHD, Autobus
Voda
Místní zdroj vody
Sklep

Kontaktovat makléře

Realitní kancelář

Logo RE/MAX Magnum

RE/MAX Magnum

Banskobystrická 819/52, Brno

Chystáte se prodat nemovitost?
Pomůžeme Vám!

Máte zájem o tento byt?

Tímto, v souladu s nařízením Evropského parlamentu a Rady (EU) 2016/679, v platném znění, prohlašuji, že mi je alespoň 16 let a uděluji tak svůj souhlas se zpracováním zadaných údajů (jméno, telefon, e-mail, ip adresa) společnosti B3 Technology, s.r.o., IČ: 07330600, se sídlem Novostavby 126/23, 435 11 Lom (správce dat), za účelem předání dotazu z tohoto formuláře Vámi vybranému inzerentovi a zpětného kontaktování mé osoby. Osobní údaje bude správce zpracovávat manuálně i automaticky přímo prostřednictvím svých zaměstnanců. Informace předané tímto formulářem budou uloženy v databázi správce maximálně po dobu 10 let. Odvolání souhlasu s uložením a zpracováním poskytnutých dat lze e-mailem na info@bydlisnami.cz. V případě podezření na neoprávněné použití Vámi poskytnutých údajů máte právo předat podnět k šetření Úřadu pro ochranu osobních údajů. Více informací
Chystáte se prodat nemovitost?
Pomůžeme Vám!

Inzerát si prohlédlo 5 lidí

Prodejce

Ing. Jan Sigmund

Ing. Jan Sigmund

Hlídací pes

Chcete dostávat emailem podobné nabídky pronájmu bytů 1+1 v Brně?

Podobné nemovitosti