Prodej rodinného domu, Křečkov, 150 m2

Křečkov

9 200 000 Kč /za nemovitost HYPOTÉKA od 41 118 Kč /za měsíc

(při rychlém jednání sleva ceny)

Doporučené firmy v Křečkově

Informace k domu

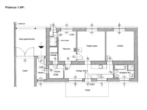
Soccer Reality vám zprostředkuje k prodeji prostorný rodinný dům o dispozici 5+1 v obci Křečkov, jen 3 km od Poděbrad. Dům se nachází na klidném místě na konci obce, za zahradou se rozprostírá ořechová alej a potok, což zajišťuje soukromí a příjemné prostředí. Celková užitná plocha domu je 150 m², navíc je k dispozici zastřešená terasa o velikosti 24 m² a krásná zahrada o rozloze 1.052 m².

Nemovitost byla postavena v 60. letech a v roce 2005 prošla rozsáhlou rekonstrukcí. V roce 2019 byla dokončena půdní vestavba a nástavba nad částí domu. Dům je zděný a suchý, se střechou z betonové tašky KM-Beta a novými krovy z let 2017–2019. V přízemí o rozloze 80 m² se nachází předsíň, chodba, technická místnost, kuchyně s jídelnou, obývací pokoj, ložnice, pracovna a koupelna s vanou, sprchovým koutem a WC. Z jídelny je přímý vstup na zastřešenou terasu s pergolou, odkud vede cesta do okrasné i užitkové zahrady. Podkroví o výměře 70 m² nabízí velkou otevřenou halu, dvě ložnice, koupelnu se sprchovým koutem a WC a komoru. Sklep má 12 m².

Dům je vybaven dřevěnými EURO okny, v přízemí je dlažba s podlahovým topením, v patře pak plovoucí laminátová podlaha Quickstep. Vytápění zajišťuje nový elektrokotel z roku 2024, v patře jsou instalovány dekorativní kamenné topné panely Geme-therm, alternativně lze využít krbová kamna Haas+Sohn v obývacím pokoji. Ohřev vody zajišťují dva bojlery – jeden ve sklepě a druhý v podkroví. Dům je napojen na veřejný vodovod a kanalizaci, k dispozici je plynová přípojka (aktuálně nevyužívaná) a vlastní studna s pitnou vodou. Dům je zateplen, část fasády byla nově dokončena v roce 2024 a 2025.

Součástí prodeje je garáž, dílna, dvě kůlny, dřevník a letní kuchyně s komínem. Parkování je zajištěno v garáži, pod krytým stáním i před domem, kde jsou dvě stání ze zámkové dlažby. Zahrada je částečně okrasná a částečně užitková.

Obec Křečkov nabízí dobrou občanskou vybavenost – základní školu pro první stupeň, dvě školky (včetně soukromé dětské skupiny), obchod, hospůdku, fotbalové hřiště a dětská hřiště. Dopravní dostupnost je výborná – do Poděbrad i Nymburka se pohodlně dostanete autobusem, vlakové spojení je v nedalekém Velkém Zboží. Do Prahy (Černý Most) se dostanete za 35 minut a do Mladé Boleslavi za 45 minut. Tento dům je ideální pro rodiny, které hledají klidné místo k bydlení s výbornou dostupností města a možností užívat si vlastní zahradu a přírodu hned za domem.
Nemovitost můžete financovat hypotečním úvěrem.

Parametry domu

Cena
9 200 000 Kč /za nemovitost Spočítat hypotéku
Poznámka k ceně
při rychlém jednání sleva ceny
Aktualizováno
19. 1. 2026
Adresa
Křečkov
ID
N66361
Stavba
Smíšená
Stav objektu
Velmi dobrý
Typ objektu
Patrový
Druh objektu
Samostatný
Lokalita objektu
Klidná část obce
Užitná plocha
150 m2
Zastavěná plocha
97 m2
Podlahová plocha
150 m2
Plocha pozemku
1052 m2
Plocha zahrady
1052 m2
Třída energetické náročnosti
G - Mimořádně nehospodárná
Plyn
Plynovod
Odpad
Veřejná kanalizace
Topení
Ústřední elektrické, Podlahové
Telekomunikace
Internet
Doprava
Silnice, Autobus
Voda
Studna
Garáž
Sklep
Terasa
Parkování

Kontaktovat makléře

Realitní kancelář

Logo SOCCER REALITY s.r.o.

SOCCER REALITY s.r.o.

bratří Dohalských 144/8, Praha 9

Chystáte se prodat nemovitost?
Pomůžeme Vám!

Máte zájem o tento dům?

Tímto, v souladu s nařízením Evropského parlamentu a Rady (EU) 2016/679, v platném znění, prohlašuji, že mi je alespoň 16 let a uděluji tak svůj souhlas se zpracováním zadaných údajů (jméno, telefon, e-mail, ip adresa) společnosti B3 Technology, s.r.o., IČ: 07330600, se sídlem Novostavby 126/23, 435 11 Lom (správce dat), za účelem předání dotazu z tohoto formuláře Vámi vybranému inzerentovi a zpětného kontaktování mé osoby. Osobní údaje bude správce zpracovávat manuálně i automaticky přímo prostřednictvím svých zaměstnanců. Informace předané tímto formulářem budou uloženy v databázi správce maximálně po dobu 10 let. Odvolání souhlasu s uložením a zpracováním poskytnutých dat lze e-mailem na info@bydlisnami.cz. V případě podezření na neoprávněné použití Vámi poskytnutých údajů máte právo předat podnět k šetření Úřadu pro ochranu osobních údajů. Více informací
Chystáte se prodat nemovitost?
Pomůžeme Vám!

Inzerát si prohlédlo 13 lidí

Prodejce

Jiří Novák

Jiří Novák

Hlídací pes

Chcete dostávat emailem podobné nabídky prodeje rodinných domů v Křečkově?

Podobné nemovitosti