Prodej rodinného domu, Suchdol nad Lužnicí - Tušť, 82 m2 (ID: 2423934)

Suchdol nad Lužnicí, Tušť

6 450 000 Kč /za nemovitost HYPOTÉKA od 28 828 Kč /za měsíc
Doporučené firmy v Suchdole nad Lužnicí

Informace k domu

Chalupa k rekreaci, místo pro bydlení, anebo nemovitost vhodná k dalšímu pronajímání? Polosamota. Nádherná příroda. Cyklostezky, koupání. Perfektní stav chalupy a k tomu nový zahradní dům přímo na pozemku.

Ve výhradním zastoupení majitele vám nabízíme prodej chalupy v Tušti u Suchdolu nad Lužnicí – v oblíbené osadě Paris.

Základní informace přehledně a stručně:
• hlavní chalupa je z roku 1930, prošla rozsáhlou rekonstrukcí
• vedlejší nová dřevostavba v podobě zahradního domu
• celková výměra pozemků 708 m² (rovinatý terén)
• CHKO Třeboňsko

Chalupa:
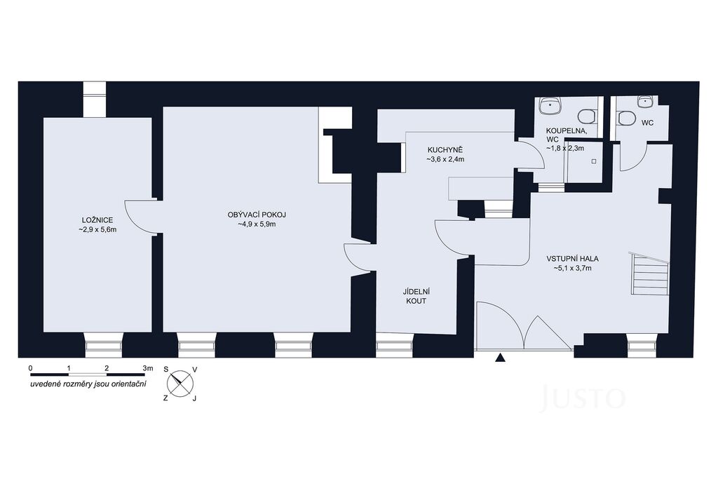
• užitná plocha v přízemí cca 82 m² (samostatné WC, koupelna s druhým WC, předsíň, jídelna, kuchyně, obývací pokoj a ložnice)
• dále venkovní zastřešená terasa cca 23 m²
• v podkroví na vás čeká dalších 89 m² plochy
• majitelé chalupu zrekonstruovali – nová dřevěná špaletová okna, omítky, podlahy, vnitřní rozvody elektro/vody/odpadů, střecha a další
• vytápění pomocí kombinace kachlových kamen, krbové vložky a elektrického podlahového topení
• zdrojem pitné vody je obecní vodovod, ohřev vody pomocí elektrického bojleru, odkanalizování domu vede do jímky
• wi-fi internet
• součástí prodeje i zařízení a vybavení domu

Dřevěný zahradní dům:
• v přízemí 3 místnosti s užitnou plochou cca 30 m²
• v podkroví další prostor cca 25 m²
• zastřešené parkovací stání a další možnosti parkování před vjezdem na pozemek a pak přímo na pozemku
• plně elektrifikován

Lokalita:
Na houby můžete do okolních lesů. Všude kolem jsou cyklostezky. Pokud vám nebude stačit Třeboňsko, můžete se vydat do nedalekých Novohradských hor. Ke koupání využijete nedaleké pískovny – voda je čistá a téměř všude máte hospůdky a kiosky. Vodáci mohou vyrazit i přímo na řeku Lužnici. Nakoupíte si v Tušti i Suchdole. Autobusem dojedete do Klikova (cca 1,5 km) a vlakem do Suchdolu (cca 3,5 km).

Co na to říkáte? Chcete poslat více informací na e-mail? Nebo byste se rádi přijeli podívat na prohlídku? Vyplňte prosím formulář u inzerátu. Dostanete odpověď s doplňujícími informacemi do 20 minut na e-mail, který uvedete. (Zkontrolujte si, prosím, i složky "Spam" a "Nevyžádaná pošta". Občas se tam e-mail může zatoulat.)

Parametry domu

Cena
6 450 000 Kč /za nemovitost Spočítat hypotéku
Aktualizováno
27. 9. 2025
Adresa
Suchdol nad Lužnicí, Tušť
ID
J11137
Stavba
Smíšená
Stav objektu
Velmi dobrý
Vybaveno
Ano
Typ objektu
Patrový
Druh objektu
V bloku
Lokalita objektu
Polosamota
Vlastnictví
Osobní
Užitná plocha
82 m2
Zastavěná plocha
178 m2
Podlahová plocha
160 m2
Plocha pozemku
708 m2
Plocha zahrady
530 m2
Třída energetické náročnosti
C - Úsporná
Ukazatel energetické náročnosti
126 kWh/m2 za rok
Elektřina
230V, 400V
Odpad
Jímka
Topení
Lokální tuhá paliva, Lokální elektrické
Komunikace
Šotolina
Telekomunikace
Internet
Doprava
Vlak, Silnice, Autobus
Voda
Vodovod
Topné těleso
Podlahové vytápění, Krbová kamna, Kamna
Zdroj topení
Krbová kamna, Kamna
Sklep
Terasa
Parkování

Kontaktovat makléře

Realitní kancelář

Logo JUSTO Česká republika

JUSTO Česká republika

Korunní 2569/108, Vinohrady, Praha

Chystáte se prodat nemovitost?
Pomůžeme Vám!

Máte zájem o tento dům?

Tímto, v souladu s nařízením Evropského parlamentu a Rady (EU) 2016/679, v platném znění, prohlašuji, že mi je alespoň 16 let a uděluji tak svůj souhlas se zpracováním zadaných údajů (jméno, telefon, e-mail, ip adresa) společnosti B3 Technology, s.r.o., IČ: 07330600, se sídlem Novostavby 126/23, 435 11 Lom (správce dat), za účelem předání dotazu z tohoto formuláře Vámi vybranému inzerentovi a zpětného kontaktování mé osoby. Osobní údaje bude správce zpracovávat manuálně i automaticky přímo prostřednictvím svých zaměstnanců. Informace předané tímto formulářem budou uloženy v databázi správce maximálně po dobu 10 let. Odvolání souhlasu s uložením a zpracováním poskytnutých dat lze e-mailem na info@bydlisnami.cz. V případě podezření na neoprávněné použití Vámi poskytnutých údajů máte právo předat podnět k šetření Úřadu pro ochranu osobních údajů. Více informací
Chystáte se prodat nemovitost?
Pomůžeme Vám!

Inzerát si prohlédlo 5 lidí

Prodejce

Tadeáš Vaverka

Tadeáš Vaverka

Hlídací pes

Chcete dostávat emailem podobné nabídky prodeje rodinných domů v Suchdole nad Lužnicí?

Podobné nemovitosti