Pronájem bytu 2+kk, Praha - Vršovice, Orelská, 54 m2

Orelská, Praha, Vršovice

20 000 Kč /za měsíc Získejte výhodnou HYPOTÉKU

(Měsíční nájemné: 20.000,- Kč. Zálohy: 3.000,- Kč / 2 osoby, další osoba + 500,- Kč. Kauce: 40.000,- Kč. Elektřina: cca 2.500,- Kč měsíčně. Provize RK:)

Doporučené firmy v Praze 10

Stěhovací služby

Výkup a prodej starého nábytku

Informace k bytu

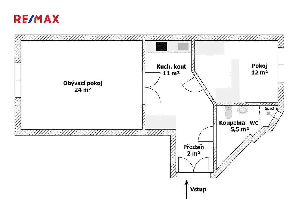
Pronájem bytu 2+kk (54,49 m²), Praha 10 - Vršovice, Orelská ul.
Ihned k nastěhování je byt v atraktivní lokalitě pražských Vršovic v blízkosti Čechova náměstí, který najdete ve 3. patře cihlového domu s výtahem.
Byt je prakticky dispozičně řešený, na vstupní chodbu navazuje kuchyňský kout, dva samostatné neprůchozí pokoje a koupelna se sprchovým koutem včetně WC.
Okno obývacího pokoje směřuje do ulice, okno ložnice do vnitrobloku.

Byt je částečně vybavený - kuchyňská linka s myčkou, vestavěná lednice s mrazákem, pračka v koupelně, manželská postel, sedací souprava, jídelní stůl se židlemi.
Úložné prostory jsou řešeny vestavěnými skříněmi.
Ohřev vody zajišťuje elektrický bojler, vytápění je řešeno stropními infrapanely, ovládanými termostatem, který umožňuje lehce udržovat nastavenou teplotu.

Měsíční nájemné: 20.000, - Kč
Záloha na služby: 2 osoby 3.000,- Kč, každá další osoba + 500,- Kč
Elektřina: přepis na nájemce (výši záloh určí dodavatel elektřiny, předpoklad cca 2.500, - Kč)
Kauce: dva měsíční nájmy
Provize RK: 18.150, - Kč vč. DPH
Internet si nájemce případně zřídí vlastní.

Uvítáme, pokud nám o sobě a dalších osobách, které by v bytě bydleli, napíšete pár informací. Děkujeme.

Byt je vhodný pro pár nebo rodinu s menšími dětmi, maximálně pro 4 osoby.
Domácí mazlíčci jsou možní po domluvě, v tom případě může být navýšena kauce.
Pouze zájemci se stabilním zaměstnáním nebo podnikáním, bez zápisu v exekučních a insolvenčních rejstřících.
V případě cizinců pouze s již platným dlouhodobým pobytem a zajištěným příjmem.
Majitel preferuje zájemce o dlouhodobý pronájem.

Tramvajovou a autobusovou zastávku najdete v těsné blízkosti domu, cesta na metro (Náměstí Míru) trvá MHD 10 minut. Přímo před domem je rezidenční modrá parkovací zóna a je zde i dostatek parkovacích míst na smíšené zóně.
V docházkové vzdálenosti je mnoho obchodů, kaváren, restaurací, v blízkosti je NC Eden a také krásný park Grébovka, který nabízí vyžití jak sportovcům, tak i rodinám s dětmi.

Parametry bytu

Cena
20 000 Kč /za měsíc
Poznámka k ceně
Měsíční nájemné: 20.000,- Kč. Zálohy: 3.000,- Kč / 2 osoby, další osoba + 500,- Kč. Kauce: 40.000,- Kč. Elektřina: cca 2.500,- Kč měsíčně. Provize RK:
Aktualizováno
27. 9. 2025
Adresa
Orelská, Praha, Vršovice
ID
0279-NP00776
Stavba
Cihlová
Stav objektu
Velmi dobrý
Patro
4. z 6
Vybaveno
Ano
Vlastnictví
Osobní
Užitná plocha
54 m2
Podlahová plocha
54 m2
Třída energetické náročnosti
G - Mimořádně nehospodárná
Odpad
Veřejná kanalizace
Voda
Vodovod
Topné těleso
Infrapanel
Zdroj topení
Infrapanel
Zdroj teplé vody
Bojler - elektro
Výtah

Kontaktovat makléře

Máte zájem o tento byt?

Tímto, v souladu s nařízením Evropského parlamentu a Rady (EU) 2016/679, v platném znění, prohlašuji, že mi je alespoň 16 let a uděluji tak svůj souhlas se zpracováním zadaných údajů (jméno, telefon, e-mail, ip adresa) společnosti B3 Technology, s.r.o., IČ: 07330600, se sídlem Novostavby 126/23, 435 11 Lom (správce dat), za účelem předání dotazu z tohoto formuláře Vámi vybranému inzerentovi a zpětného kontaktování mé osoby. Osobní údaje bude správce zpracovávat manuálně i automaticky přímo prostřednictvím svých zaměstnanců. Informace předané tímto formulářem budou uloženy v databázi správce maximálně po dobu 10 let. Odvolání souhlasu s uložením a zpracováním poskytnutých dat lze e-mailem na info@bydlisnami.cz. V případě podezření na neoprávněné použití Vámi poskytnutých údajů máte právo předat podnět k šetření Úřadu pro ochranu osobních údajů. Více informací
Chystáte se prodat nemovitost?
Pomůžeme Vám!

Inzerát si prohlédlo 4 lidí

Prodejce

Alena Vrzáková

Alena Vrzáková

Hlídací pes

Chcete dostávat emailem podobné nabídky pronájmu bytů 2+kk v Praze 10?

Podobné nemovitosti