Prodej bytu 4+1, Brno, Absolonova, 105 m2

Absolonova, Brno, Komín

12 490 000 Kč /za nemovitost HYPOTÉKA od 55 823 Kč /za měsíc

(včetně provize RK, včetně právního servisu, včetně poplatků)

Doporučené firmy v Brně

Informace k bytu

V oblíbené městské části Brna - v Komíně, v menším panelovém domě na ulici Absolonova, je k prodeji prostorný byt pro velkou rodinu. Pokud máte třeba menší byt někde v okolí, jste spokojeni, ale potřebovali byste navíc jeden či dva pokoje, mohla by Vás tato nabídka zaujmout.
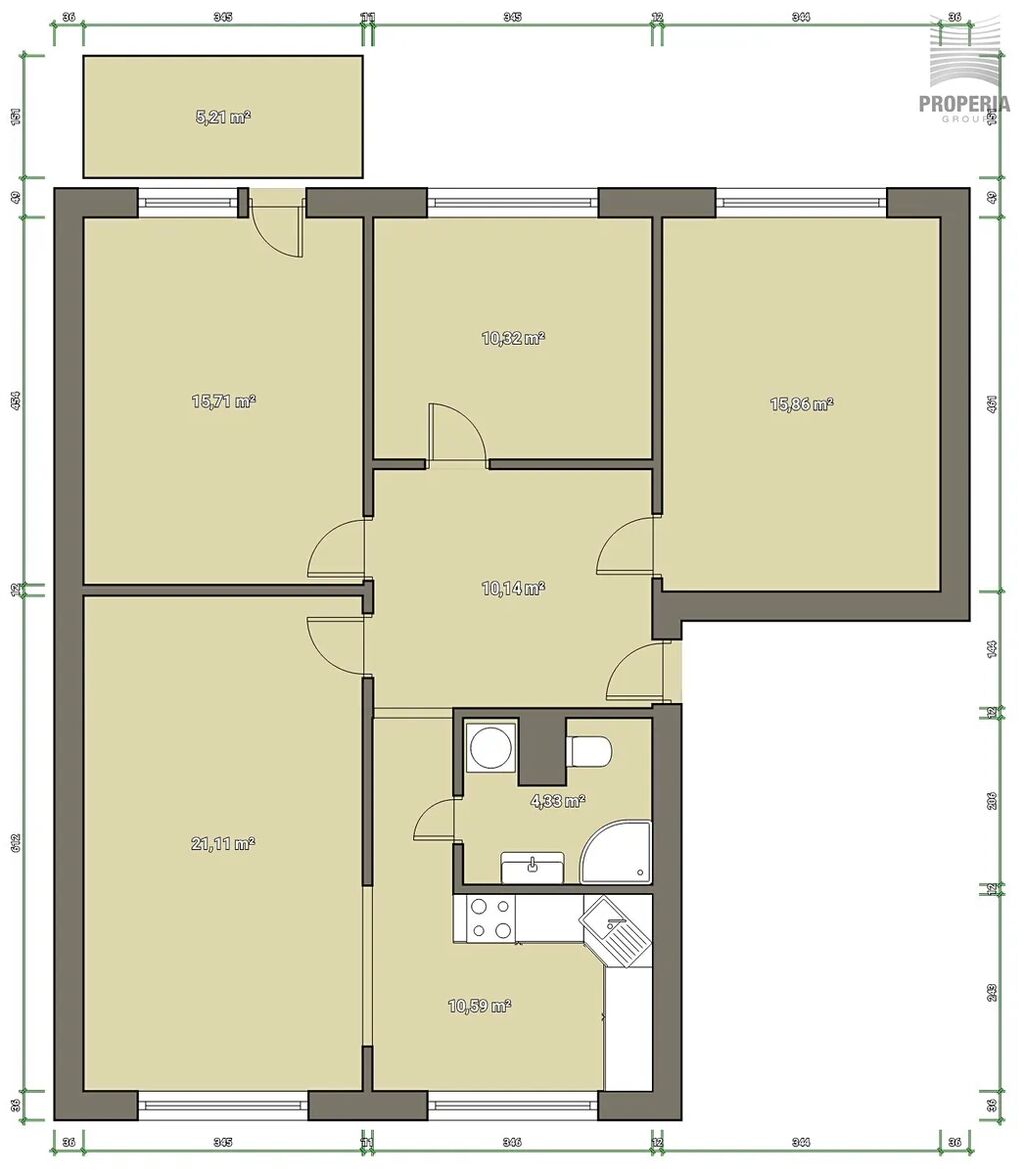
Byt 4+1 (4+kk) se nachází ve zvýšeném přízemí, jeho plocha je 90 m2 + balkon 5 m2. Disponuje velkou předsíní, kuchyní, sociálním zázemím a 4 prostornými pokoji (21, 16, 16 a 10 m2). Jak můžete vidět na přiloženém orientačním půdorysu, všechny místnosti mají samostatné vstupy z chodby, nejsou průchozí. Úložné prostory o výměře 15 m2 nabízí další samostatná místnost (sklep) v suterénu domu.
Dům je obklopen zelení, balkon nabízí krásné posezení i výhled, když mi majitelé říkali, že tam občas vídají i koloušky, nevěřila jsem, tak mi poslali fotku...(omluvte její kvalitu).
Bonusem je i blízkost všeho potřebného - MŠ je hned ve vedlejším domě, stejně tak i SVČ s multifunkčním a dopravním hřištěm, nedaleko jsou další MŠ a ZŠ, SŠ Čichnova, obchody, pošta, zdravotnická zařízení, několik restaurací a také spousta super míst pro trávení volného času dětí i dospělých - dětská a sportovní hřiště, 70 m od domu vede cyklostezka ke Svratce, kde najdete úžasná místa k odpočinku v krásné přírodě - třeba pláž u Svratky, sportovní areály sousedící s lesy v Jundrově, určitě potěší i blízkost Brněnské přehrady. Komín nabízí také bohaté kulturní a společenské vyžití včetně tradičních hodů...
Měsíční zálohy včetně FO jsou (i díky vlastní kotelně v domě) pouze 5.527,- Kč/ 4 osoby + zálohy na elektřinu a plyn (pouze sporák).
Parkovat lze v okolí domu v rámci rezidentního parkování - zóna C, zastávka MHD nedaleko.
Pokud bude potřeba, ráda pomohu s případným prodejem Vaší stávající nemovitosti nebo vyřízením hypotéky.
Další informace Vám sdělím na vyžádání, prohlídky jsou možné po domluvě. Budu se na Vás těšit!

PENB nebyl dodán, proto uvádím tř. G.

Parametry bytu

Cena
12 490 000 Kč /za nemovitost Spočítat hypotéku
Poznámka k ceně
včetně provize RK, včetně právního servisu, včetně poplatků
Náklady na bydlení
5527,- Kč/4 osoby + elektřina a plyn
Aktualizováno
2. 10. 2025
Adresa
Absolonova, Brno, Komín
ID
03616
Stavba
Panelová
Stav objektu
Velmi dobrý
Patro
1. z 4
Vybaveno
Částečně
Vlastnictví
Osobní
Užitná plocha
105 m2
Podlahová plocha
110 m2
Třída energetické náročnosti
G - Mimořádně nehospodárná
Elektřina
230V
Plyn
Plynovod
Odpad
Veřejná kanalizace
Telekomunikace
Internet, Kabelové rozvody
Voda
Vodovod
Topné těleso
Radiátory
Balkon
Sklep

Kontaktovat makléře

Máte zájem o tento byt?

Tímto, v souladu s nařízením Evropského parlamentu a Rady (EU) 2016/679, v platném znění, prohlašuji, že mi je alespoň 16 let a uděluji tak svůj souhlas se zpracováním zadaných údajů (jméno, telefon, e-mail, ip adresa) společnosti B3 Technology, s.r.o., IČ: 07330600, se sídlem Novostavby 126/23, 435 11 Lom (správce dat), za účelem předání dotazu z tohoto formuláře Vámi vybranému inzerentovi a zpětného kontaktování mé osoby. Osobní údaje bude správce zpracovávat manuálně i automaticky přímo prostřednictvím svých zaměstnanců. Informace předané tímto formulářem budou uloženy v databázi správce maximálně po dobu 10 let. Odvolání souhlasu s uložením a zpracováním poskytnutých dat lze e-mailem na info@bydlisnami.cz. V případě podezření na neoprávněné použití Vámi poskytnutých údajů máte právo předat podnět k šetření Úřadu pro ochranu osobních údajů. Více informací
Chystáte se prodat nemovitost?
Pomůžeme Vám!

Inzerát si prohlédlo 1 lidí

Prodejce

Lenka Kocí Panáčková

Lenka Kocí Panáčková

Hlídací pes

Chcete dostávat emailem podobné nabídky prodeje bytů 4+1 v Brně?

Podobné nemovitosti