Prodej bytu 3+1, Hostouň, 95 m2 (ID: 2434002)

Hostouň

6 890 000 Kč /za nemovitost HYPOTÉKA od 30 794 Kč /za měsíc
Doporučené firmy v Hostouni

Informace k bytu

Nabízím k prodeji bytovou jednotku o podlahové ploše 70 m2 v cihlovém domě na velice klidném místě v obci Hostouň u Prahy.

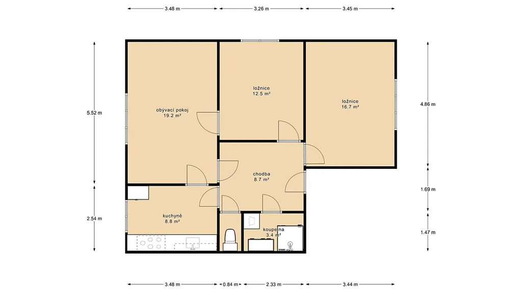
Byt se nachází v prvním patře bytového domu s pouze čtyřmi bytovými jednotkami a prošel kompletní rekonstrukcí. Má nová plastová okna, omítky, interiérové dveře, kuchyňskou linku, koupelnu se sprchovým koutem. Dispozice sestává z velkého obývacího pokoje o výměře 19 m2, kuchyně o výměře 9 m2, dvou ložnic (13 m2, 17 m2), chodby s velkou vestavěnou skříní 9 m2, koupelny 3,5 m2 a toalety se samotným vstupem. V chodbě je umístěn nový elektrokotel, který vytápí byt.
K jednotce náleží dva velké sklepy (12 m2 a 13 m2). Na patře je velká lodžie společná pro dva byty.

Pozemek pod domem je aktuálně v pronájmu, odkup do osobního vlastnictví je v řešení. Financování lze řešit hypotečním úvěrem.

V obci Hostouň je základní občanská vybavenost a skvělý dojezd do hlavního města, mateřská školka je přímo pod okny. Pozemek kolem domu se vzrostlými stromy je užíván vlastníky. Je zde možnost venkovního posezení, zahrádky i pohodlného parkování.

V případě dalších dotazů mě neváhejte kontaktovat.

Parametry bytu

Cena
6 890 000 Kč /za nemovitost Spočítat hypotéku
Aktualizováno
7. 10. 2025
Adresa
Hostouň
ID
442522
Stavba
Cihlová
Stav objektu
Velmi dobrý
Patro
2. z 2
Vlastnictví
Osobní
Užitná plocha
95 m2
Podlahová plocha
70 m2
Třída energetické náročnosti
G - Mimořádně nehospodárná
Odpad
Veřejná kanalizace
Topení
Ústřední elektrické
Komunikace
Asfaltová
Topné těleso
Radiátory
Zdroj topení
Elektrokotel
Sklep
Bezbarierový přístup

Kontaktovat makléře

Máte zájem o tento byt?

Tímto, v souladu s nařízením Evropského parlamentu a Rady (EU) 2016/679, v platném znění, prohlašuji, že mi je alespoň 16 let a uděluji tak svůj souhlas se zpracováním zadaných údajů (jméno, telefon, e-mail, ip adresa) společnosti B3 Technology, s.r.o., IČ: 07330600, se sídlem Novostavby 126/23, 435 11 Lom (správce dat), za účelem předání dotazu z tohoto formuláře Vámi vybranému inzerentovi a zpětného kontaktování mé osoby. Osobní údaje bude správce zpracovávat manuálně i automaticky přímo prostřednictvím svých zaměstnanců. Informace předané tímto formulářem budou uloženy v databázi správce maximálně po dobu 10 let. Odvolání souhlasu s uložením a zpracováním poskytnutých dat lze e-mailem na info@bydlisnami.cz. V případě podezření na neoprávněné použití Vámi poskytnutých údajů máte právo předat podnět k šetření Úřadu pro ochranu osobních údajů. Více informací
Chystáte se prodat nemovitost?
Pomůžeme Vám!

Inzerát si prohlédlo 12 lidí

Prodejce

Andrea Hlinková

Andrea Hlinková

Hlídací pes

Chcete dostávat emailem podobné nabídky prodeje bytů 3+1 v Hostouni (okr. Kladno)?

Top nabídky

Podobné nemovitosti