Pronájem bytu 2+kk, Hradec Králové, Kubelíkova, 70 m2

Kubelíkova, Hradec Králové, Slezské Předměstí

23 000 Kč /za měsíc Získejte výhodnou HYPOTÉKU

(• Měsíční nájemné: 23 000 Kč • Energie a služby: 2 700 Kč (elektřinu přepsat na nájemníka) • Vratná kauce: 46 000 Kč • Provize RK: 23 000 Kč)

Doporučené firmy v Hradci Králové

Informace k bytu

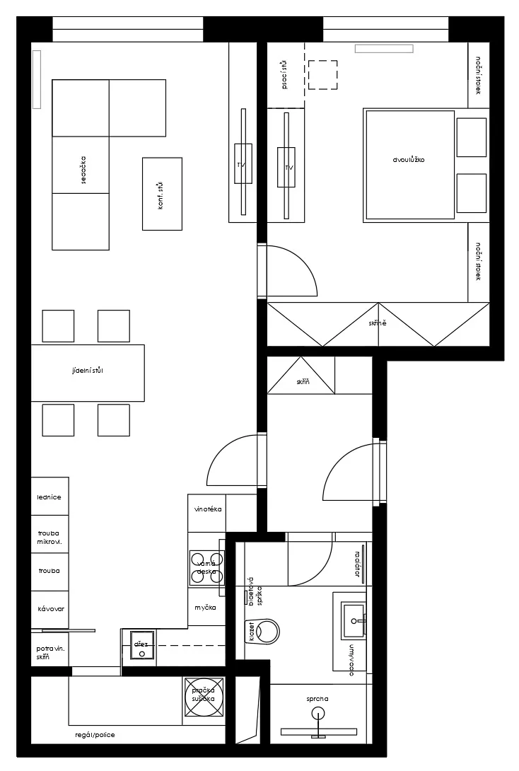
Pronájem světlého a moderního bytu 2+kk

Ve výhradním zastoupení nabízíme k pronájmu krásný a prosvětlený byt 2+kk o rozloze 70 m², který se nachází v 5. patře bytového domu na ulici Kubelíkova, Slezské předměstí. Byt nabízí pohodlné a moderní bydlení s výhledem do parku a snadný přístup k veškeré občanské vybavenosti v bezprostřední blízkosti.

Dispozice bytu:
• Prostorná vstupní chodba s vestavěným botníkem a zrcadlem.
• Koupelna se sprchovým koutem, toaletou a vestavěnou umyvadlovou skříňkou.
• Ložnice s vestavěnou skříní, manželskou postelí a nočními stolky.
• Obývací pokoj s kuchyňským koutem, vybavený pohovkou, TV skříňkou, jídelním stolem se židlemi a pracovním stolem.
• Moderní kuchyňský kout s lednicí, mrazákem, troubou, mikrovlnnou troubou, indukční deskou a myčkou.
• Praktická komora s úložným prostorem, pračkou a sušičkou.
K bytu náleží parkovací místo v garáži domu a prostorná sklepní kóje.

Podmínky pronájmu:
• Měsíční nájemné: 23 000 Kč
• Energie a služby: 2 700 Kč (elektřinu přepsat na nájemníka)
• Vratná kauce: 46 000 Kč
• Provize RK: 23 000 Kč

Byt je připraven k okamžitému nastěhování. Pro více informací a domluvu prohlídky nás prosím kontaktujte na uvedeném telefonním čísle. Rádi se Vám budeme věnovat!

Parametry bytu

Cena
23 000 Kč /za měsíc
Poznámka k ceně
• Měsíční nájemné: 23 000 Kč • Energie a služby: 2 700 Kč (elektřinu přepsat na nájemníka) • Vratná kauce: 46 000 Kč • Provize RK: 23 000 Kč
Náklady na bydlení
2700
Aktualizováno
7. 10. 2025
Adresa
Kubelíkova, Hradec Králové, Slezské Předměstí
Stavba
Cihlová
Stav objektu
Velmi dobrý
Patro
5.
Vybaveno
Ano
Vlastnictví
Osobní
Užitná plocha
70 m2
Doprava
Vlak, Silnice, MHD, Autobus
Zdroj topení
Ústřední dálkové
Sklep
Výtah
Bezbarierový přístup
Parkování

Kontaktovat makléře

Máte zájem o tento byt?

Tímto, v souladu s nařízením Evropského parlamentu a Rady (EU) 2016/679, v platném znění, prohlašuji, že mi je alespoň 16 let a uděluji tak svůj souhlas se zpracováním zadaných údajů (jméno, telefon, e-mail, ip adresa) společnosti B3 Technology, s.r.o., IČ: 07330600, se sídlem Novostavby 126/23, 435 11 Lom (správce dat), za účelem předání dotazu z tohoto formuláře Vámi vybranému inzerentovi a zpětného kontaktování mé osoby. Osobní údaje bude správce zpracovávat manuálně i automaticky přímo prostřednictvím svých zaměstnanců. Informace předané tímto formulářem budou uloženy v databázi správce maximálně po dobu 10 let. Odvolání souhlasu s uložením a zpracováním poskytnutých dat lze e-mailem na info@bydlisnami.cz. V případě podezření na neoprávněné použití Vámi poskytnutých údajů máte právo předat podnět k šetření Úřadu pro ochranu osobních údajů. Více informací
Chystáte se prodat nemovitost?
Pomůžeme Vám!

Inzerát si prohlédlo 8 lidí

Prodejce

Bc. Marta Formáčková

Bc. Marta Formáčková

Hlídací pes

Chcete dostávat emailem podobné nabídky pronájmu bytů 2+kk v Hradci Králové?

Podobné nemovitosti