Prodej bytu 3+1, Brno, bratří Křičků, 86 m2

bratří Křičků, Brno, Řečkovice

7 990 000 Kč /za nemovitost HYPOTÉKA od 35 710 Kč /za měsíc

(cena včetně provize a kompletního právního servisu)

Doporučené firmy v Brně

Informace k bytu

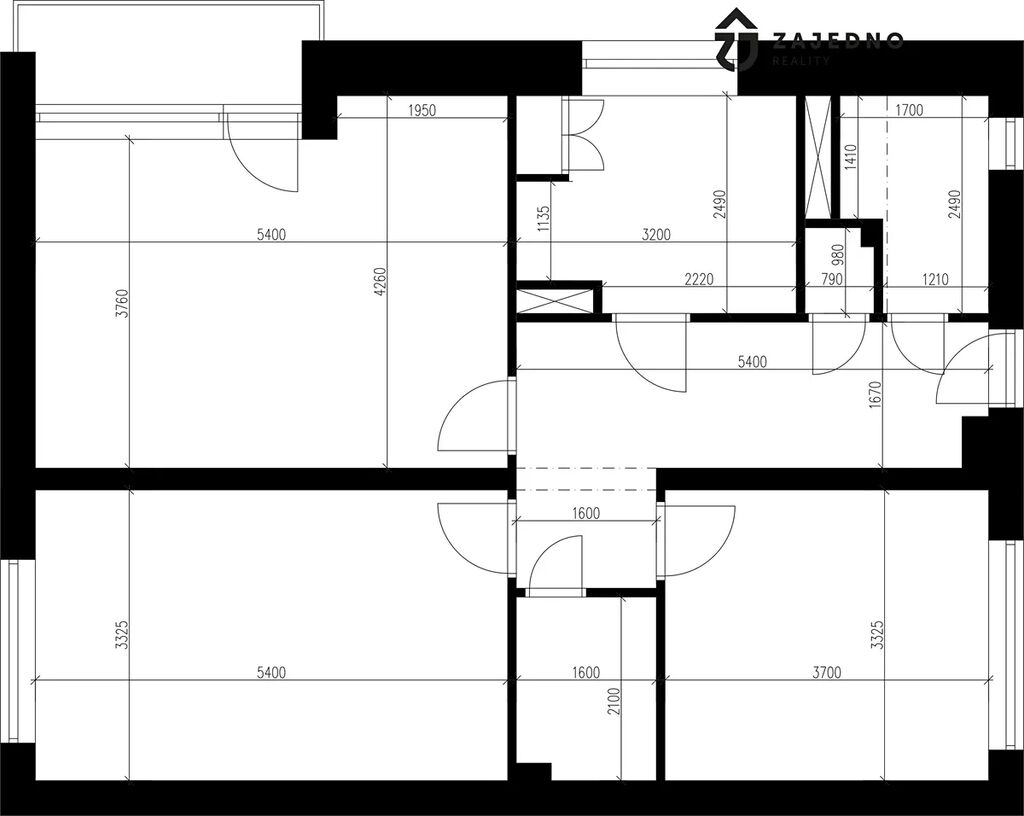
Dovolujeme si Vám představit byt v osobním vlastnictví o dispozici 3+1 ve 2. nadzemním podlaží cihlového domu na ulici Bratří Křičků v žádané lokalitě Brno - Řečkovice. Byt je v původním stavu a k předání novému majiteli bude kompletně vyklizen a připraven k rekonstrukci podle vlastních preferencí. Vytápění a ohřev teplé vody zajišťuje plynový kotel, díky tomu nejste závislí na topné sezóně a veškeré náklady máte pod kontrolou. Jednotlivé místnosti mají tyto rozměry - kuchyně 8,08 m2, obývací pokoj 21,22 m2 ze kterého je vstup na lodžii 3,7m2, dětský pokoj 18,60 m2, ložnice 12,86 m2, předsíň 10,76 m2, koupelna 3,91 m2, praktická šatna 3,54 m2. Koupelna i WC jsou odděleny pro větší pohodlí. V bytě je dostatek úložného prostoru včetně prostorného sklepa o velikosti 6,65 m2 a možnost je také využívat kočárkárnu. Okolní prostředí nabízí klidné a příjemné bydlení s perfektní dostupností veškeré občanské vybavenosti. Během pár minut se dostanete do lesů směrem na Soběšice, Útěchov a dál až do Moravského Krasu. Tento byt je ideální volba pro rodinu hledající pohodlné a prostorné bydlení v Brně. V případě dotazů nebo zájmu o prohlídku mě prosím kontaktujte.

Parametry bytu

Cena
7 990 000 Kč /za nemovitost Spočítat hypotéku
Poznámka k ceně
cena včetně provize a kompletního právního servisu
Aktualizováno
9. 10. 2025
Adresa
bratří Křičků, Brno, Řečkovice
ID
00162
Stavba
Cihlová
Stav objektu
Velmi dobrý
Patro
2.
Lokalita objektu
Klidná část obce
Vlastnictví
Osobní
Užitná plocha
86 m2
Podlahová plocha
90 m2
Třída energetické náročnosti
G - Mimořádně nehospodárná
Elektřina
230V
Plyn
Plynovod
Odpad
Veřejná kanalizace
Doprava
Silnice, MHD
Voda
Vodovod
Topné těleso
Radiátory
Zdroj topení
Plynový kotel
Zdroj teplé vody
Plynový kotel
Sklep
Lodžie
Výtah

Kontaktovat makléře

Máte zájem o tento byt?

Tímto, v souladu s nařízením Evropského parlamentu a Rady (EU) 2016/679, v platném znění, prohlašuji, že mi je alespoň 16 let a uděluji tak svůj souhlas se zpracováním zadaných údajů (jméno, telefon, e-mail, ip adresa) společnosti B3 Technology, s.r.o., IČ: 07330600, se sídlem Novostavby 126/23, 435 11 Lom (správce dat), za účelem předání dotazu z tohoto formuláře Vámi vybranému inzerentovi a zpětného kontaktování mé osoby. Osobní údaje bude správce zpracovávat manuálně i automaticky přímo prostřednictvím svých zaměstnanců. Informace předané tímto formulářem budou uloženy v databázi správce maximálně po dobu 10 let. Odvolání souhlasu s uložením a zpracováním poskytnutých dat lze e-mailem na info@bydlisnami.cz. V případě podezření na neoprávněné použití Vámi poskytnutých údajů máte právo předat podnět k šetření Úřadu pro ochranu osobních údajů. Více informací
Chystáte se prodat nemovitost?
Pomůžeme Vám!

Inzerát si prohlédlo 0 lidí

Prodejce

Radomír Čada

Radomír Čada

Hlídací pes

Chcete dostávat emailem podobné nabídky prodeje bytů 3+1 v Brně?

Podobné nemovitosti