Prodej rodinného domu, Hořice, Třešňová, 238 m2

Třešňová, Hořice

Rezervováno
6 200 000 Kč /za nemovitost HYPOTÉKA od 27 710 Kč /za měsíc
Doporučené firmy v Hořicích

Informace k domu

REZERVOVÁNO
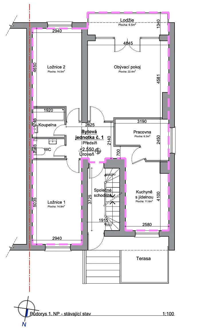
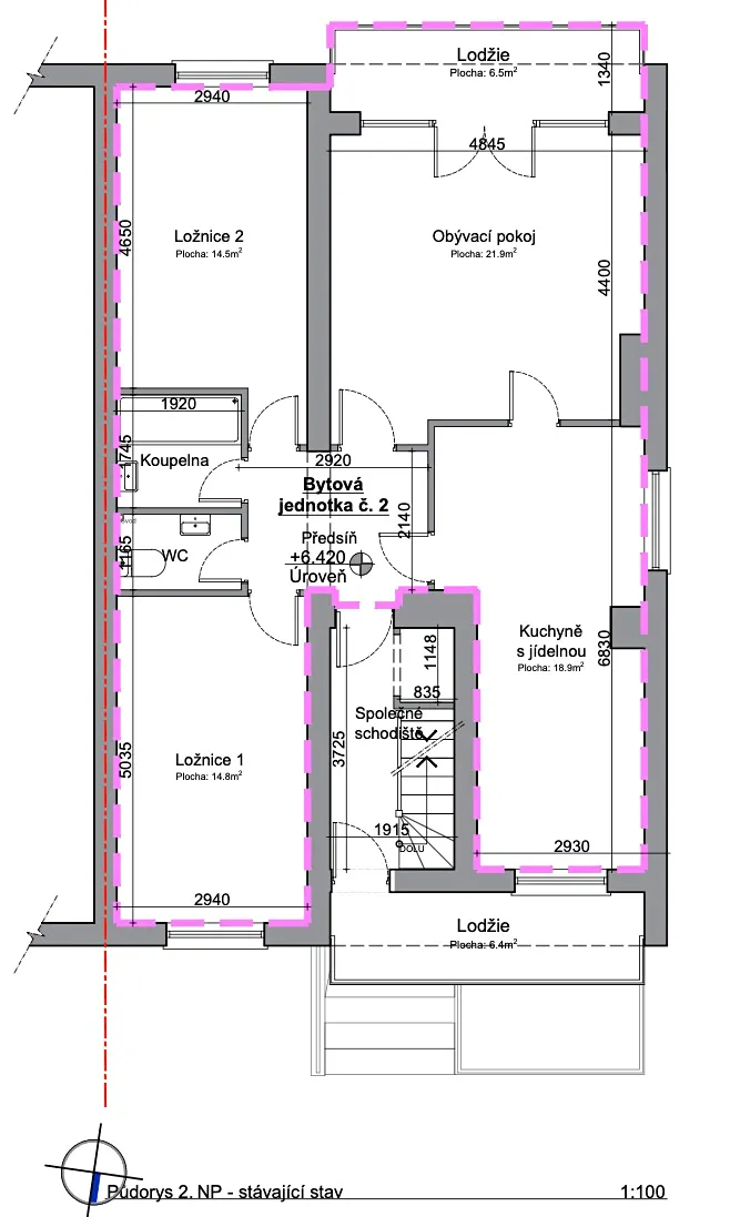
Krajní řadový dům v klidné Třešňové ulici v Hořicích v Podkrkonoší. Dům stojí na pozemku o velikosti 486 m² a má tři podlaží s celkovou užitnou plochou 237,6 m².

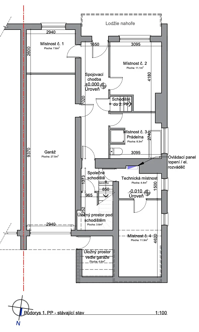
Najdete zde dvě samostatné bytové jednotky. Byt č. 1 o velikosti 83,8 m² a byt č. 2 o velikosti 84,3 m². Celková plocha k užívání domu je 311,5 m². V suterénu se nachází koupelna a dva pokoje, kde může vzniknout další byt o dispozici 2+kk. Díky tomu je dům vhodný nejen pro rodinné bydlení, ale také jako zajímavá investice.

Nad rámec užitné plochy budete mít k dispozici garáž, terasu, dvě lodžie, sklep o velikosti 20,3 m² a na zahradě pergolu s příjemným posezením. Nemovitost je v původním stavu, vhodná k rekonstrukci, ale obyvatelná ihned. Vytápění zajišťují odporové smyčky, ohřev vody bojler, okna jsou původní dřevěná a střecha byla v roce 2021 obnovena střešní lepenkou. K dispozici je elektřina 230/400 V, obecní vodovod i kanalizace a přístup je po asfaltové komunikaci.

Hořice nabízejí skvělé možnosti pro rodinný život. Ve městě najdete veškerou občanskou vybavenost, dobré autobusové i vlakové spojení a po dokončení nového úseku dálnice D35 se ještě zlepší dostupnost do Hradce Králové i Jičína. Volný čas můžete trávit na procházkách v přírodě – oblíbeným cílem je například nedaleký vrch Gothard s pískovcovými plastikami a Riegrův obelisk, které dodávají tomuto místu jedinečnou atmosféru.

Pokud hledáte prostorný dům s velkým potenciálem v lokalitě, kde máte historii i přírodu na dosah, pak by právě tato nemovitost mohla být vaším novým domovem.
Budu se těšit, až vás osobně provedu domem a ukážu vám jeho skutečný potenciál.

Parametry domu

Stav
Rezervováno
Cena
6 200 000 Kč /za nemovitost Spočítat hypotéku
Aktualizováno
10. 3. 2026
Adresa
Třešňová, Hořice
Stavba
Cihlová
Stav objektu
Před rekonstrukcí
Druh objektu
Rohový
Lokalita objektu
Klidná část obce
Užitná plocha
238 m2
Zastavěná plocha
118 m2
Podlahová plocha
311 m2
Plocha pozemku
486 m2
Třída energetické náročnosti
G - Mimořádně nehospodárná
Elektřina
230V, 400V
Odpad
Veřejná kanalizace
Komunikace
Asfaltová
Telekomunikace
Internet
Doprava
Vlak, Silnice, Autobus
Voda
Vodovod
Zdroj topení
Jiné
Zdroj teplé vody
Bojler - elektro
Garáž
Sklep
Parkování

Kontaktovat makléře

Máte zájem o tento dům?

Tímto, v souladu s nařízením Evropského parlamentu a Rady (EU) 2016/679, v platném znění, prohlašuji, že mi je alespoň 16 let a uděluji tak svůj souhlas se zpracováním zadaných údajů (jméno, telefon, e-mail, ip adresa) společnosti B3 Technology, s.r.o., IČ: 07330600, se sídlem Novostavby 126/23, 435 11 Lom (správce dat), za účelem předání dotazu z tohoto formuláře Vámi vybranému inzerentovi a zpětného kontaktování mé osoby. Osobní údaje bude správce zpracovávat manuálně i automaticky přímo prostřednictvím svých zaměstnanců. Informace předané tímto formulářem budou uloženy v databázi správce maximálně po dobu 10 let. Odvolání souhlasu s uložením a zpracováním poskytnutých dat lze e-mailem na info@bydlisnami.cz. V případě podezření na neoprávněné použití Vámi poskytnutých údajů máte právo předat podnět k šetření Úřadu pro ochranu osobních údajů. Více informací
Chystáte se prodat nemovitost?
Pomůžeme Vám!

Inzerát si prohlédlo 10 lidí

Prodejce

Jaroslav Kraus

Jaroslav Kraus

Hlídací pes

Chcete dostávat emailem podobné nabídky prodeje rodinných domů v Hořicích (okr. Jičín)?

Podobné nemovitosti